Version: 8.24.0Navigation überspringen
IMMORath
5.264 €
2 Zimmer  •  53 m² Bürofläche

Bürofläche zum Kauf
5264,15 Euro pro Quadratmeter
2 Zimmer  •  53 m² Bürofläche

IMMORath.de - Büroräume mit bester Verkehrsanbindung

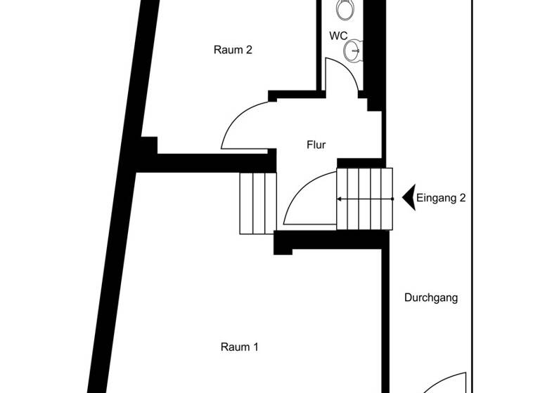
Endecken Sie ein schönes, historisches Büro in Freiburg-Herdern. Umgeben von Einkaufsmöglichkeiten und der alten Fabrik stehen Ihnen zwei Büroräume zur Verfügung. Es handelt sich um eine abgeschlossene Einheit - im hinteren Raum besteht die Möglichkeit, eine Küche zu installieren. Eventuell kann auch die bestehende Einbauküche übernommen werden.
Zudem gibt es ein Gäste-WC, Kellerraum und Fahrradabstellplätze im Hinterhof. Die Bürofläche kann für nicht-störendes Gewerbe genutzt werden.

Die Lage in Herdern, einem der begehrtesten Viertel Freiburgs, garantiert eine hervorragende Erreichbarkeit und Anbindung an öffentliche Verkehrsmittel. Die Übergabe der Immobilie kann frei nach Absprache erfolgen, sodass Sie flexibel einziehen und Ihr neues Büro schnell in Betrieb nehmen können.

Nutzen Sie die Chance, ein Stück Freiburger Geschichte zu erwerben und gleichzeitig von modernen Annehmlichkeiten zu profitieren. Kontaktieren Sie uns, um einen Besichtigungstermin zu vereinbaren und alle weiteren Details zu erfahren.

Merkmale

  • Bezug: Frei nach Absprache
  • Keller
  • Bodenbelag: Holzdielen, Laminat

Grundrisse

Grundrisse
1 / 1

Realisiere Dein Projekt

Bausubstanz und Energie

Energieausweis

Endenergiebedarf (Wärme)

  • Baujahr1913
  • Zustand der ImmobilieGepflegt
MediumRectangleTop

Preisdetails

Kaufpreis
279000 €
5.264,15 €/m²
Provision für Käufer
3,57% inkl. MwSt.
Geschätzte Gesamtkosten
288.960 €1
Kaufpreis
279.000 €
Provision für Käufer (3,57%)
9.960 €
1Der angezeigte Wert ist eine automatisch berechnete Schätzung von immowelt.
2Bei den Angaben handelt es sich um ortsübliche Werte. Individuelle Kosten können abweichen.

Lage

address-icon
Freiburg im Breisgau (79104)
Der Anbieter hat die genaue Adresse nicht freigegeben
Die angebotene Bürofläche befindet sich in einer begehrten Wohngegend in Freiburg im Breisgau, im Stadtteil Herdern, der bekannt ist für sein angenehmes Wohnumfeld und seine Nähe zum Stadtzentrum. Mit nur etwa 1,5 km Entfernung zum pulsierenden Herzen der Stadt können Bewohner eine perfekte Balance zwischen urbanem Leben und entspanntem Wohnen in grüner Umgebung genießen. Die Anbindung an die Infrastruktur ist hervorragend, mit einer Autobahnnähe von circa 8 km, was die Wohnung auch für Pendler sehr attraktiv macht. Direkt vor dem Haus befindet sich eine Straßenbahnhaltestelle, mit direkter Verbindung in die Stadtmitte.
Die Habsburgerstraße ist durchzogen von Einzelhandeln, Bürofläche und Wohnraum.

Weitere Informationen

Sonstiges Sie haben Interesse und möchten zeitnah die Immobilie besichtigen? Kein Problem! Schicken Sie uns gerne Ihre Anfrage, Sie werden von der Immobilie begeistert sein!

Alle vom Eigentümer bereitgestellten Informationen werden als zuverlässig erachtet, aber nicht garantiert und sollten unabhängig verifiziert werden. Wir übernehmen keinerlei Gewähr für die Richtigkeit der Angaben.

Der Courtageanteil des Käufers beträgt 3,57% des tatsächlichen Kaufpreises inklusive der gesetzlichen Mehrwertsteuer.
Der Courtageanteil ist im Kaufpreis nicht enthalten und ist vom Käufer an uns zu zahlen. Er ist fällig und zahlbar bei Notariat. Stichworte Gesamtfläche: 53,00 m², Distanz zur Autobahn: 8.00, Distanz vom Zentrum: 1.50

Weitere Services

Lust auf eine Besichtigung?
Eine Frage zur Immobilie?
Nachricht hinzufügen
Mit der Nutzung der oben angegebenen Telefonnummer oder durch Klicken auf „Kontaktieren“ akzeptierst Du die Allgemeinen Nutzungsbedingungen, denen Du jederzeit widersprechen kannst. Weitere Informationen zum Datenschutz

Über den Anbieter

IMMORath
IMMORathMaklerbüro
Habsburgerstraße 11, 79104 Freiburg im Breisgau
partner badge
Partnerschaft
Frau Lara JaegerDein Kontakt
Online-ID: 2kl2e56
Referenznummer: IR0525331
IMMORath
IMMORath
Bewertung: 5 von 5 Sternen
Nachricht hinzufügen
Mit der Nutzung der oben angegebenen Telefonnummer oder durch Klicken auf „Kontaktieren“ akzeptierst Du die Allgemeinen Nutzungsbedingungen, denen Du jederzeit widersprechen kannst. Weitere Informationen zum Datenschutz
MediumRectangleTop
MediumRectangleBottom
MediumRectangleTop
Wie zufrieden bist du mit dieser Seite (nicht mit der Immobilie selbst)?