

Lea Dörrmann Immobiliendienstleistungen e.K.
Frau Lea Dörrmann
015 ···
Nr. anzeigenPreise & Kosten
Provision für Käufer
Die Provision für den Käufer beträgt 2% zzgl. MwSt. des beurkundeten Kaufpreises.
Lage
Die Doppelhaushälfte liegt im Westen von Berg bei Neumarkt in der Oberpfalz.
Einrichtungen des täglichen Bedarfs sowie der medizinischen Versorgung liegen in naher Umgebung und sind zu Fuß erreichbar.
Kindergärten, Kitas und eine Grund- und Mittelschule sind im Umkreis von knapp einem Kilometer fußläufig...
Das Haus
Kategorie
Mehrfamilienhaus
Geschosse
2 Geschosse
Baujahr
2025
Bezug
31.12.2026
Derzeitige Nutzung
frei
Energie & Heizung
Warum sehe ich diese Anzeige? – Du siehst diese Anzeige basierend auf Ihrer Navigation auf unserer Website und den Suchkriterien, die du verwendet hast.
Weitere Energiedaten
Energieträger
Elektro
Heizungsart
Fußbodenheizung, Luft-/Wasser-Wärmepumpe, Zentralheizung
Details
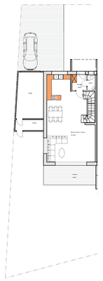
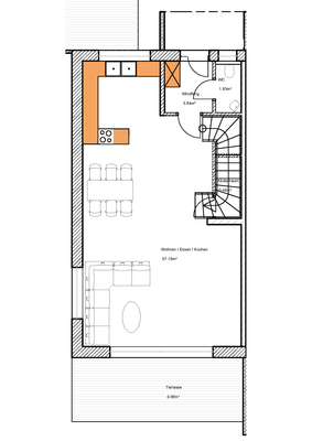
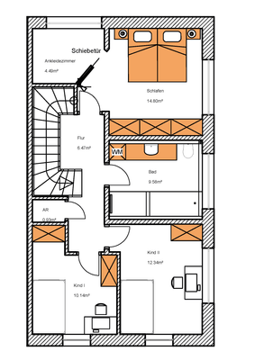
Objektbeschreibung
Diese schöne Doppelhaushälfte mit insgesamt ca. 127m² Wohnfläche auf einer Grundstücksfläche von etwa 338m² bietet den optimalen Lebensraum für junge Familien oder Paare. Die südlich ausgerichtete Terrasse mit anschließendem Garten bietet den perfekten Entfaltungsraum.
Das Erdgeschoss bietet Raum für ein Gäste-WC...
Weitere Informationen
Kontakt
Gerne sende ich Ihnen ausführliche Unterlagen und Informationen.
Kontaktieren Sie mich unter doerrmann@doerrmann-immo.de
Stichworte
Sonstiges/Wohnen: Dachboden
Anbieter der Immobilie
Lea Dörrmann Immobiliendienstleistungen e.K.
Sulzbürger Straße 8 , 92318 Neumarkt

Online-ID: 2amxh5c
Referenznummer: B.ZHW.rechts
Finde Angebote wie dieses
Hier geht es zu unserem Impressum, den Allgemeinen Geschäftsbedingungen, den Hinweisen zum Datenschutz und nutzungsbasierter Online-Werbung.