Version: 8.24.0Navigation überspringen
2.618 €
11 Zimmer  •  275 m² Bürofläche  •  teilbar ab 80 m²
Immowelt logo

Praxis zur Miete - Erstbezug
2.618 €
11 Zimmer  •  275 m² Bürofläche  •  teilbar ab 80 m²

VB3383 Barrierefreie Neubau-Praxis- oder Büroflächen / bei Sünching

Kurzbeschreibung Gerne stehen wir für eine Besichtigung zur Verfügung. Objekt Das Vermietobjekt befindet sich in einer größeren Ortschaft ca. 25 km südöstlich von Regensburg und ist über die Bundesstraße gut angebunden.

Die beiden Vermietflächen befinden sich in einem energetisch optimierten Neubau in KfW 40 - Bauweise mit barrierefreiem Zugang und Personenlift in einer Gemeinde im östlichen Landkreis.

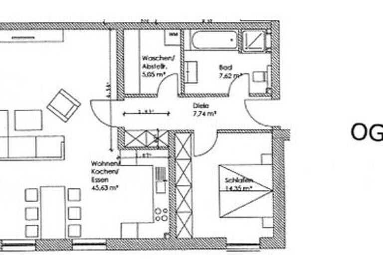
Im 1. Obergeschoss können Mieterwünsche hinsichtlich Bodenbelags und Ausstattungsdetails berücksichtigt werden. In dieser Einheit ist auch Arbeiten und Wohnen in Kombination möglich.

Die Raumaufteilung der Großraumfläche im Dachgeschoss sowie die Bodenbeläge und die Ausstattung mit WC/Dusche etc. können nach Mieterwunsch erfolgen.

Am Objekt sind viele Stellplätze vorhanden.

Merkmale

  • Bezug: sofort
  • Personenaufzug
  • 20 Stellplätze: Außen-Stellplatz
  • Barrierefrei
Lage: bei Sünching
Mietpreis: EUR 2.618,-
Nebenkosten: EUR 275,-
Fläche: ca. 275 m²
Zimmeranzahl: 11
Baujahr: 2015
Kaution: EUR 7.854,-
Geschoss(e): 1. OG + DG
Bezug: sofort
teilbar ab: ca. 80 m²
Stellplatzanzahl: 20
Stellplatzpreis: Verhandlungssache
Fußweg zum RVV: 5 min.
Fahrtzeit Bahnhof: 35 min.
Fahrtzeit Autobahn: 30 min.
Fahrtzeit Flughafen: 90 min.
Objekttyp: Praxis
Zustand: Erstbezug
Stellplatz: Außenstellplatz
Ausstattung: gehoben
Bodenbelag: nach Mieterwunsch
Heizung: Gas-Heizung
Energieausweis Art: Energiebedarfsausweis
Energieausweis Wert: 49,8 kWh/m²a
Energieträger: Gas
barrierefrei: ja
Lift: ja

Grundrisse

Grundrisse
1 / 2

Realisiere Dein Projekt

Bausubstanz und Energie

Der Anbieter hat keine Informationen zum Energieverbrauch bereit gestellt.
  • Baujahr2015
  • Zustand der ImmobilieErstbezug
  • EnergieträgerGas
Immowelt logo

Mietkosten

Nettomiete
2.618 €
Nebenkosten
275 €
Provision für Mieter
Ortsübliche Provision vom Käufer/Mieter nur im Erfolgsfalle
Kaution
7.854,00 Soweit nicht anders erwähnt 3 Monatsmieten
Weitere Preisinformationen
1 Stellplatz
Nettokaltmiete: 2.618,00 EUR

Lage

address-icon
Aufhausen (93089)
Der Anbieter hat die genaue Adresse nicht freigegeben
bei Sünching

Weitere Informationen

Sonstiges Um eine schnelle Bearbeitung zu gewähren benötigen wir Ihre Telefonnummer sowie Ihre komplette Adresse. Stichworte Stellplatz vorhanden, Nutzfläche: 275,00 m², Bundesland: Bayern, Distanz zur Autobahn: 15, Distanz zum Bus: .5, Distanz zum Hauptbahnhof: 17, Distanz zum Flughafen: 100 Sonstiges/Wohnen: seniorengerechtes Wohnen

Weitere Services

Lust auf eine Besichtigung?
Eine Frage zur Immobilie?
Nachricht hinzufügen
Mit der Nutzung der oben angegebenen Telefonnummer oder durch Klicken auf „Kontaktieren“ akzeptierst Du die Allgemeinen Nutzungsbedingungen, denen Du jederzeit widersprechen kannst. Weitere Informationen zum Datenschutz

Über den Anbieter

Nußbergerstr. 6, 93059 Regensburg
partner badge
Partnerschaft
Herr Roland TrummerDein Kontakt
Online-ID: 2h49k5g
Referenznummer: VB 3383
Trummer Immobilien GmbH & Co. KG
Trummer Immobilien GmbH & Co. KG
Bewertung: 4,5 von 5 Sternen
Nachricht hinzufügen
Mit der Nutzung der oben angegebenen Telefonnummer oder durch Klicken auf „Kontaktieren“ akzeptierst Du die Allgemeinen Nutzungsbedingungen, denen Du jederzeit widersprechen kannst. Weitere Informationen zum Datenschutz
Wie zufrieden bist du mit dieser Seite (nicht mit der Immobilie selbst)?