Version: 8.25.1Navigation überspringen
680 €
1 Zimmer  •  46,5 m²
Immowelt logo

Studio zur Miete - Erstbezug
680 €
1 Zimmer  •  46,5 m²

**NEUBAU-ERSTBEZUG** Exklusives 1-Zimmer-Appartement mit Terrasse in Bestlage von Neckarweihingen!

Willkommen in Ihrem neuen Zuhause!
Diese hochwertige 1-Zimmer-Neubauwohnung im Erdgeschoss bietet einen exklusiven Erstbezug in ruhiger und gefragter Lage von Ludwigsburg-Neckarweihingen. Auf rund 47 m² Wohnfläche erwartet Sie ein modernes Wohnkonzept, das Komfort, hochwertige Ausstattung und stilvolles Design perfekt miteinander verbindet.

Der offen gestaltete Wohn- und Schlafbereich schafft eine angenehme Wohnatmosphäre und bietet ausreichend Platz zum Wohnen, Arbeiten und Entspannen. Die integrierte Küchenzeile fügt sich harmonisch in den Raum ein und sorgt für eine optimale Nutzung der Fläche.

Ein besonderes Highlight der Wohnung ist die großzügige Terrasse mit ca. 12 m², die den Wohnbereich ideal nach draußen erweitert. Hier genießen Sie entspannte Stunden im Freien. Ein praktisches Abstellhäuschen im Außenbereich bietet zusätzlichen Stauraum für Gartenmöbel, Ihr Fahrrad oder saisonale Gegenstände.

Die Wohnung überzeugt durch eine hochwertige Neubauausstattung und moderne Technik: Mehrfach verglaste Holz-Aluminium-Fenster, automatische Rollläden, eine angenehme Fußbodenheizung sowie ein schneller Glasfaseranschluss sorgen für höchsten Wohnkomfort und zeitgemäßes Wohnen. Als Bodenbelag wurde der besonders robuste Hywood-Echtholzboden von Ter Hürne in eleganter Eichenoptik verlegt. Für zusätzliche Sicherheit sorgt eine moderne Video-Sprechanlage mit Aufzeichnungsfunktion.

Die stilvolle Einbauküche ist mit hochwertigen Geräten von Miele ausgestattet und verfügt über einen Mikrowellen-Backofen, Kühl- und Gefrierschrank sowie eine Spülmaschine.
Das modern gestaltete Badezimmer bietet eine bodengleiche Dusche, einen Waschtisch, ein WC und einen zusätzlichen Handtuchheizkörper. Eine Waschmaschine und ein Trockner von Miele sind bereits vorhanden und Teil der Wohnungsausstattung.


Zögern Sie nicht, dieses wundervolle Zuhause im Herzen von Neckarweihingen zu besichtigen.

Bitte fordern Sie mit Ihrer Anfrage per E-Mail unser ausführliches Exposé an.

Merkmale

  • Bezug: ab sofort
  • Keller
  • Terrasse
(Bezugs-) Fertigstellung: 2025

Wohnkonzept:
- moderner offener Wohn- und Schlafbereich
- integrierte Küchenzeile
- modernes Badezimmer
- großzügige Terrasse (ca. 12 m²)
- praktisches Gartenhaus im Außenbereich mit Strom (E-Bike aufladbar) und Licht

Hochwertige Ausstattung:
- mehrfach verglaste Holz-Aluminium-Fenster
- elektrische Rollläden
- angenehme Fußbodenheizung in der Wohnung
- schneller Glasfaseranschluss
- Video-Sprechanlage mit Aufzeichnungsfunktion
- Sole / Wasser Wärmepumpe

Bodenbelag:
- hochwertiger Hywood-Echtholzboden von Ter Hürne in eleganter Eichenoptik

Küche:
- moderne Einbauküche mit Markengeräten von Miele
- Mikrowellen-Backofen
- Kühl- und Gefrierschrank
- Geschirrspülmaschine

Badezimmer:
- moderne bodengleiche Dusche
- Waschtisch und WC
- Handtuchheizkörper
- Miele-Waschmaschine und Miele-Trockner bereits vorhanden

Bei Bedarf können zusätzliche Flächen angemietet werden:
- Büro-/Kellerräume
- Raum 1: ca. 10 m² mit Fenster und Glasfaseranschluss.
- Raum 2: ca. 19 m² mit Fenster und Glasfaseranschluss.
- großzügiger Gartenanteil. Wasser- und Stromanschluss vorhanden

Mietkonditionen: Premium-Warmmiete!
- Grundmiete: 800,00 €
- Einmal monatlich wird eine Grundreinigung durchgeführt und mit 50 € extra berechnet
- Warmmiete gesamt: 850,00 €

In der Warmmiete bereits enthalten:
- Strom
- Heizung
- Wasser
- Grundsteuer
- Gebäudeversicherung
- Glasfaser & Telefon
- Müllgebühren
- Teilmöblierung (Waschmaschine & Trockner)

Weitere Konditionen:
- Kaution: 2.000,00 €

Staffelmiete alle 2 Jahre vorgesehen

Haustiere sind nicht erlaubt, Nichtraucher.

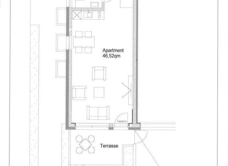
Grundrisse

Grundrisse
1 / 1

Realisiere Dein Projekt

Bausubstanz und Energie

Energieausweis

A+
  • Baujahr2024
  • Zustand der ImmobilieErstbezug
  • HeizungsartFußbodenheizung
  • EnergieträgerElektro
Immowelt logo

Mietkosten

Kaltmiete
14,62 €/m²
680 €
Nebenkosten
120 €
Heizkosten
in Warmmiete enthalten
Kaution
2000 €

Lage

address-icon
NeckarweihingenLudwigsburg / Neckarweihingen (71642)
Der Anbieter hat die genaue Adresse nicht freigegeben
Diese charmante Appartement mit Terrasse befindet sich in der begehrten Gegend von Ludwigsburg, im idyllischen Stadtteil Neckarweihingen.
Die ruhige, grüne Umgebung bietet eine perfekte Balance zwischen urbanem Leben und erholsamer Natur. Das Haus befindet sich in keiner Durchgangsstraße und somit in absoluten ruhigen Umgebung. In unmittelbarer Nähe finden Sie malerische Spazierwege entlang des Neckars sowie zahlreiche Freizeitmöglichkeiten.
Der Stadtteil überzeugt durch eine hervorragende Infrastruktur mit Einkaufsmöglichkeiten, Schulen und Kindergärten, die in wenigen Minuten erreichbar sind. Die ausgezeichnete Anbindung an den öffentlichen Nahverkehr ermöglicht eine schnelle Erreichbarkeit des Ludwigsburger Stadtzentrums sowie der umliegenden Regionen.
Diese Lage bietet sowohl Familien als auch Berufspendlern ein attraktives Wohnumfeld.

Weitere Informationen

Sonstiges *WICHTIG*WICHTIG*WICHTIG*WICHTIG*WICHTIG*

Bitte beachten Sie, dass wir nur schriftliche Anfragen über das Portal mit Angabe Ihrer vollständigen Anschrift bearbeiten können.

Zusätzlich bitten wir Sie Angaben bez. Ihrer derzeitig ausgeübten Tätigkeit, Ihres Alters, der angedachten Mietdauer, Haltung von Tieren und der Personenanzahl zu machen.

Besichtigungstermine sind grundsätzlich kostenfrei.

Gerne können Sie sich kostenfrei und unverbindlich in unsere Kundensuchkartei eintragen. Besuchen Sie dazu unsere Internetseite www.immobilienservice-maier.de und tragen Sie sich unter der Rubrik "Für Suchende" ein. Sobald wir Ihnen ein passendes Objekt anbieten können, werden wir Sie umgehend informieren.

Alle Angaben sind ohne Gewähr und basieren ausschließlich auf Informationen, die uns von unserem Auftraggeber zur Verfügung gestellt wurden. Wir übernehmen keine Gewähr für die Vollständigkeit, Richtigkeit und Aktualität dieser Angaben. Stichworte Gesamtfläche: 46,52 m², Anzahl der Badezimmer: 1, Anzahl Terrassen: 1

Weitere Services

Lust auf eine Besichtigung?
Eine Frage zur Immobilie?
Mit einer persönlichen Nachricht hast du bessere Chancen auf eine Antwort.
Mit der Nutzung der oben angegebenen Telefonnummer oder durch Klicken auf „Kontaktieren“ akzeptierst Du die Allgemeinen Nutzungsbedingungen, denen Du jederzeit widersprechen kannst. Weitere Informationen zum Datenschutz

Über den Anbieter

Bahnhofstr. 41, 71691 Freiberg
partner badge
6 Jahre Partnerschaft
Frau Olivia Glunz
Frau Olivia GlunzDein Kontakt

Weitere Unterlagen

Online-ID: 26EEYWFZD6EJ
Referenznummer: 3020_NE_OG_M
Immobilienservice Maier Inhaber Johannes Maier e.K.
title
Immobilienservice Maier Inhaber Johannes Maier e.K.
Mit einer persönlichen Nachricht hast du bessere Chancen auf eine Antwort.
Mit der Nutzung der oben angegebenen Telefonnummer oder durch Klicken auf „Kontaktieren“ akzeptierst Du die Allgemeinen Nutzungsbedingungen, denen Du jederzeit widersprechen kannst. Weitere Informationen zum Datenschutz
Wie zufrieden bist du mit dieser Seite (nicht mit der Immobilie selbst)?