
F.T. Immobilien Hausverwaltungen GmbH
David Berger
035 ···
Nr. anzeigenPreise & Kosten
Provision für Käufer
7,14 %
inkl. gesetzl. MwSt.
Abschreibung/Anlage
Denkmalschutz-Afa
Lage
Lagebeschreibung Stadtteil
Die Görlitzer Innenstadt erstreckt sich vom Hauptbahnhof bis zum historischen Obermarkt und von der Neiße (als Grenzfluss zu Polen) bis hin zum nördlich gelegenen Stadtteil Königshufen. Die Straßenzüge sind geprägt von Häusern aus den Epochen Gründerzeit und Jugendstil. Das Stadtzentrum ist...
Die Wohnung
Kategorie
Maisonette
Wohnungslage
Erdgeschoss
Bezug
sofort
Derzeitige Nutzung
vermietet
Wohnanlage
Energie & Heizung
Warum sehe ich diese Anzeige? – Du siehst diese Anzeige basierend auf Ihrer Navigation auf unserer Website und den Suchkriterien, die du verwendet hast.
Energieausweis: für diesen Gebäudetyp nicht notwendig
Weitere Energiedaten
Energieträger
Gas
Heizungsart
Zentralheizung
Details
Objektbeschreibung
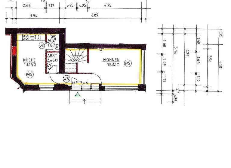
Maisonette-Kapitalanlage im Stadtzentrum
Zum Verkauf steht eine vermietete Wohneigentumseinheit in einem gutbürgerlichen Mehrfamilienhaus.
Die 3-Raum-Maisonettewohnung mit ca. 69 m² befindet sich im Seitenflügel des Gründerzeithauses und reicht vom Erdgeschoss bis ins 1.Obergeschoss.
Im unteren Geschoss besteht...
Ausstattung
Beschreibung Mehrfamilienhaus
Das gutbürgerliche Mehrfamilienhaus wurde ca. 1900 erbaut und 1997 umfangreich saniert (Dach, Fassade, Fenster, Medien, etc.). Seit 2009 wurden am Gebäude jährlich kleinere und größere Instandsetzungsmaßnahmen durchgeführt, um das Objekt weiterhin zu erhalten. Die letzten aufwändigeren...
Weitere Informationen
Sonstiges
Alle Angaben beruhen auf uns erteilten Informationen, für deren Richtigkeit wir keine Haftung übernehmen.
Das Angebot ist freibleibend, ein Zwischenverkauf vorbehalten.
Gesetzliche Widerrufsbelehrung: https://ft-immobilien.com/widerrufsbelehrung
Stichworte
Gesamtfläche: 69,00 m², Anzahl der...
Anbieter der Immobilie
F.T. Immobilien Hausverwaltungen GmbH
Hospitalstr. 36 / Berliner Str. 14, 02826 Görlitz
Online-ID: 2n72q5c
Referenznummer: 100597
Finde Angebote wie dieses
Hier geht es zu unserem Impressum, den Allgemeinen Geschäftsbedingungen, den Hinweisen zum Datenschutz und nutzungsbasierter Online-Werbung.