Traumhaus auf groĂźem GrundstĂĽck - Unser Angebot fĂĽr Ihre Zukunft
Herzlich willkommen in Ihrem neuen Zuhause, das speziell fĂĽr familienorientierte Kunden wie Sie gestaltet wurde. Diese Immobilie ist der ideale Ort, um gemeinsame Erinnerungen zu schaffen und ein harmonisches Familienleben zu fĂĽhren.
Das Haus bietet ausreichend Platz für Ihre Familie, um zu Wachsen und Gedeihen. Mit geräumigen Schlafzimmern, einem lichtdurchfluteten Wohnbereich und einem weitläufigen Garten, ist genügend Raum für jedes Familienmitglied vorhanden
Merkmale
673 m² Grundstück
Gäste-WC
Neben kurzen Bauzeiten, innovativer Haustechnik, attraktiver Architektur und hochwertiger Manufaktur-Qualität bietet Ihnen das angebotene Schwabenhaus im "Green-Edition" All-Inclusive-Paket folgende Mehr-Werte:
- Bodenplatte inkl. Effizienzhaus 55 Perimeter-Dämmung unterhalb der Bodenplatte sowie stirnseitig - Klima-Komfort-Bauweise für das Effizienzhaus 55 - Zimmermannsmäßiges Pfettendach - Photovoltaik-Vorbereitung für die Ausführung eines Photovoltaik-Systems - Komplette Elektro-, Sanitär- und Heizungs-Installation inkl. Grundinstallation für das Schwabenhaus auf Schwabenhaus-Bodenplatte bzw. -Keller* - Zukunftsweisende Elektro-Installation* - Abgeschirmte Lichtleitungen für moderne, störungsfreie Beleuchtung und Lichtszenarien - Rollläden im Erd- und Obergeschoss Ihres Schwabenhauses - Doppel-Wärmepumpe Eco* für Heizen, Kühlen, Lüften, Luftreinigung und Warmwasser - Schwimmender Estrich mit Wärmedämmung* - Blower-Door Test zur Überprüfung der Luftwechselrate* - Klima-Komfort-Außenwand mit über 200 Putzfarben zur Auswahl - Hochwertige, mehrschichtige Holz-Haustür in vielfältigen Design-Lösungen, mit Sicherheitsschließzylinder, 5-fach- Sicherheits-Verriegelung und 3-Scheiben-Wärmeschutzverglasung - Kunststoff-Fenster mit 3-Scheiben- Wärmeschutzverglasung - Dachflächenfenster mit Kipp- und Schwingfunktion sowie elektrischen Rollläden*, wenn laut Grundriss enthalten - Außenfensterbänke aus Naturstein - Innenfensterbänke aus Kunst- oder Naturstein* - Massiv-Vollholz-Treppe - Protect Versicherungs-Paket mit Wohngebäude-Versicherung inkl. Elementarschutz, Haus- und Wohnungs-Schutzbrief, Bauleistungs-Versicherung und Bauherren-Haftpflichtversicherung sowie Job-Protect Versicherungs-Paket - 10 sowie 30 Jahre Gewährleistung gemäß Definition in der Schwabenhaus Bau- und Leistungsbeschreibung
*Ab Ausbaustufe "Fast-Vollendet" ÂąBeim Effizienzhaus 40 KĂĽhlung nur in Verbindung mit optionaler PV-Anlage.
Die aufgeführten Mehr-Werte und Leistungsinhalte beziehen sich ausschließlich auf das in der Schwabenhaus Bau- und Leistungsbeschreibung (BLB) beschriebene Technologie + Komfort-Paket "Green -Edition". Die Mehr-Werte und Leistungsinhalte anderer Schwabenhaus Bau- und Leistungsbeschreibungen bzw. Technologie + Komfort-Pakete können hiervon abweichen.
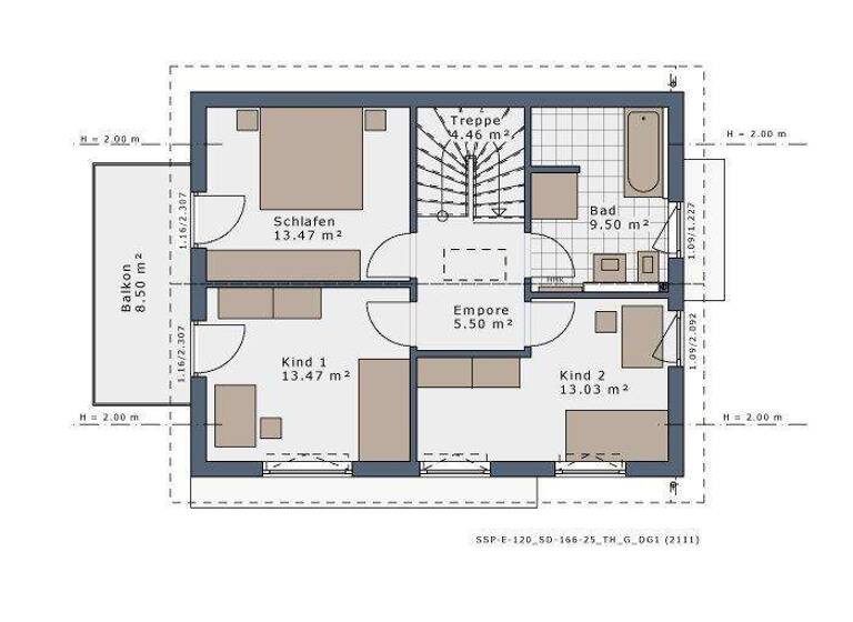
Grundrisse
Grundrisse
1 / 2
Realisiere Dein Projekt
Bausubstanz und Energie
Der Anbieter hat keine Informationen zum Energieverbrauch bereit gestellt.
Zustand der ImmobilieNeubau, Projektiert
HeizungsartFuĂźbodenheizung
Preisdetails
Kaufpreis
806610 €806.610 €
6.778,24 €/m²
Provision für Käufer
provisionsfrei
Geschätzte Gesamtkosten
875.172 €1
Kaufpreis
806.610 €
Kaufnebenkosten
68.562 €
2
Notarkosten (1,5%)
12.099 €
Grunderwerbsteuer (6,5%)
52.430 €
Grundbucheintrag (0,5%)
4.033 €
1Der angezeigte Wert ist eine automatisch berechnete Schätzung von immowelt.
2Bei den Angaben handelt es sich um ortsübliche Werte. Individuelle Kosten können abweichen.
Lage
Kappeln (24376)
Der Anbieter hat die genaue Adresse nicht freigegeben
TraumgrundstĂĽck direkt am Wasser
Weitere Informationen
Sonstiges
Vereinbaren Sie einen persönlichen Beratungstermin, um über Ihren Haustraum und das angebotene Objekt zu sprechen. Bitte beachten Sie, dass die dargestellten Bilder und Grundrisse nur beispielhaft sind und unter Umständen Sonderbauteile enthalten, die nicht im aufgerufenen Preis inkludiert sind.
Haben Sie außerdem Verständnis dafür, dass erst nach dem persönlichen Gespräch weitere Details zu dem angebotenen Grundstück bekanntgegeben werden und dass nur vollständige Anfragen bearbeitet werden können.
Anbauteile, Carport, Garage und Keller können Extras sein, die als Sonderausstattung angeboten werden. Abbildungen, Grundrisse und Flächenangaben sind beispielhaft und können Extras zeigen. Flächenangaben nach DIN 277.
Profitieren Sie jetzt von der Schwabenhaus Online Beratung und verwirklichen Sie Ihr Traumhaus https://www.schwabenhaus.de/anmeldung-hausbau-beratung-online/
Stichworte
Anzahl der Schlafzimmer: 3, Anzahl der Badezimmer: 1, Anzahl der separaten WCs: 1