Tiefgaragenstellplatz zur Miete95 €
95 €
Bahnhofstraße 13- TG-Stellplatz zu sofort frei
Merkmale
- Bezug: sofort
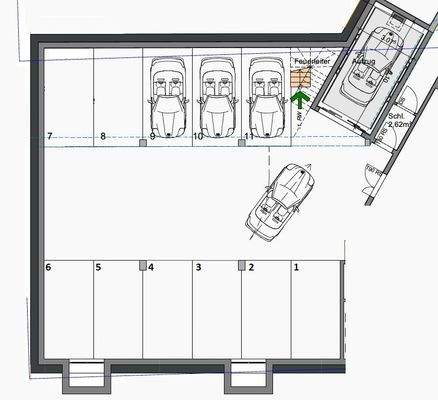
Grundrisse
Grundrisse
1 / 1
Mietkosten
Warmmiete
95 €
Kaltmiete
nicht angegeben
Provision für Mieter
Bei Mietvertragsabschluss wird eine einmalige Bearbeitungsgebühr von €84,03 zzgl. MwSt. 19%= 15,97€ Gesamt: 100,00€ erhoben.
Kaution
keine Angabe
Lage

Bahnhofstraße 13, Wedel (22880)
Weitere Informationen
Weitere Services
Lust auf eine Besichtigung?
Eine Frage zur Immobilie?
Über den Anbieter
Paul-Nevermann-Platz 2, 22765 Hamburg
Partnerschaft
Frau Iska KreitzDein Kontakt
Weitere Unterlagen
Online-ID: 26DXQRYKWQUH
Referenznummer: Bahnhofstr
Wie zufrieden bist du mit dieser Seite (nicht mit der Immobilie selbst)?