Version: 8.25.1Navigation überspringen
FALC Real Estate
591.000 €
4 Zimmer  •  104 m²  •  5. Geschoss

Wohnung zum Kauf • provisionsfrei
591000 €
3.464 €/m²
4 Zimmer  •  104 m²  •  5. Geschoss

Wohnung mit atemberaubender Aussicht

Das Meer, das Golfen und das Leben von Benidorm können Sie alles im Tower genießen. Eine privilegierte Lage direkt am "Las Rejas Golfplatz", nur 1 km vom Playa Poniente entfernt und mit ausgezeichneter Anbindung sowohl an die N-332 als auch an die AP7. Tower wird einen einzigen Turm mit einer Vielzahl von Wohntypen haben, aus denen Sie zwischen 3 Schlafzimmern wählen können, mit Parkplatz und großen Terrassen mit Glasgeländern, die Ihnen mehr Helligkeit und Aussicht von Ihrem Zuhause aus bieten. Darüber hinaus umfasst die Wohnanlage großartige Gemeinschaftsbereiche von 5.400 Quadratmetern mit: Erwachsenenpool, Kinderbecken, 2 Whirlpools, Kinderbereich, ausgestattetem Fitnessstudio, Paddle-Tennisplatz, Multisportplatz, Grünflächen und mehreren Fahrradparkplätzen.
Neubauwohnungen mit hervorragenden Gemeinschaftsbereichen in Benidorm.
Das Meer und die Natur als Kulisse für Ihr neues Leben. Wohnungen mit 3 Schlafzimmern in der Strandgegend von Poniente. Ab 591.000

Merkmale

  • 5. Geschoss
  • Personenaufzug
  • Keller
  • Balkon
  • Garten
  • Terrasse
  • Meerblick

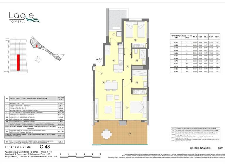
Grundrisse

Grundrisse
1 / 1

Realisiere Dein Projekt

Bausubstanz und Energie

Möchtest du Details zum Energieverbrauch?info_energy_calculation-icon
  • Baujahr2024
  • Zustand der Immobilieneuwertig
  • EnergieträgerSolar

Preisdetails

Kaufpreis
591000 €
3.463,92 €/m²
Provision für Käufer
provisionsfrei; Provisionsfrei für den Käufer

Lage

address-icon
Benidorm (03502)
Der Anbieter hat die genaue Adresse nicht freigegeben
Die Strände
Benidorm bietet Strände mit kristallklarem Wasser, wie z.B. den Strand Poniente, der über 3 km lang ist und nur 5 Minuten mit dem Auto entfernt liegt. Es gibt auch andere Strände in der Nähe, wie den Strand von Levante oder den Strand von Mal Pas, der ein Meeresschutzgebiet mit einem unvergleichlichen Meeresboden für Tauchbegeisterte bietet. Außerdem gibt es die bekannten Buchten wie die Bucht Tío Ximo oder die Bucht La Almadrava. Orte, die man besuchen kann
Das Freizeitangebot in Benidorm ist vielfältig. Verschiedene Einkaufszonen mit einer Vielzahl von Geschäften, Bars, Restaurants, Tanzlokalen, Diskotheken und Kneipen für jeden Geschmack. Die Altstadt von Benidorm, das englische Viertel, der Benidorm Palace oder das Casino Mediterráneo sind die repräsentativen Orte der Stadt. Der Balcón del Mediterráneo verzaubert jeden Besucher, der hierher kommt, um den herrlichen Blick auf das Meer zu genießen. Benidorm ist ein Synonym für Vergnügungsparks, die sich an alle Besucher richten, die sich amüsieren wollen. Zu den Highlights gehören der Wasserpark Aqualandia, der größte Europas, der Vergnügungspark Terra Mítica, der Tierpark Terra Natura, der Wasserpark Aqua Natura und der exotische Meerestierpark Mundomar. Verbringen Sie einen unvergesslichen Tag in Ihrem Lieblingsthemenpark! Golfplätze
In einer privilegierten natürlichen Umgebung und direkt neben dem Wohnkomplex Eagle Tower befindet sich der Golfplatz Las Rejas, der in das Stadtzentrum integriert ist und über 9 Löcher verfügt. Außerdem gibt es zehn Autominuten entfernt zwei Golfplätze mit dem Nicklaus-Design-Siegel, die zum Hotel Villaitana Wellness Golf & Business Resort gehören. Innerhalb einer halben Autostunde befinden sich mehrere Golfplätze: Club de Golf Don Cayo in Altea Hills, Club de Golf Bonalba in Mutxamel und Club de Golf Ifach in Benissa.

Weitere Informationen

Sonstiges
FALC Exposé Homepage - https://www.falcimmo.de/immobilie/intern-1843779.html Stichworte Gesamtfläche: 131,00 m², Anzahl der Schlafzimmer: 3, Anzahl der Badezimmer: 2, Anzahl Balkone: 1, Anzahl Terrassen: 1, Balkon-Terrassen-Fläche: 27,00 m², Bundesland: Comunidad Valenciana, Wohnungsnr.: 21, Distanz zum Flughafen: 68.82, Distanz zum Hauptbahnhof: 96.79, Distanz zum Bus: 34.78 Sonstiges: EDV-Verkabelung

Weitere Services

Lust auf eine Besichtigung?
Eine Frage zur Immobilie?
Nachricht hinzufügen
Mit der Nutzung der oben angegebenen Telefonnummer oder durch Klicken auf „Kontaktieren“ akzeptierst Du die Allgemeinen Nutzungsbedingungen, denen Du jederzeit widersprechen kannst. Weitere Informationen zum Datenschutz

Über den Anbieter

Calle Marbella 53, 07610 Palma de Mallorca
partner badge
Partnerschaft
Herr Sven Robespierré HansenDein Kontakt

Weitere Unterlagen

Online-ID: 248JVY3NR385
Referenznummer: FALC-SvHa-42417
FALC Real Estate
FALC Real Estate
Nachricht hinzufügen
Mit der Nutzung der oben angegebenen Telefonnummer oder durch Klicken auf „Kontaktieren“ akzeptierst Du die Allgemeinen Nutzungsbedingungen, denen Du jederzeit widersprechen kannst. Weitere Informationen zum Datenschutz
Wie zufrieden bist du mit dieser Seite (nicht mit der Immobilie selbst)?