Version: 8.22.4Navigation überspringen
KENSINGTON Finest Properties München GmbH
1.480 €
2 Zimmer  •  57,1 m²  •  frei ab 15.03.2026

Wohnung zur Miete
1480 €
Kaltmiete
2 Zimmer  •  57,1 m²  •  frei ab 15.03.2026

KENSINGTON - Exklusiv - neuwertige 2-Zimmer-Wohnung mit Terrasse und eigenem Garten

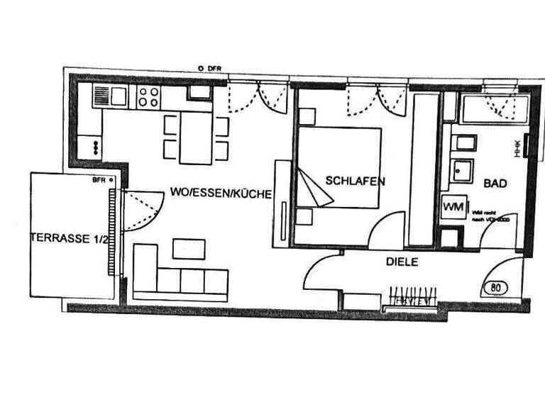
Diese moderne 2-Zimmer-Wohnung mit ca. 57 m² Wohnfläche befindet sich in einem im Jahr 2021 errichteten Wohnhaus und überzeugt durch einen durchdachten, funktionalen Grundriss sowie einen attraktiven Außenbereich mit Terrasse und Garten. Die neuwertige Ausstattung und die klare Raumaufteilung schaffen ein angenehmes Wohnambiente mit hohem Komfort.

Beim Betreten der Wohnung gelangt man in den Flur, der alle Räume übersichtlich erschließt. Rechterhand befindet sich das helle Badezimmer, das mit einer Badewanne, einem Fenster für natürliche Belichtung und Belüftung sowie einem praktischen Waschmaschinenanschluss ausgestattet ist. Die zeitlose Gestaltung sorgt für eine freundliche und angenehme Atmosphäre.

Direkt anschließend liegt das ruhig gelegene Schlafzimmer, das ausreichend Platz für ein großes Bett sowie einen Kleiderschrank bietet und sich ideal als Rückzugsort eignet.
Am Ende des Flurs öffnet sich der großzügige Wohnbereich mit offener Küche, Essplatz und gemütlichem Wohnbereich.

Durch die offene Gestaltung entsteht ein luftiges Raumgefühl, das sowohl zum Entspannen als auch zum geselligen Beisammensein einlädt.
Große Fensterflächen sorgen für viel Tageslicht und eine freundliche Wohnatmosphäre.
Von hier aus besteht ein direkter Zugang zur Terrasse sowie zum angrenzenden Garten, der zusätzlichen Wohnraum im Freien bietet und zu erholsamen Stunden, sonnigen Nachmittagen oder gemütlichen Abenden einlädt.

Die Wohnung eignet sich ideal für Singles oder Paare, die modernes Wohnen in ruhiger, gepflegter Umgebung mit guter Lebensqualität zu schätzen wissen.

Merkmale

  • frei ab 15.03.2026
  • Einbauküche
  • Personenaufzug
  • Tiefgarage
  • Balkon
  • Garten
  • Terrasse
  • Badezimmer: Badewanne, Bad mit Fenster

Grundrisse

Grundrisse
1 / 1

Realisiere Dein Projekt

Bausubstanz und Energie

Der Anbieter hat keine Informationen zum Energieverbrauch bereit gestellt.
  • Baujahr2021
  • Zustand der Immobilieneuwertig
  • EnergieträgerFernwärme

Mietkosten

Warmmiete
1.755 €
Kaltmiete
25,92 €/m²
1.480 €
Nebenkosten
252 €
Zusätzliche Kosten
Miete pro Stellplatz
95 €
Kaution
4.440 €
Weitere Preisinformationen
1 Tiefgaragenstellplatz, Miete: 95,00 EUR

Lage

address-icon
Pasing-ObermenzingMünchen (81249)
Der Anbieter hat die genaue Adresse nicht freigegeben
Die Wohnung befindet sich im Münchner Stadtteil Aubing-Lochhausen-Langwied, einem ruhigen und familienfreundlichen Wohngebiet im Westen der Landeshauptstadt. Die Umgebung ist geprägt von modernen Wohnanlagen, viel Grün sowie einer angenehmen und gepflegten Nachbarschaft, die ein harmonisches Wohnumfeld bietet.

Einkaufsmöglichkeiten für den täglichen Bedarf, Bäckereien, Cafés sowie Ärzte und Apotheken befinden sich in der näheren Umgebung und sind bequem erreichbar. Auch Kindergärten, Schulen und vielfältige Freizeitangebote sind im Stadtteil vorhanden und machen die Lage sowohl für Singles und Paare als auch für kleine Familien besonders attraktiv.

Die Anbindung an den öffentlichen Nahverkehr ist sehr gut: Bus- und S-Bahn-Verbindungen gewährleisten eine schnelle und unkomplizierte Erreichbarkeit der Münchner Innenstadt sowie der umliegenden Stadtteile. Darüber hinaus ist die Lage auch für Autofahrer ideal, da die Autobahnen A96 und A99 in kurzer Fahrzeit erreichbar sind.

Zusätzlich bietet die Nähe zu zahlreichen Grünflächen und Naherholungsgebieten einen hohen Freizeit- und Erholungswert. Spaziergänge, sportliche Aktivitäten oder entspannte Stunden im Freien lassen sich hier ideal in den Alltag integrieren.

Weitere Informationen

Sonstiges Für weitere Informationen zu dieser Wohnung steht Ihnen Frau Sabrina Winklhofer unter der Mobilfunknummer +49 162 88 33337 jederzeit gerne zur Verfügung.

Um eine Zeit Verzögerung bei der Versendung des Exposés zu vermeiden, bitten wir Sie bei Ihrer Anfrage, Ihre vollständige Adresse, Telefonnummer sowie Ihre Email Adresse zu hinterlassen.
Der Energieausweis kann bei der Besichtigung eingesehen werden. Provisionshinweis: Provisionsfrei Alle Angaben sind ohne Gewähr und basieren ausschließlich auf Informationen, die uns von unserem Auftraggeber zur Verfügung gestellt wurden.

Wir übernehmen keine Gewähr für die Vollständigkeit, Richtigkeit und Aktualität dieser Angaben. Weitere interessante Angebote finden Sie auf unserer Firmenhomepage: www.kensington-muenchen.com Stichworte Tiefgarage vorhanden, Anzahl der Schlafzimmer: 1, Anzahl der Badezimmer: 1, Anzahl Balkone: 1, Anzahl Terrassen: 1, Bundesland: Bayern

Weitere Services

Lust auf eine Besichtigung?
Eine Frage zur Immobilie?
Nachricht hinzufügen
Mit der Nutzung der oben angegebenen Telefonnummer oder durch Klicken auf „Kontaktieren“ akzeptierst Du die Allgemeinen Nutzungsbedingungen, denen Du jederzeit widersprechen kannst. Weitere Informationen zum Datenschutz

Über den Anbieter

Bahnhofstraße 16a, 82152 Planegg
partner badge
Partnerschaft
Frau Sabrina WinklhoferDein Kontakt
Online-ID: 2nhsn5d
Referenznummer: KFM1343
KENSINGTON Finest Properties München GmbH
KENSINGTON Finest Properties München GmbH
Bewertung: 3,9 von 5 Sternen
Nachricht hinzufügen
Mit der Nutzung der oben angegebenen Telefonnummer oder durch Klicken auf „Kontaktieren“ akzeptierst Du die Allgemeinen Nutzungsbedingungen, denen Du jederzeit widersprechen kannst. Weitere Informationen zum Datenschutz
MediumRectangleTop
MediumRectangleTop
Wie zufrieden bist du mit dieser Seite (nicht mit der Immobilie selbst)?