Version: 8.25.1Navigation überspringen
9,51 €
4 Zimmer  •  204 m² Bürofläche
Immowelt logo

Bürofläche zur Miete
9,51 €
/m²
4 Zimmer  •  204 m² Bürofläche

Büro Nähe Autobahn A111 zu Mieten

Die Bürofläche liegt in einem Gewerbegebiet. Zahlreiche Geschäfte des täglichen Bedarfs sind in unmittelbarer Nähe.

Merkmale

  • Bezug: Nach Vereinbarung
  • 1. Geschoss
  • Bodenbelag: Estrich
  • 2 Stellplätze: 2 Außen-Stellplätze
- Neubau
- Teppichboden in den Büros
- PVC- Boden im Flur
- Herren und Damen WC
- Dusche vorhanden
- Küche
- Zentralheizung
- Kein Fahrstuhl
- Zwei Außenstellplätze können mit angemietet werden

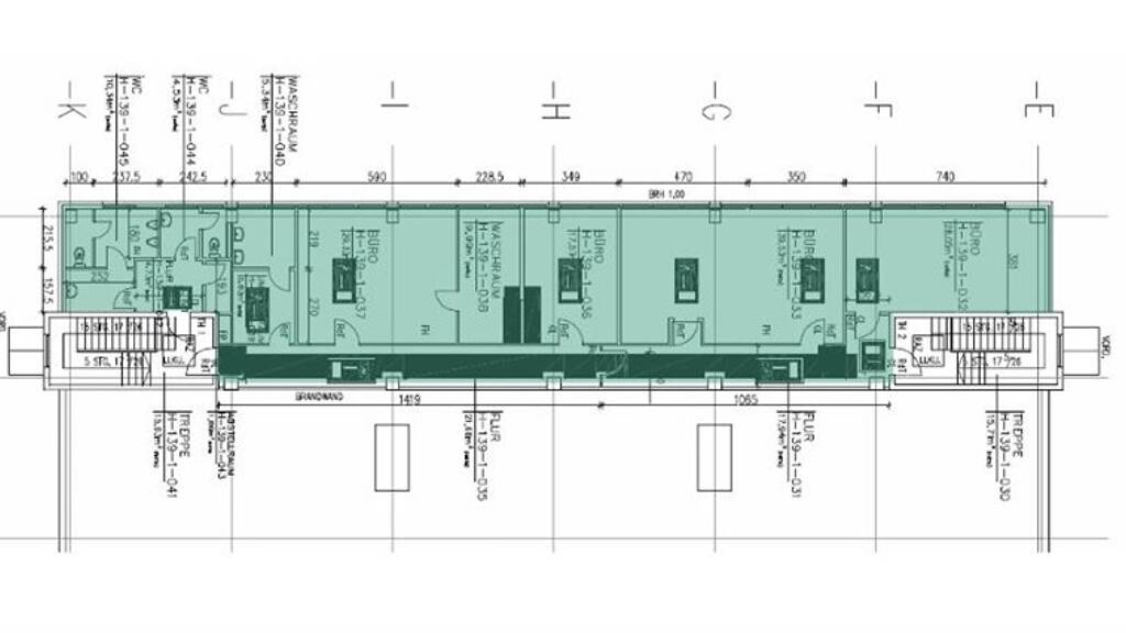
Grundrisse

Verschaffe dir einen genauen Überblick über die Raumaufteilung.selection_property_house-icon

Realisiere Dein Projekt

Bausubstanz und Energie

Energieausweis

Endenergiebedarf (Wärme)

Endenergiebedarf (Strom)

  • Baujahr1996
  • Zustand der ImmobilieNeubau, Gepflegt
  • HeizungsartZentralheizung
  • EnergieträgerGas
Immowelt logo

Mietkosten

Warmmiete
2.860 €
Nettomiete
9,51 €/m²
1.940 €
Nebenkosten
920 €
Heizkosten
in Warmmiete enthalten
Zusätzliche Kosten
Miete pro Stellplatz
50 €
Provision für Mieter
provisionsfreie Vermietung
Kaution
3 Warmmieten
Weitere Preisinformationen
2 Stellplätze, Miete je: 50,00 EUR
Nettokaltmiete: 1.940,00 EUR

Lage

address-icon
Holzhauser Str. 139BorsigwaldeBerlin (13509)
Die Büro und liegt im VH 1.OG und ist ca. 20 min Fußweg vom U- Bhf Rathaus Reinickendorf entfernt. Zur Autobahn sind es 3 min.

Weitere Informationen

Stichworte Stellplatz vorhanden, Gesamtfläche: 204,00 m², Büroteilfläche: 204,00 m², 3 Etagen

Weitere Services

Lust auf eine Besichtigung?
Eine Frage zur Immobilie?
Mit einer persönlichen Nachricht hast du bessere Chancen auf eine Antwort.
Mit der Nutzung der oben angegebenen Telefonnummer oder durch Klicken auf „Kontaktieren“ akzeptierst Du die Allgemeinen Nutzungsbedingungen, denen Du jederzeit widersprechen kannst. Weitere Informationen zum Datenschutz

Über den Anbieter

Galvanistr.3, 10587 Berlin
partner badgepartner badge
6 Jahre Partnerschaft + Diamond Partner
Anton TeklicDein Kontakt
Online-ID: 23BP3I3P48AA
Referenznummer: ITI 12016
ImmoTek Immobilien e.K.
ImmoTek Immobilien e.K.
Bewertung: 4,9 von 5 Sternen
Mit einer persönlichen Nachricht hast du bessere Chancen auf eine Antwort.
Mit der Nutzung der oben angegebenen Telefonnummer oder durch Klicken auf „Kontaktieren“ akzeptierst Du die Allgemeinen Nutzungsbedingungen, denen Du jederzeit widersprechen kannst. Weitere Informationen zum Datenschutz
Wie zufrieden bist du mit dieser Seite (nicht mit der Immobilie selbst)?