Version: 8.24.0Navigation überspringen
2.066.181 €
282 m²  •  627,5 m² Grundstück
Immowelt logo

Einfamilienhaus zum Kauf
2066181 €
7.328 €/m²
282 m²  •  627,5 m² Grundstück

Haus in Los Angeles

Neu erbaut im Jahr 2020, verfügt dieses moderne zweistöckige Haus über 5 Schlafzimmer mit eigenem Bad, 5,5 Bäder und ein Büro. Der offene Grundriss bietet hohe Decken, bodentiefe Fenster und einen nahtlosen Fluss zwischen drinnen und draußen. Der elegante Wohn- und Essbereich ist um einen steinernen Kamin gerahmt, während die Gourmetküche mit Miele-Geräten, einer mittleren Insel und einer Frühstücksbar ausgestattet ist. Schiebetüren aus Glas führen zu einem Garten für Entertainer mit einem abgesenkten Feuerstelle, einem Grillbereich und einem sprudelnden Salzwasserpool und Spa. Die luxuriöse Hauptsuite verfügt über ein spaähnliches Bad, einen begehbaren Kleiderschrank und einen privaten Balkon. Genießen Sie mehrere Terrassen, eine Sonnenterrasse mit Stadtblick und eine Garage für zwei Autos mit EV-Ladegerät - moderne Eleganz und Komfort in jedem Detail.

Merkmale

  • 627,5 m² Grundstück
  • Stellplatz

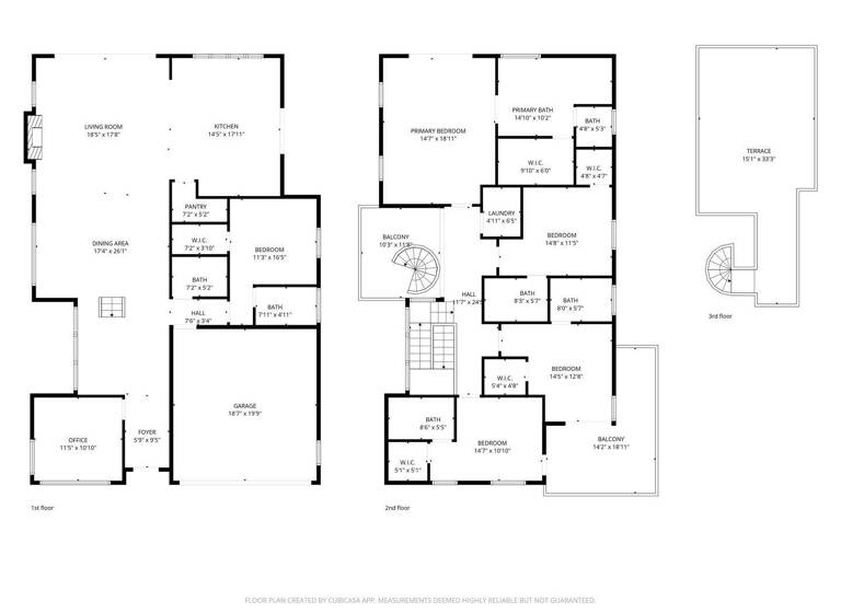
Grundrisse

Grundrisse
1 / 1

Realisiere Dein Projekt

Bausubstanz und Energie

Der Anbieter hat keine Informationen zum Energieverbrauch bereit gestellt.
  • Baujahr1956
Immowelt logo

Preisdetails

Kaufpreis
2066181 €
7.327,92 €/m²
Provision für Käufer
Bitte beachte, das Angebot kann bei Vertragsabschluss die Zahlung einer Provision beinhalten. Weitere Informationen erhältst Du vom Anbieter.

Lage

address-icon
5812 Willis Ave Van Nuys CA 91411 USALos Angeles (91411)

Weitere Informationen

Stichworte Anzahl der Schlafzimmer: 5, Anzahl der Badezimmer: 6

Weitere Services

Lust auf eine Besichtigung?
Eine Frage zur Immobilie?
Nachricht hinzufügen
Mit der Nutzung der oben angegebenen Telefonnummer oder durch Klicken auf „Kontaktieren“ akzeptierst Du die Allgemeinen Nutzungsbedingungen, denen Du jederzeit widersprechen kannst. Weitere Informationen zum Datenschutz

Über den Anbieter

Properstar SA
Properstar SAMaklerbüro
Rue Centrale 8, 1003 LAUSANNE
partner badge
Partnerschaft
Firma Christine HongDein Kontakt
Online-ID: 2nf9e57
Referenznummer: 113068004
Properstar SA
Properstar SA
Bewertung: 5 von 5 Sternen
Nachricht hinzufügen
Mit der Nutzung der oben angegebenen Telefonnummer oder durch Klicken auf „Kontaktieren“ akzeptierst Du die Allgemeinen Nutzungsbedingungen, denen Du jederzeit widersprechen kannst. Weitere Informationen zum Datenschutz
Wie zufrieden bist du mit dieser Seite (nicht mit der Immobilie selbst)?