




Einfamilienhaus zum Kauf545279 €3.813 €/m²5 Zimmer • 143 m² • 490 m² Grundstück
545279 €
3.813 €/m²
5 Zimmer • 143 m² • 490 m² Grundstück
Dein individuelles Traumhaus in Ennepetal - maßgeschneidert für deine Wünsche
Merkmale
- 490 m² Grundstück
- Einbauküche
- Badezimmer: Badewanne, Bad mit Dusche, Bad mit Fenster
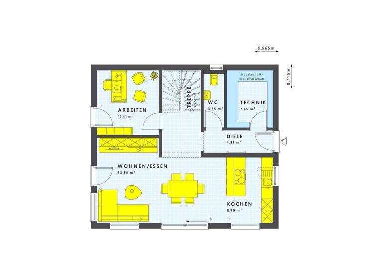
Grundrisse
Grundrisse
1 / 2
Realisiere Dein Projekt
Bausubstanz und Energie
Der Anbieter hat keine Informationen zum Energieverbrauch bereit gestellt.
- Zustand der ImmobilieProjektiert
- HaustypKfW 55
Preisdetails
Kaufpreis
545279 €
3.813,14 €/m²
Provision für Käufer
Bitte beachte, das Angebot kann bei Vertragsabschluss die Zahlung einer Provision beinhalten. Weitere Informationen erhältst Du vom Anbieter.
Geschätzte Gesamtkosten
611.093 €1
Kaufpreis
545.279 €
Kaufnebenkosten
65.814 €
2Notarkosten (1,5%)
8.179 €
Grunderwerbsteuer (6,5%)
35.443 €
Provision für Käufer (3,57%)
19.466 €
Grundbucheintrag (0,5%)
2.726 €
1Der angezeigte Wert ist eine automatisch berechnete Schätzung von immowelt.
2Bei den Angaben handelt es sich um ortsübliche Werte. Individuelle Kosten können abweichen.
Lage

Altenvoerde, Ennepetal (58256)
Der Anbieter hat die genaue Adresse nicht freigegeben
Weitere Informationen
Weitere Services
Lust auf eine Besichtigung?
Eine Frage zur Immobilie?
Über den Anbieter
Niehler str. 340, 50735 Köln
Partnerschaft
Herr Joachim SeidenbergDein Kontakt
Online-ID: 2n78w5l
Referenznummer: 30784-767
Wie zufrieden bist du mit dieser Seite (nicht mit der Immobilie selbst)?



