Die Wohnungen befinden sich in der Cranachstrasse 29 in 2. Reihe in absolut ruhiger Lage, auf einem parkartigen Grundstück, umgeben von viel Grün. Die Fertigstellung der Wohnungen ist im Februar 2026 vorgesehen
Weitere Informationen
Das Wohnhaus
Architektur und Design: Das Wohnhaus besticht durch sein zeitgemäßes Design und seine hochwertige Bauqualität. Die Fassade des Gebäudes kombiniert moderne Elemente mit einer harmonischen Farbgebung, die sich perfekt in die Umgebung einfügt. Große Fensterfronten sorgen für lichtdurchflutete Räume und schaffen eine Verbindung zur Natur. Im Haus befinden sich 20 Wohnungen mit jeweils einem Tiefgaragenstellplatz
Förderung durch L-Bank ,
Die L- Bank fördert dieses Projekt nach dem Landeswohnraumförderungsgesetz mit langfristigen und zinsgünstigen Darlehen ( bei Erfüllen der persönlichen Voraussetzungen.)
So kann eine 4 köpfige Familie ein Darlehen , 15 oder 20 Jahre fest, über € 333.000 zu 1% Zins erhalten ( Stand Januar 2026 )
Tilgungszuschuß
Pro Wohneinheit wird ein Tilgungszuschuß in Höhe von € 6.500 gewährt. Die Höhe der Darlehensschuld vermindert sich entsprechend
Finanzierung
Als zertifizierter Darlehensvermittler unterstützen wir Sie bei Ihrer Finanzierung, z.B. bei der Beschaffung der Ergänzungsfinanzierung.
Zuschuß L-Bank Darlehen
Anstelle eines Darlehens kann auch ein Zuschuß bis zu 6,5% des Gesamtkosten beantragt werden
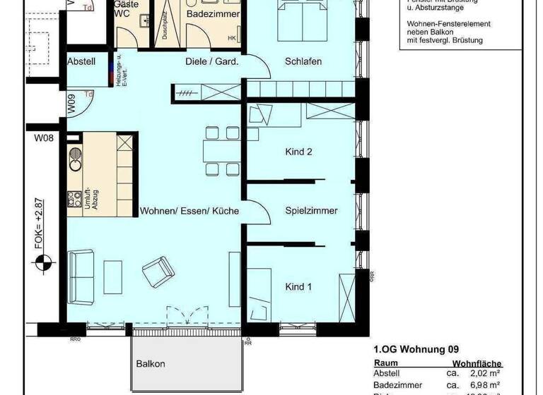
Die Wohnung
Die angebotenen 4-5 Zimmerwohnungen Wohnungen verfügen über eine Wohnfläche von ca. 12 ,m². bzw. 125 m²
Abschreibung bei Vermietung
Im Falle einer Vermietung können die Anschaffungskosten für 6 Jahre degressiv mit 5% der Anschaffungskosten abgeschrieben werden. Insgesamt können in den ersten 6 Jahren rund 27% abgeschrieben werden. Die restliche Abschreibung verteilt sich linear auf 27 Jahre mit ca. 2,7%. Gerne beraten wir Sie hierzu
Baufortschritt
Bezug voraussichtlich 03/26
Stichworte
Zustand: Erstbezug, gepflegt
Versorgung: Städtische Wasserversorgung, Städtische Stromversorgung
Serviceleistungen: Hausmeister
Sonstiges: Neubaustandard