Version: 8.25.1Navigation überspringen
305.000 €
5 Zimmer  •  92 m²  •  6. Geschoss
Immowelt logo

Wohnung zum Kauf
305000 €
3.315 €/m²
5 Zimmer  •  92 m²  •  6. Geschoss

Verkauf Wohnung 92 m² in Athen

Merkmale

  • möbliert
  • 6. Geschoss
  • Badewanne
  • offener Kamin
  • Bergblick

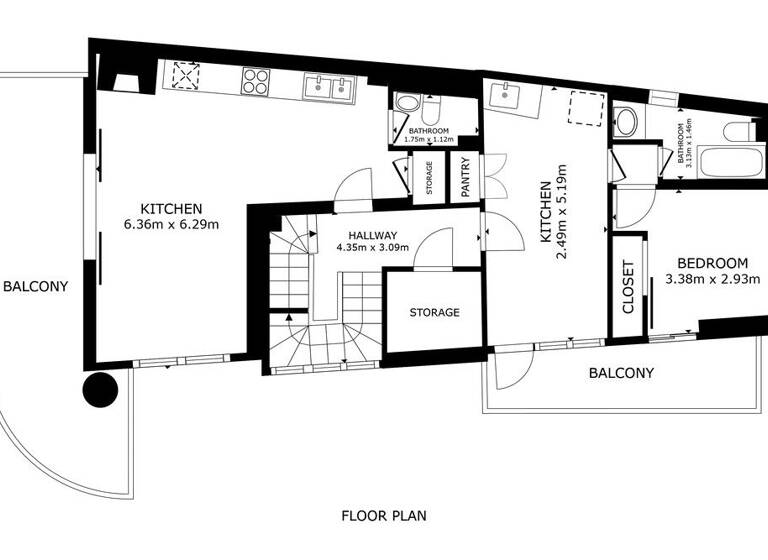
Grundrisse

Grundrisse
1 / 1

Realisiere Dein Projekt

Bausubstanz und Energie

Möchtest du Details zum Energieverbrauch?info_energy_calculation-icon
  • Baujahr2004
Immowelt logo

Preisdetails

Kaufpreis
305000 €
3.315,22 €/m²
Provision für Käufer
Bitte beachte, das Angebot kann bei Vertragsabschluss die Zahlung einer Provision beinhalten. Weitere Informationen erhältst Du vom Anbieter.

Lage

address-icon
Athen
Der Anbieter hat die genaue Adresse nicht freigegeben

Weitere Informationen

Sonstiges Verkauf Wohnflaeche 92 q.m in Athen. Die Wohnung befindet sich in der in der 6. Etage
Etage und besteht aus 3 Schlafzimmern2 Wohnküchen, 2 Küchen, 2 Badezimmer mit Dusche.
Wohnung ist front-layout Bietet an auf den Berg, in der Stadt, beinhaltet auch Kamin, Klimaanlage, Markisen, Parkplat, Grill, Heizung. Gebäude ohne Aufzug.
In Ano Ilisia, in einem der ruhigsten und grünsten Teile der Gegend, wird diese Penthouse-Wohnung mit einer Gesamtfläche von 92 m² angeboten, inklusive exklusiver Nutzung einer Dachterrasse von 40 m² sowie eines offenen Stellplatzes. Die Immobilie wurde im Jahr 2004 errichtet und ist derzeit in zwei unabhängige Wohneinheiten aufgeteilt, ein Studio mit 33 m² und eine Maisonette mit 58 m², die sich bei Bedarf problemlos zu einer einzigen Penthouse-Wohnung zusammenführen lassen. Es handelt sich um ein besonders flexibles Angebot, das sich sowohl zur Eigennutzung als auch für verschiedene Investitionsmodelle eignet.Das Studio verfügt über einen offenen Wohn-, Küchen- und Essbereich, ein Schlafzimmer und ein Badezimmer, während sich die Maisonette über zwei Ebenen erstreckt, mit einem hellen Wohnbereich und einer Küche auf der unteren Ebene sowie einem Schlafzimmer auf der oberen Ebene, die zusätzlich über einen internen Aufzug erreichbar ist. Beide Einheiten öffnen sich zu Balkonen mit freiem Blick auf den Hymettus, während die Dachterrasse einen weiten Panoramablick bis hin zum Lykabettus bietet und mit einem eingebauten BBQ ausgestattet ist, wodurch ein idealer Rahmen für Entspannung, geselliges Beisammensein und Leben im Freien entsteht.Die Immobilie ist hell, gepflegt und funktional ausgestattet und verfügt über autonome Heizung, energieeffiziente Fensterrahmen mit Doppelverglasung, Sicherheitstür, Kamin, Bodenbeläge aus Fliesen und Holz sowie eine doppelte Ausrichtung, die Licht und natürliche Belüftung zusätzlich verbessert. Das Gebäude bietet einen Aufzug, barrierefreien Zugang, Anschluss an das Erdgasnetz sowie Glasfaserinfrastruktur, während die Lage unmittelbaren Zugang zu öffentlichen Verkehrsmitteln, Schulen, dem Universitätscampus, der NTUA, Parks und Freizeitflächen sowie eine schnelle Anbindung an die Attiki Odos, die Katehaki Avenue und Kaisariani gewährleistet. Eine Immobilie, die Privatsphäre, Komfort und solides Nutzungspotenzial in einer Gegend mit dauerhaft hoher Nachfrage vereint. Stichworte Garage vorhanden, Anzahl der Schlafzimmer: 3, Anzahl der Badezimmer: 2, Anzahl der Wohn-Schlafzimmer: 3, 1 Etagen, Distanz zum Flughafen: 30.00, Distanz vom Zentrum: 0.00, Distanz zum Meer: 10000

Weitere Services

Lust auf eine Besichtigung?
Eine Frage zur Immobilie?
Nachricht hinzufügen
Mit der Nutzung der oben angegebenen Telefonnummer oder durch Klicken auf „Kontaktieren“ akzeptierst Du die Allgemeinen Nutzungsbedingungen, denen Du jederzeit widersprechen kannst. Weitere Informationen zum Datenschutz

Über den Anbieter

14th km Thessaloniki - Mihaniona, 57001 THESSALONIKI
Frau Marianna PanagkasidouDein Kontakt
Online-ID: 26PPJ4K2LHCD
Referenznummer: 65813
Grekodom Development Constructing and BrokerageTrading Company S.A
Grekodom Development Constructing and BrokerageTrading Company S.A
Bewertung: 5 von 5 Sternen
Nachricht hinzufügen
Mit der Nutzung der oben angegebenen Telefonnummer oder durch Klicken auf „Kontaktieren“ akzeptierst Du die Allgemeinen Nutzungsbedingungen, denen Du jederzeit widersprechen kannst. Weitere Informationen zum Datenschutz
Wie zufrieden bist du mit dieser Seite (nicht mit der Immobilie selbst)?