

Wohnung zur Miete - Erstbezug890 €2 Zimmer • 47,5 m² • 3. Geschoss • frei ab 01.07.2026
890 €
2 Zimmer • 47,5 m² • 3. Geschoss • frei ab 01.07.2026
ODO25 | 2 Zimmer | Balkon | praktische Raumaufteilung | Mietbeginn ab 01.07.2026
Merkmale
- frei ab 01.07.2026
- 3. Geschoss
- Einbauküche
- Personenaufzug
- 19 Stellplätze: 19 Tiefgaragenstellplätze
- Balkon
- Bad mit Dusche
- voll klimatisiert
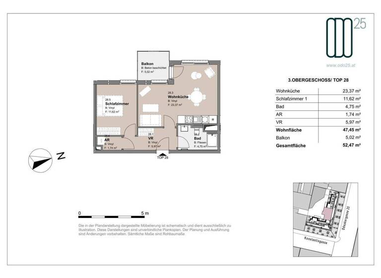
Grundrisse
Grundrisse
1 / 1
Virtueller Rundgang
Realisiere Dein Projekt
Bausubstanz und Energie
Heizwärmebedarf (HWB)
B
Gesamtenergieeffizienz (fGEE)
A+
- Baujahr2026
- Zustand der ImmobilieErstbezug
- EnergieträgerErdwärme
Mietkosten
Gesamtmiete
1.089,02 €
Nettokaltmiete
20,64 €/m²
890,36 €
Betriebskosten
99,65 €
Umsatzsteuer
99,01 €
Nicht in Gesamtmiete enthalten
Miete pro Stellplatz
110 €
Kaution
3268 €
Weitere Preisinformationen
19 Tiefgaragenstellplätze, Miete je: 110,00 EUR
Nettokaltmiete: 890,36 EUR
Nettokaltmiete: 890,36 EUR
Lage

Odoakergasse 25, Wien (1160)
Weitere Informationen
Weitere Services
Lust auf eine Besichtigung?
Eine Frage zur Immobilie?
Über den Anbieter
OPTIN Immobilien GmbHMaklerbüro
Goldschmiedgasse 2, 1010 Wien
6 Jahre Partnerschaft
Firma Team odo25Dein Kontakt
Online-ID: 2nlm454
Referenznummer: 2025-25-28
OPTIN Immobilien GmbH
Bewertung: 3,8 von 5 Sternen
Wie zufrieden bist du mit dieser Seite (nicht mit der Immobilie selbst)?

