
Oschatzer Wohnstätten GmbH
Herr Mario Katzschke
034 ···
Nr. anzeigenPreise & Kosten
Kaution
1155
Warum sehe ich diese Anzeige? – Du siehst diese Anzeige basierend auf Ihrer Navigation auf unserer Website und den Suchkriterien, die du verwendet hast.
Lage
Das Gebäude befindet sich im Wohngebiet Oschatz/Nord. Hier finden Sie in unmittelbarer Nähe zahlreiche Einkaufsmöglichkeiten, Arztpraxen, Behörden uvm. Eine Anbindung an den öffentlichen Nahverkehr ist ebenso gegeben.
Die Wohnung
Wohnungslage
Erdgeschoss
Wohnanlage
Energie & Heizung
Warum sehe ich diese Anzeige? – Du siehst diese Anzeige basierend auf Ihrer Navigation auf unserer Website und den Suchkriterien, die du verwendet hast.
Energieausweistyp
Verbrauchsausweis
Gebäudetyp
Wohngebäude
Effizienzklasse
C
Endenergieverbrauch
94,00 kWh/(m²·a)
Weitere Energiedaten
Energieträger
Elektro, Gas
Heizungsart
Zentralheizung
Details
Objektbeschreibung
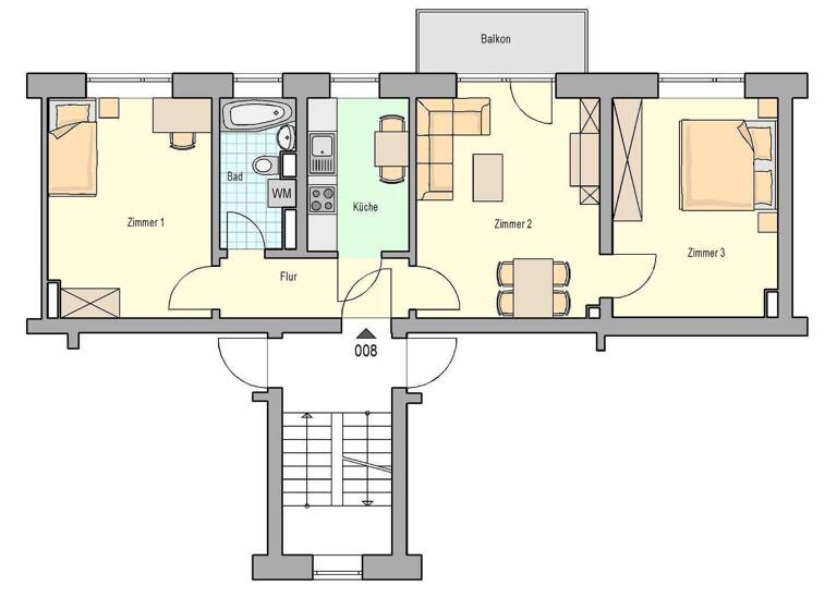
Die Wohnung verfügt über einen Flur, ein großes Wohnzimmer mit Balkon, zwei Schlafzimmer, eine Küche und ein Tageslichtbad mit Wanne. Das Wohnzimmer, das Badezimmer, die Küche sowie ein Schlafzimmer sind vom Flur aus erreichbar. Das zweite Schlafzimmer grenzt an das Wohnzimmer. In den Räumen wurde ein PVC-Belag verlegt. Das...
Weitere Informationen
zum Grundriss / Bilder
Die Größe der dargestellten Fenster und Türen einschließlich ihrer Schlagrichtungen sowie ihre Anordnung können im Original von der Darstellung abweichen. Gleiches gilt für mögliche Einbauten oder Sanitärkeramiken. Der Grundriss dient lediglich zur Veranschaulichung und ist nicht maßstabsgetreu...
Anbieter der Immobilie
Oschatzer Wohnstätten GmbH
Lutherstraße 17, 04758 Oschatz
Online-ID: 2mhbl5k
Finde Angebote wie dieses
Hier geht es zu unserem Impressum, den Allgemeinen Geschäftsbedingungen, den Hinweisen zum Datenschutz und nutzungsbasierter Online-Werbung.