Version: 8.24.0Navigation überspringen
875.000 €
5 Zimmer  •  144 m²  •  344 m² Grundstück
Immowelt logo

Mehrfamilienhaus zum Kauf • provisionsfrei
875000 €
6.076 €/m²
5 Zimmer  •  144 m²  •  344 m² Grundstück

Doppelhaushälfte, Neubau in verkehrsgünstiger Lage Brunnthal- Haus 3

Neubau von 6 modernen Doppelhaushälften inkl. Garage und Stellplatz in einem reinen Wohngebiet, direkt am Wald

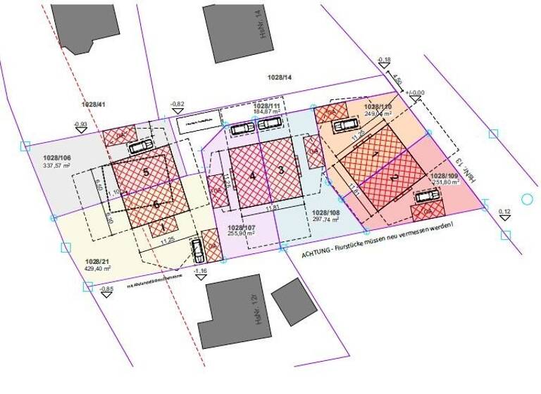
Grund gesamt 1850 qm

Aufteilung: KG + EG + OG + DG / 1 Garage + Stellplatz pro Haus

Außenmaße:ca. 12 m x 6 m

Angaben oben für Haus- Nr. 3

Baugenehmigung: liegt vor

Baubeginn März 2026. Fertigstellung Mitte 2027. (Bauzeit ca. 14 Monate ab Baubeginn)

Die Gestaltung der Grundrisse ist noch beeinflussbar und kann nach Ihren Wünschen geändert und umgeplant werden. Die Baufirma berät Sie dazu gerne bei einem persönlichen Besprechungstermin in ihrem Büro.

Merkmale

  • Bezug: 2027
  • 344 m² Grundstück
  • Keller
  • Garage, Außen-Stellplatz
  • Gäste-WC
  • Garten
  • Terrasse
  • Bodenbelag: Fliesen, Parkett
- 5 Zimmer, Bad + Gäste WC
- Garage
- massive Bauweise
- Energieeffizienz A
- Hobbyraum komplett ausgebaut
- inklusive aller Malerarbeiten

Heizung:
- Wärmepumpe
- Fußbodenheizung mit Einzelraumsteuerung
auch im Hobbyraum
- Handtuchheizkörper in den Bädern

Fenster:
- Fenster mit Dreifachverglasung
- Innenfensterbänke in Naturstein
- elektrische Rollläden

Treppen:
- wangenfreie Massivholztreppe

hochwertige Böden:
- Parkett in allen Wohnräumen nach Wahl
- Fliesen im Flur, in den Bädern und im
KG (auch im Hobbyraum, nach Wunsch
ist auch Parkett mögl.)

Badausstattung:
- hochwertige Porzellanserie und
Armaturen oder nach Wahl
- Exklusive Fliesen nach Wahl

Betreuung und Sicherheitsleistung:
- individuelle Betreuung und Beratung
- persönlicher Objektbauleiter vom ersten
Spatenstich bis zur Übergabe und darüber hinaus
- Umplanung und Gestaltung der Grundrisse nach
Ihren Wünschen
- Blower- Door -Test
- Energieausweis

umfangreiches Sicherheitspaket:
- Feuerrohbauversicherung
- Baugewährleistungsversicherung
- Vertragserfüllungsbürgschaft gem. BGB
- baubegleitende Qualitätsprüfung und
Zertifizierung durch Experten der TÜV od. Dekra

Grundrisse

Grundrisse
1 / 3

Realisiere Dein Projekt

Bausubstanz und Energie

Der Anbieter hat keine Informationen zum Energieverbrauch bereit gestellt.
  • Baujahr2026
  • Zustand der ImmobilieNeubau
  • HaustypKfW 55
  • HeizungsartFußbodenheizung
  • EnergieträgerLuft-/Wasser-Wärmepumpe
Immowelt logo

Preisdetails

Kaufpreis
875000 €
6.076,39 €/m²
Preis pro Stellplatz
10000 €
Provision für Käufer
provisionsfrei
Geschätzte Gesamtkosten
923.125 €1
Kaufpreis
875.000 €
Notarkosten (1,5%)
13.125 €
Grunderwerbsteuer (3,5%)
30.625 €
Grundbucheintrag (0,5%)
4.375 €
1Der angezeigte Wert ist eine automatisch berechnete Schätzung von immowelt.
2Bei den Angaben handelt es sich um ortsübliche Werte. Individuelle Kosten können abweichen.

Lage

address-icon
WaldbrunnBrunnthal (85649)
Der Anbieter hat die genaue Adresse nicht freigegeben
Das Grundstück liegt in einem reinen Wohngebiet in einer Anliegerstraße mit sehr guter Verkehrsanbindung. Kindergarten, Schule, Bushaltestelle, Ärzte, Apotheken und Einkaufsmöglichkeiten sind in der unmittelbaren Umgebung vorhanden.
Das Gewerbegebiet Brunnthal (Ikea) ist gleich nebenan und fußläufig in ca. 18 Minuten erreichbar. Die Auffahrten zur A99 und zur A8 sind nur ein paar Minuten entfernt und bieten eine
schnelle Verbindung nach München und in alle Richtungen.

Weitere Services

Lust auf eine Besichtigung?
Eine Frage zur Immobilie?
Nachricht hinzufügen
Mit der Nutzung der oben angegebenen Telefonnummer oder durch Klicken auf „Kontaktieren“ akzeptierst Du die Allgemeinen Nutzungsbedingungen, denen Du jederzeit widersprechen kannst. Weitere Informationen zum Datenschutz

Über den Anbieter

H. BrunmayrMaklerbüro
Robert-Koch-Straße 22 D, 82031 Grünwald
partner badge
Partnerschaft
Frau Heidemarie BrunmayrDein Kontakt
Online-ID: 2k2ah54
Referenznummer: Bru-B13-H3
H. Brunmayr
Bewertung: 4 von 5 Sternen
Nachricht hinzufügen
Mit der Nutzung der oben angegebenen Telefonnummer oder durch Klicken auf „Kontaktieren“ akzeptierst Du die Allgemeinen Nutzungsbedingungen, denen Du jederzeit widersprechen kannst. Weitere Informationen zum Datenschutz
Wie zufrieden bist du mit dieser Seite (nicht mit der Immobilie selbst)?