Version: 8.26.0Navigation überspringen
3.350 €
206 m² Bürofläche
Immowelt logo

Praxisfläche zur Miete
3.350 €
206 m² Bürofläche

Charmantes Büro/Praxis in Gründerzeit-Villa

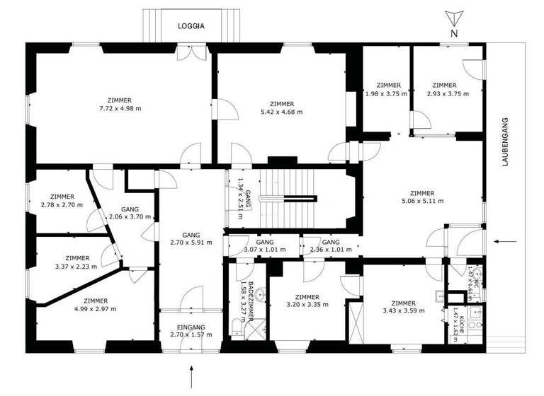
Im Erdgeschoss dieser repräsentativen, denkmalgeschützten Villa aus dem Jahr 1850 stehen rund 200 m² vielseitig nutzbare Gewerbefläche zur Verfügung. Die Räumlichkeiten wurden zuletzt als Praxis genutzt und eignen sich ebenso ideal für eine Kanzlei oder ein Büro.
Ein zentraler Flur verbindet alle Räume, zwei separate Eingänge ermöglichen eine flexible Aufteilung in eigenständige Einheiten. Hohe Decken, große Fenster und elegante Altbaudetails verleihen den Räumen ein helles, stilvolles Ambiente.
Neben mehreren Arbeits- und Behandlungsräumen gibt es ein Badezimmer, ein separates WC sowie eine kleine Mitarbeiterküche.

Die Miete beträgt 3.600 Euro (inkl. einer Doppelgarage und danebenliegendem Lagerraum sowie zwei Außenstellplätzen) zusätzlich 400 Euro Nebenkostenvorauszahlung.

Es besteht die Möglichkeit, weitere 3 Garagenstellplätze (á 80 Euro pro Monat) sowie drei weitere Außenstellplätze (á 45 Euro pro Monat) anzumieten.

Ein Objekt mit Charakter, das Funktionalität, Lage und ein repräsentatives Auftreten perfekt vereint.

Die Vermietung erfolgt für den Mieter provisionsfrei!

Merkmale

  • 4 Stellplätze: 2 Garagen, 2 Außen-Stellplätze
  • Bodenbelag: Parkett

Grundrisse

Grundrisse
1 / 1

Bausubstanz und Energie

Energieausweis

Ein Energieausweis ist für diesen Gebäudetyp nicht notwendig.
  • Baujahr1850
Immowelt logo

Mietkosten

Warmmiete
4.000 €
Nettomiete
3.350 €
Nebenkosten
400 €
Heizkosten
in Warmmiete enthalten
Zusätzliche Kosten
Miete pro Stellplatz
80 €
Provision für Mieter
Bitte beachte, das Angebot kann bei Vertragsabschluss die Zahlung einer Provision beinhalten. Weitere Informationen erhältst Du vom Anbieter.
Kaution
keine Angabe
Weitere Preisinformationen
2 Stellplätze, Miete je: 45,00 EUR
2 Garagenstellplätze, Miete je: 80,00 EUR
Nettokaltmiete: 3.350,00 EUR

Lage

address-icon
PetershausenKonstanz (78464)
Der Anbieter hat die genaue Adresse nicht freigegeben
Die Büro- oder Praxisfläche befindet sich am Rand des beliebten Stadtteils Musikerviertel. Das Umfeld ist geprägt von Jugendstilvillen mit einer Mischung aus Wohn- und Geschäftsnutzungen, darunter Praxen, Kanzleien und Dienstleistungsunternehmen. Das Klinikum Konstanz, das Buff Medical Resort sowie der Zähringerplatz befinden sich in unmittelbarer Nähe und sorgen für zusätzliche Besucherfrequenz.
Die Anbindung an den öffentlichen Nahverkehr ist hervorragend; Bushaltestellen und wichtige Verkehrsachsen sind in wenigen Minuten erreichbar. Für Ihre Kunden und Mitarbeiter stehen mehrere Stellplätze als komfortable Parkmöglichkeiten zur Verfügung. Es ist vorgesehen, dass eine Doppelgarage sowie zwei Außenstellplätze fest angemietet werden; drei weitere Garagen sowie drei weitere Außenstellplätze sind auf Nachfrage ebenfalls verfügbar.
Die Gewerbefläche befindet sich in attraktiver und gut frequentierter Lage an der Mainaustraße, einer der zentralen Verkehrsadern der Stadt Konstanz. Durch die hohe Passanten- und Fahrzeugfrequenz bietet der Standort exzellente Sichtbarkeit und Werbewirkung - ideal für Unternehmen, die von Laufkundschaft oder Präsenz im Stadtbild profitieren möchten.
Insgesamt überzeugt die Lage durch ihre Zentralität, Sichtbarkeit, das charmante Umfeld aus wunderschönen Jugendstilvillen und die gute Erreichbarkeit - ein idealer Standort für anspruchsvolle Gewerbetreibende mit Repräsentationsanspruch.

Weitere Informationen

Stichworte Gesamtfläche: 206,00 m², Bundesland: Baden-Württemberg

Weitere Services

Lust auf eine Besichtigung?
Eine Frage zur Immobilie?
Mit einer persönlichen Nachricht hast du bessere Chancen auf eine Antwort.
Mit der Nutzung der oben angegebenen Telefonnummer oder durch Klicken auf „Kontaktieren“ akzeptierst Du die Allgemeinen Nutzungsbedingungen, denen Du jederzeit widersprechen kannst. Weitere Informationen zum Datenschutz

Über den Anbieter

Konzilstraße 3, 78462 Konstanz
partner badge
10 Jahre Partnerschaft
Herr Lukas Wößner
Herr Lukas WößnerDein Kontakt
Online-ID: 25VN9924ZDP8
Referenznummer: KO-GN982
Wie zufrieden bist du mit dieser Seite (nicht mit der Immobilie selbst)?