Jeder Quadradmeter durchdacht - Wohnen auf einer Ebene
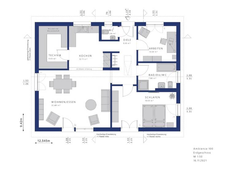
Unglaubliche Vielfalt und Flexibilität bietet der Bungalow "Ambience 100": Vom klassischen Walmdach-Bungalow über den mediterranen Stil bis hin zur ein- oder zweigeschossigen Designer-Variante ist alles möglich. Weitere Variabilität bieten unterschiedliche Größen und zahlreiche Architektur-Bauteile, die etwa in Form eines Erkers ebenfalls mehr Raum schaffen. Der Zwei-Personen-Bungalow zeigt, welch überzeugende Grundrisslösungen sich auf 100 Quadratmetern realisieren lassen. Der Entwurf bietet neben der Diele Platz für eine praktische Garderobe plus Gäste-WC und auf zwei Wegen gelangt man in den offenen Koch-Ess-Wohnbereich. Davon abgesetzt finden sich das Schlafzimmer - mit eigenem Gartenausgang -, das Badezimmer und sogar noch ein separates Arbeitszimmer. Das kann als Multifunktionsraum für Hobby, häusliches Arbeiten und für Übernachtungsgäste genutzt werden. Dieses Grundrisskonzept lässt sich mit einem Raum für die Haustechnik sogar ohne Keller auf Bodenplatte realisieren!
Merkmale
550 m² Grundstück
Dieses Haus wird in bekannter Bien-Zenker Qualität angeboten, darin sind folgende Leistungen schon enthalten:
+ Außen fertig inklusive der Putzfassade + Dacheindeckung inkl. Spenglerarbeiten + Kunststofffenster mit Dreischeibenverglasung und einem u-Wert von 0,5 W/m²K + in der Wand eingebaute Rollläden mit Kurbelantrieb + Holzwangentreppe in Buche + Bodenplatte mit Erdarbeiten und Perimeterdämmung des Sockels + Elektroenergie, Trinkwasser ab Hausanschluss betriebsbereit installiert
Wir erstellen Ihr Haus auch gerne komplett bezugsfertig. Wir beraten Sie gern über die möglichen Ausbaustufen.
Grundrisse
Grundrisse
1 / 3
Realisiere Dein Projekt
Bausubstanz und Energie
Möchtest du Details zum Energieverbrauch?
Zustand der ImmobilieProjektiert
Preisdetails
Kaufpreis
272064 €272.064 €
2.748,12 €/m²
Provision für Käufer
provisionsfrei
Geschätzte Gesamtkosten
291.108 €1
Kaufpreis
272.064 €
Kaufnebenkosten
19.044 €
2
Notarkosten (1,5%)
4.081 €
Grunderwerbsteuer (5%)
13.603 €
Grundbucheintrag (0,5%)
1.360 €
1Der angezeigte Wert ist eine automatisch berechnete Schätzung von immowelt.
2Bei den Angaben handelt es sich um ortsübliche Werte. Individuelle Kosten können abweichen.
Lage
Schönewerda, Artern/Unstrut (06556)
Der Anbieter hat die genaue Adresse nicht freigegeben
Das Grundstück für dieses Hausprojekt befindet sich in Artern angenehm und ruhig gelegen. Einkaufsmöglichkeiten, soziale Einrichtungen und öffentlicher Verkehr sind ortsüblich erreichbar.
Doch nicht ganz Ihre Wunschlage? Das ist aber kein Problem. Wir sollten uns einfach über Ihre Wünsche unterhalten. Zurzeit verfüge ich über zahlreiche weitere Grundstücke in der Region.
Sie haben bereits ein eigenes Baugrundstück? Glückwunsch! Natürlich baue ich mit Ihnen auch auf Ihrem eigenen Grundstück Ihr Traumhaus.
Also, einfach anrufen - es gibt für fast alles eine überzeugende Lösung.
Jedoch bitte ich Sie zu berücksichtigen:
Ich bin kein Makler und trete auch nicht als ein solcher auf, sondern baue mit sehr viel Herz und Kompetenz Häuser. Im Interesse der jeweiligen Grundstückseigentümer sowie meiner Bauherren werde ich also ohne ein persönliches Gespräch zum Thema Hausbau nie irgendwelche Grundstücksdaten weiterleiten. Keine Ausnahmen an dieser Stelle.
Meine Angebote erfolgen freibleibend und unverbindlich. Irrtum und Zwischenverkauf bleiben vorbehalten. Den auf die einzelnen Grundstücke bezogenen Angaben liegen die mir gegenüber erteilten Auskünften und Informationen zugrunde. Trotz sorgfältiger Prüfung kann ich daher eine Haftung für deren Richtigkeit und Vollständigkeit nicht übernehmen.
Und... natürlich ist es mir selbst mit bestem Willen nicht möglich, eine dauerhafte Verfügbarkeit der Grundstücke zu garantieren. Es gibt jedes Grundstück halt nur einmal. Leider. "
Weitere Informationen
Sonstiges
Das Grundstück ist im obigen Preis eingerechnet, es wird ohne zusätzliche Provision an einen Bien-Zenker Bauherren bereitgestellt. Zusätzliche Baunebenkosten müssen noch hinzugerechnet werden, hierüber beraten wir Sie gern. Wir bieten Ihnen interessante Finanzierungsmöglichkeiten inklusive Beantragung aller Fördermittel! Die Hausabbildungen zeigen teilweise Sonderausstattungen, die nicht im Preis enthalten sind. Sie möchten dieses Haus besichtigen: Rufen Sie uns an und zufriedene Kunden zeigen ihnen gern ihr Haus! Gute Beratung ist der Anfang von Allem. Deshalb analysieren wir gemeinsam mit Ihnen Ihre Vorstellungen, Wünsche und Bedürfnisse und finden so das für Sie und Ihre Familie passende BIEN ZENKER Haus. Interessiert? Rufen Sie mich gleich an und vereinbaren Sie noch heute einen kostenlosen und unverbindlichen Beratungstermin.
Stichworte
Anzahl der Schlafzimmer: 1, Anzahl der Badezimmer: 2, 1 Etagen