Vermietete 3-Zimmer-Eigentumswohnung mit Balkon und Stellplatz in Warin
Die von uns exklusiv angebotene Eigentumswohnung befindet sich in einem gepflegten Mehrfamilienhaus aus den Baujahren 1992-1993. Die Wohnanlage präsentiert sich in einem guten Allgemeinzustand und bietet eine solide Grundlage für eine nachhaltige Kapitalanlage. Die Beheizung der Immobilie erfolgt über eine Gas-Heizung, die im Jahr 2020 erneuert wurde.
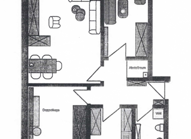
Die Wohnung liegt im 2. Obergeschoss links und verfügt über eine Wohnfläche von ca. 73,71 m². Sie ist Bestandteil einer Wohnungseigentümergemeinschaft mit einem Miteigentumsanteil von 117 / 10.000-stel.
Die vermietete 3-Zimmer-Wohnung bietet eine durchdachte und gut vermietbare Raumaufteilung. Über den großzügigen Flur sind alle Räume bequem erreichbar. Das Wohnzimmer verfügt über einen direkten Zugang zum Balkon, der zum Innenhof ausgerichtet ist und einen ruhigen Außenbereich bietet.
Neben dem Wohnzimmer stehen zwei weitere Zimmer zur Verfügung, die sich flexibel als Schlaf-, Kinder- oder Arbeitszimmer eignen. Die Küche ist separat gelegen. Das Tageslichtbad ist mit einer Badewanne ausgestattet. Die Fußböden sind mit Laminat und Fliesen versehen.
Zur Wohnung gehören ein eigener Kellerraum sowie ein Außenstellplatz, der die Attraktivität für Mieter zusätzlich erhöht und die Vermietbarkeit positiv beeinflusst.
Die Wohnung ist aktuell vermietet und erzielt eine Nettokaltmiete in Höhe von 5,65 €/m² inkl. der Miete für den KFZ-Stellplatz. Damit bietet die Immobilie von Beginn an laufende Mieteinnahmen und ist insbesondere für Kapitalanleger interessant.
3.570,00 € inkl. gesetzlicher MwSt.. Die Angaben zum Objekt stammen vom Verkäufer. Für die Richtigkeit und Vollständigkeit wird keine Haftung übernommen. Weitere Informationen siehe Provisionshinweis.
Weitere Preisinformationen
1 Stellplatz, Kaufpreis: 15,00 EUR
Geschätzte Gesamtkosten
91.693 €1
Kaufpreis
84.900 €
Kaufnebenkosten
6.793 €
2
Notarkosten (1,5%)
1.274 €
Grunderwerbsteuer (6%)
5.094 €
Grundbucheintrag (0,5%)
425 €
1Der angezeigte Wert ist eine automatisch berechnete Schätzung von immowelt.
2Bei den Angaben handelt es sich um ortsübliche Werte. Individuelle Kosten können abweichen.
Lage
Warin (19417)
Der Anbieter hat die genaue Adresse nicht freigegeben
Die Immobilie befindet sich in zentraler und nachhaltig gefragter Lage von Warin, einer etablierten Kleinstadt im Landkreis Nordwestmecklenburg in Mecklenburg-Vorpommern. Der Fritz-Reuter-Platz liegt im Ortskern und profitiert von einer gewachsenen Infrastruktur sowie einer stabilen Wohnnachfrage - ideale Voraussetzungen für eine langfristig sichere Kapitalanlage.
Einkaufsmöglichkeiten, medizinische Versorgung, Apotheken, Schulen, Kindertagesstätten sowie weitere Einrichtungen des täglichen Bedarfs sind fußläufig erreichbar. Die zentrale Lage sorgt für eine hohe Alltagstauglichkeit und macht das Objekt besonders attraktiv für Mieter unterschiedlicher Altersgruppen.
Die Nähe zum Großen Wariner See sowie zur seenreichen, naturnahen Umgebung steigert zusätzlich die Wohnqualität und trägt zur konstanten Vermietbarkeit der Lage bei. Freizeit- und Erholungsangebote in direkter Umgebung wirken sich positiv auf die Standortattraktivität aus.
Die verkehrstechnische Anbindung ist gut: Über die umliegenden Landes- und Bundesstraßen sind die regionalen Zentren Wismar und Schwerin zügig erreichbar. Der öffentliche Personennahverkehr bindet Warin zuverlässig an das Umland an. Die Kombination aus zentraler Lage, guter Infrastruktur und naturnahem Umfeld stellt eine solide Grundlage für eine werthaltige und perspektivisch stabile Investition dar.
Weitere Informationen
Provisionshinweis
3.570,00 € inkl. gesetzlicher MwSt.. Die Angaben zum Objekt stammen vom Verkäufer. Für die Richtigkeit und Vollständigkeit wird keine Haftung übernommen. Der Käufer zahlt im Erfolgsfall an die Firma Immobilienhaus Wagner GmbH eine Käufer-Maklerprovision in Höhe von 3.570,00 € inkl. gesetzlicher MwSt. Dieses Exposé ist eine Vorinformation, als Rechtsgrundlage gilt allein der notariell abgeschlossene Kaufvertrag.
Sonstiges
Sie kennen jemanden der eine Immobilie veräußern möchte?
Sprechen Sie uns gerne an & sichern Sie sich auf unkompliziertem Weg die attraktive Tippgeberprovision bei Immobilienhaus Wagner!
Stichworte
Stellplatz vorhanden, Anzahl der Schlafzimmer: 2, Anzahl der Badezimmer: 1, Anzahl Balkone: 1, Bundesland: Mecklenburg-Vorpommern, 3 Etagen, modernisiert: 2020, Distanz zum Flughafen: 153.0, Distanz zum Hauptbahnhof: 4.4, Distanz zur Autobahn: 9.5, Distanz zum Bus: 0.4