'GLP Gewerbe- und Logistikpark Berlin-Adlershof' insgesamt 14 Gebäude mit einer Nutzfläche von ca. 60.000 m² ca. 55.000 m² Grundstücksfläche Nutzung des Grundstücks erfolgt auf der Grundlage des von der Projektgesellschaft erstellten Masterplans durch Redevelopment der vorhandenen Bausubstanz sowie durch Neubau von Bürogebäuden und Hallen entstehen Flächen für Forschung und Entwicklung, Labortechnik, Produktion, Distribution, Lagerhaltung Projektbeschreibung: Phase 1 - die vorhandenen Hallen mit ca. 11.000 m² und der angrenzende Bürotrakt mit 1.800 m² Nutzfläche wurden modernisiert und instandgesetzt (Redevelopment) Phase 2 - Abriss der bestehenden Altgebäude erfolgt, 8 Bürowürfel á 2.500 m² Nutzfläche sowie 6 Hallen (8 m lichte Höhe) á 2.100 m² Nutzfläche mit integrierter Büroflächen (jeweils ca. 25 % der Hallenfläche) errichtet (Neubauten)
Gebäude B 5 Tower Neubau
2 Personenaufzüge EDV-Raum mit LAN-Schrank und Umluftkühlanlage EDV-Netz mit sternförmiger Verkabelung der Arbeitsplätze bildschirmarbeitsplatzgerechte Beleuchtung außenliegender Sonnenschutz, elektrisch betrieben und raumweise regelbar, geschützt durch Windwächter stark strapazierfähiger, antistatischer Bodenbelag nach Wahl effizientes Fernwärmenetz Fußbodenheizung mit Niedertemperatursystem Photovoltaikmodule auf den Dachflächen und in den Fassadenflächen integriert
Merkmale
Personenaufzug
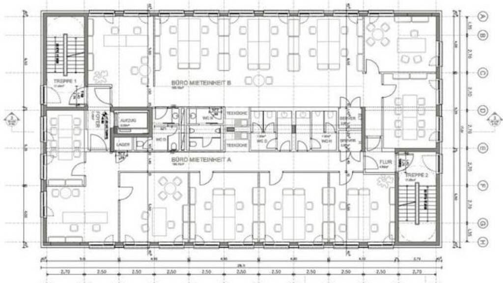
Grundrisse
Verschaffe dir einen genauen Überblick über die Raumaufteilung.
Realisiere Dein Projekt
Bausubstanz und Energie
Möchtest du Details zum Energieverbrauch?
Mietkosten
Monatliche Miete
16,30 €/m²
Nebenkosten
3,50 €
Provision für Mieter
Bitte beachte, das Angebot kann bei Vertragsabschluss die Zahlung einer Provision beinhalten. Weitere Informationen erhältst Du vom Anbieter.
Kaution
keine Angabe
Lage
Müggelheim, Berlin (12489)
Der Anbieter hat die genaue Adresse nicht freigegeben
unweit des neuen Flughafens BER in Berlin-Schönefeld Deutschlands modernster Technologiepark und wichtigster Wissenschafts-, Wirtschafts- u. Medienstandort der Hauptstadtregion Berlin-Brandenburg liegt im südwestlichen Bereich des Entwicklungsgebietes Adlershof grenzt westlich an die Hermann-Dorner-Allee und östlich an die James-Franck-Straße im Technologiepark Adlershof sind u.a. die Naturwissenschaftliche Fakultät der Humboldt Universität und weitere außeruniversitäre Forschungsinstitute angesiedelt im direkten Umfeld verkehren mehrere Buslinien Autobahnauffahrt "Adlershof" (A113) befindet sich im direkten Umfeld
Weitere Informationen
Provision
Die Anmietung dieser Flächen ist für den Mieter provisionsfrei.