Version: 8.24.0Navigation überspringen
650 €
42 m² Bürofläche
Immowelt logo

Bürofläche zur Miete
650 €
42 m² Bürofläche

einzelne Büroräume in Rum ab sofort verfügbar

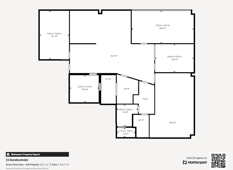
Über das großzügige Treppenhaus oder den Personenlift erreicht man dieses lichtdurchflutete Büroeinheit im zweiten Obergeschoss des Hauses Bundesstraße 23 in Rum . Diese ca. 197 m² umfassende Einheit verfügt über vier Büroräume, eigene Sanitäreinheiten sowie einen Sozialraum mit voll ausgestatteter Teeküche.

ACHTUNG: ES KÖNNEN AUCH EINZELNE BÜRORÄUME ANGEMIETET WERDEN! Je nach dem wieviel Platz Sie für Ihr Unternehmen benötigen, besteht die Möglichkeit einen, zwei oder alle Räume anzumieten - ganz nach Ihren Bedürfnissen!

Merkmale

  • Bezug: Sofort
  • Einbauküche
  • Personenaufzug

Grundrisse

Grundrisse
1 / 1

Virtueller Rundgang

3D tour

Realisiere Dein Projekt

Bausubstanz und Energie

Der Anbieter hat keine Informationen zu Energieverbrauch oder Zustand der Immobilie bereit gestellt.
Immowelt logo

Mietkosten

Nettokaltmiete
650 €
Betriebskosten
168 €
Provision für Mieter
2 BMM zzgl. 20 % USt. bei einer Laufzeit von 3 Jahren
Kaution
keine Angabe

Lage

address-icon
Rum (6063)
Der Anbieter hat die genaue Adresse nicht freigegeben
Die Landeshauptstadt Innsbruck liegt nur wenigen Fahrminuten entfernt, ebenso die Stadt Hall und die umliegenden Dörfer. Auch der Autobahnanschluss Hall-West ist zügig erreichbar.

Bedingt durch die direkte Lage an der hoch frequentierten Bundesstraße / Hallerstraße kann hier werbewirksam Ihr Unternehmen präsentiert werden.

Die Anbindung an den öffentlichen Verkehr ist perfekt: eine Bushaltestelle sowie demnächst auch eine Straßenbahnhaltestelle sowie der neu gestaltete Bahnhof Rum liegen praktisch vor der Türe. Lebensmittelmärkte, Restaurants sowie eine Tankstelle befinden sich in unmittelbarer Umgebung.

Weitere Informationen

Sonstiges Nutzfläche: ca. 197 m², Teilanmietung ab einem Raum möglich!
Miete p.m.: je nach Größe zwischen € 12,- und 15,-/m² netto zzgl. 20 % USt.
Betriebskosten p.m.: € 4,-/m² netto inkl. Heizkosten, inkl. Strom, inkl. Mitnutzung Allgemeinflächen zzgl. 20 % USt.
Kaution: 3 Bruttomonatsmieten
Verfügbarkeit: ab sofort
Energiekennzahl: wird nachgereicht

Hinweis
EISENKIES Immobilien ist beauftragt, die gegenständliche Liegenschaft zu vermieten. Alle Objektangaben wurden nach bestem Wissen und Gewissen gemacht. Da diese jedoch teilweise auf Informationen Dritter beruhen, können wir für die Richtigkeit keine Haftung übernehmen.

Nebenkostenübersicht:
Kosten für die Errichtung des Mietvertrages
Vergebührung beim Finanzamt (= Miete inkl. BK/HK x Laufzeit des MV, davon 1 %)
Vermittlungshonorar in der Höhe von 2 Bruttomonatsmieten zuzügl. 20 % USt. bei einer Laufzeit bis 3 Jahre Stichworte Bundesland: Tirol

Weitere Services

Lust auf eine Besichtigung?
Eine Frage zur Immobilie?
Nachricht hinzufügen
Mit der Nutzung der oben angegebenen Telefonnummer oder durch Klicken auf „Kontaktieren“ akzeptierst Du die Allgemeinen Nutzungsbedingungen, denen Du jederzeit widersprechen kannst. Weitere Informationen zum Datenschutz

Über den Anbieter

Schlöglstraße 55, 6050 HALL IN TIROL
Frau Ingrid Dadam-SchwablDein Kontakt
Online-ID: 2ntlh5m
Referenznummer: Büro - 42 m²
EISENKIES Immobilien und Projektentwicklung GmbH
EISENKIES Immobilien und Projektentwicklung GmbH
Nachricht hinzufügen
Mit der Nutzung der oben angegebenen Telefonnummer oder durch Klicken auf „Kontaktieren“ akzeptierst Du die Allgemeinen Nutzungsbedingungen, denen Du jederzeit widersprechen kannst. Weitere Informationen zum Datenschutz
Wie zufrieden bist du mit dieser Seite (nicht mit der Immobilie selbst)?