Objektbeschreibung Wir vermieten zwei Einzelhandelsflächen 1b Lage, direkt neben dem Parkhaus Schwabentorgarage, ebenerdig in Freiburg Stadtmitte mit ca. 12 m Schaufensterfront zu einer der meist befahrenen Strassen in Freiburg, der Leo-Wohleb-Strasse in dem Bereich, wo die Fahrzeuge wegen der Ampelschaltung an der Kreuzung stehen. Es stehen also ausreichend Flächen für Werbung Ihres Geschäftes zur Verfügung. Die Mindestmietzeit beträgt fünf Jahre - gerne erhalten Sie auf Ihren Wunsch auch längere Laufzeiten.
Raumaufteilung Die Einheit Nr. 129. hat ca. 180 qm Fläche. Beide Einheiten haben getrennte Herren und Damen WC`s - diese hat zusätzlich eine Personaltoilette. Auch steht eine Kaffeeküche zur Verfügung. Drei Stellplätze in der dazugehörigen TG sind derzeit vermietet und kurzfristig kündbar, optional können diese angemietet werden und sind für 110 Euro und einer für 69 Euro dazu anmietbar.
Einheit 129 mit ca. 180 qm Fläche kann einzeln angemietet werden zum Preis von 2.550,- € netto kalt + 19% UST. 484,50 € = 3.034,50 €.
Merkmale
Bezug: sofort
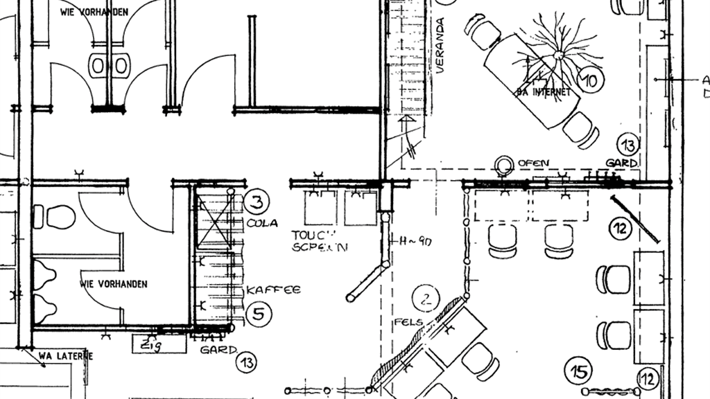
Grundrisse
Verschaffe dir einen genauen Überblick über die Raumaufteilung.
Realisiere Dein Projekt
Bausubstanz und Energie
Energieausweis
Endenergieverbrauch (Wärme)
Endenergieverbrauch (Strom)
Baujahr1978
Mietkosten
Warmmiete
3.300 €
Nettomiete
2.550 €
Nebenkosten
750 €
Heizkosten
in Warmmiete enthalten
Provision für Mieter
provisionsfrei
Kaution
keine Angabe
Lage
Leo-Wohleb-Str. 6, Oberau, Freiburg im Breisgau (79098)
Die Leo-Wohleb-Strasse ist eine der meistbefahrenen Einfallstrassen nach Freiburg. Die Lage wird perfektioniert, da die Fahrzeuge in diesem Bereich praktisch immer an der Ampel anstehen.
Weitere Informationen
Besichtigungstermine
Besichtigungstermine sind auf Anfrage selbstverständlich möglich.