Version: 8.24.0Navigation ĂĽberspringen
Engel & Völkers - Eckernförde Lizenzpartner der Engel & Völkers Residential GmbH
580.000 €
7 Zimmer  â€˘  208 m²  â€˘  997 m² GrundstĂĽck

Mehrfamilienhaus zum Kauf
580000 €
2.788 €/m²
7 Zimmer  â€˘  208 m²  â€˘  997 m² GrundstĂĽck

Das großzügige Mehrfamilienhaus präsentiert sich von seiner effizientesten Seite!

Altbekannt – neu gedacht! Dieses Wohnhaus bietet auf ca. 997m² Grundstück attraktive Perspektiven für Kapitalanleger. Bis zu vier Wohneinheiten sind realisierbar – ideal zur Vermietung, für Mehrgenerationen oder Wohnen & Arbeiten unter einem Dach.

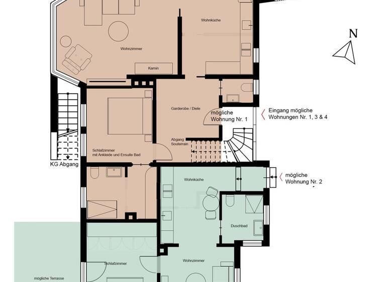
Das 1952 in Massivbauweise errichtete Haus wurde 1993 kernsaniert und um einen großzügigen Anbau erweitert. Es verfügt im Bestand über zwei Wohnungen mit insgesamt 208m² Wohnfläche, sowie einen sehr großzügigen trockenen Keller. Eine Grundbuch Teilung besteht nicht. Die im Exposé dargestellten Grundrisse zeigen mögliche Raumkonzepte, die mit überschaubarem Aufwand umgesetzt werden können.

Wohnung 1 - Über das gemeinschaftliche Treppenhaus erreichbar, bietet diese Einheit ein Schlafzimmer mit Ensuite-Bad und Ankleide, eine geräumige Wohnküche, Wohnzimmer mit Kamin sowie Zugang zu Terrasse und Garten. Zusätzlich steht im Keller ein Gästezimmer mit neuwertigem Duschbad zur Verfügung.

Wohnung 2 - Mit separatem Eingang und geplanter Süd-West-Terrasse lässt sich diese Einheit mit geringem baulichem Aufwand realisieren. Ein Tageslicht-Duschbad ist bereits vorhanden; eine kompakte Küche kann in einem von zwei Räumen eingebaut werden.

Wohnung 3 - Die ausgebaute Dachgeschosswohnung verfĂĽgt ĂĽber ein Schlafzimmer mit Ankleide, Vollbad, KĂĽche, helles Wohnzimmer und eine sonnige Dachterrasse. Lediglich der Belag der Terrasse sollte erneuert werden.

Wohnung 4 - Ob als Loft-Studio mit Dachspitz oder klassisches 2-Zimmer-Apartment – beide Varianten sind möglich. Küche und Badanschlüsse sind vorbereitet. Alternativ kann diese Einheit mit Wohnung 3 verbunden bleiben – ideal zur sofortigen Vermietung nach kleineren Renovierungen.

Das Grundstück bietet mehrere Stellplätze, ein Doppelcarport mit PV-Modulen, eine Garage sowie Gartenbereiche, die sich getrennt nutzen lassen.
Bei einer Aufteilung in 3–4 Einheiten und einer marktüblichen Miete von 11–12?€/m² (für sanierte Wohnungen <70?m²) ist eine Jahresnettokaltmiete von bis zu 30.000€ realistisch. Das entspricht einer Bruttorendite von ca. 5%.

Merkmale

  • 997 m² GrundstĂĽck
  • EinbaukĂĽche
  • Kelleranteil
  • 6 Stellplätze: AuĂźen-Stellplatz
  • Gäste-WC
  • Balkon
  • Garten
  • Terrasse

Grundrisse

Grundrisse
1 / 5

Realisiere Dein Projekt

Bausubstanz und Energie

Energieausweis

D
  • Baujahr1953
  • HeizungsartFuĂźbodenheizung
  • EnergieträgerGas
MediumRectangleTop

Preisdetails

Kaufpreis
580000 €
2.788,46 €/m²
Provision für Käufer
Die Käufercourtage in Höhe von 3,57 % auf den Kaufpreis einschließlich gesetzlicher Umsatzsteuer ist bei notariellem Vertragsabschluss verdient und fällig.
Geschätzte Gesamtkosten
650.006 €1
Kaufpreis
580.000 €
Notarkosten (1,5%)
8.700 €
Grunderwerbsteuer (6,5%)
37.700 €
Provision für Käufer (3,57%)
20.706 €
Grundbucheintrag (0,5%)
2.900 €
1Der angezeigte Wert ist eine automatisch berechnete Schätzung von immowelt.
2Bei den Angaben handelt es sich um ortsübliche Werte. Individuelle Kosten können abweichen.

Lage

address-icon
Eckernförde (24340)
Der Anbieter hat die genaue Adresse nicht freigegeben
Investieren in gefragter Wohnlage!

Die Immobilie befindet sich in einer ruhigen und gewachsenen Wohngegend im beliebten Stadtteil Borby. Die Umgebung zeichnet sich durch eine familienfreundliche, grüne Atmosphäre und eine solide Infrastruktur aus – ideal für Mieter, die ruhiges Wohnen mit urbaner Nähe verbinden möchten.

Einkaufsmöglichkeiten, Schulen, Kitas, Ärzte und Apotheken sind fußläufig oder in wenigen Minuten mit dem Fahrrad erreichbar. Die Eckernförder Innenstadt mit Bahnhof, Altstadt, Wochenmarkt und Ostseestrand liegt nur rund 1,5?km entfernt. Die gute Anbindung an den öffentlichen Nahverkehr sowie die schnelle Erreichbarkeit der B76 machen den Standort auch für Pendler attraktiv.

Die Nähe zur Ostsee, die hohe Lebensqualität der Stadt Eckernförde sowie die kontinuierlich stabile Nachfrage nach Wohnraum machen diese Lage besonders interessant für Kapitalanleger. Mieter schätzen hier besonders die Kombination aus ruhigem Wohnen, guter Erreichbarkeit und maritimem Flair – beste Voraussetzungen für eine nachhaltig gute Vermietbarkeit.

Solide Substanz, flexible Nutzung und eine begehrte Infrastruktur – dieses Haus ist eine überzeugende Investition mit Zukunft. Jetzt Besichtigung vereinbaren und Potenziale entdecken!

Weitere Informationen

Stichworte Sonstiges/Wohnen: Einliegerwohnung

Weitere Services

Lust auf eine Besichtigung?
Eine Frage zur Immobilie?
Nachricht hinzufĂĽgen
Mit der Nutzung der oben angegebenen Telefonnummer oder durch Klicken auf „Kontaktieren“ akzeptierst Du die Allgemeinen Nutzungsbedingungen, denen Du jederzeit widersprechen kannst. Weitere Informationen zum Datenschutz

Ăśber den Anbieter

Rathausmarkt 1, 24340 Eckernförde
Frau Johanna von Veltheim
Frau Johanna von VeltheimDein Kontakt
Online-ID: 2lgxl5f
Referenznummer: W-030E40
Engel & Völkers - Eckernförde Lizenzpartner der Engel & Völkers Residential GmbH
title
Engel & Völkers - Eckernförde Lizenzpartner der Engel & Völkers Residential GmbH
Nachricht hinzufĂĽgen
Mit der Nutzung der oben angegebenen Telefonnummer oder durch Klicken auf „Kontaktieren“ akzeptierst Du die Allgemeinen Nutzungsbedingungen, denen Du jederzeit widersprechen kannst. Weitere Informationen zum Datenschutz
MediumRectangleTop
MediumRectangleBottom
MediumRectangleTop
Wie zufrieden bist du mit dieser Seite (nicht mit der Immobilie selbst)?