Version: 8.25.1Navigation überspringen
J&P Immobilienmakler GmbH
659.000 €
3 Zimmer  •  95,1 m²  •  23. Geschoss

Wohnung zum Kauf
659000 €
6.930 €/m²
3 Zimmer  •  95,1 m²  •  23. Geschoss

Hoch hinaus-Wohnen in luftiger Höhe mit spektakulärem Weitblick

3-Zimmer-Wohnung mit optimalem Grundriss & großzügiger Loggia mit Südblick
Diese moderne 3-Zimmer-Wohnung überzeugt durch einen durchdachten Grundriss, kompletter Ausstattung und einer beeindruckenden Loggia mit Südausrichtung. Die Architektur stammt von den international renommierten und preisgekrönten Architekten Coop Himmelblau und steht für zeitgemäßes Wohnen auf höchstem Niveau.

Raumaufteilung & Ausstattung
Über das einladende Vorzimmer mit integrierter Garderobe gelangt man in den großzügigen Wohnbereich mit offener Küche, ausgestattet mit hochwertigen Siemens-Einbaugeräten. Der Wohnraum besticht durch seine Helligkeit und einem grandiosen Rundumblick.
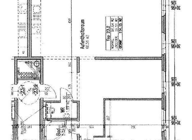
Die direkt angrenzende Loggia mit einer großzügigen Fläche von 19,11 m2 erweitert den Wohnbereich nach außen und lädt zum Entspannen ein.
Rechts vom Eingangsbereich befindet sich ein separates WC. Ein weiteres, derzeit offen gestaltetes Zimmer wird aktuell als Arbeitszimmer genutzt, kann jedoch bei Bedarf leicht in ein zusätzliches Schlafzimmer umgewandelt werden, gegebenenfalls die Wohnung in 4 Zimmer geteilt werden.
Im hinteren Bereich der Wohnung liegen das ruhige Schlafzimmer, ein praktischer Abstellraum sowie das Badezimmer mit Dusche und Badewanne.
Die Wohnung ist mit einer Klimaanlage im Wohn- und Schlafbereich ausgestattet. Zudem sind zahlreiche hochwertige Einbaumöbel inkludiert, darunter Kästen, Schränke, Garderobe, Büroeinbauten sowie eine großzügige Couchlandschaft, Esstisch, Terrassenmöbel und weitere Stauraumlösungen.

Dazu gibt es ein 5 m2 großes Kellerabteil mit Stromanschluß, auch zum Handwerken geeignet.

Weiters werden zwei Kfz Stellplätze in der hauseigenen Tiefgarage angeboten. Der Preis pro Stellplatz beträgt € 25.000.-

Highlights auf einen Blick
- Großzügige Loggia mit Südblick
- Durchdachter Grundriss mit flexibler Raumgestaltung
- Klimaanlage im Wohn- und Schlafbereich
- Hochwertige Möblierung inklusive
- Architektur von Coop Himmelb(l)au
- Ruhige Lage mit hohem Freizeitwert

Lage & Umgebung
Die Wohnung befindet sich am Wienerberg einem modernen, urbanen Wohngebiet mit hervorragender Infrastruktur und beeindruckendem Ausblick über Wien.
In unmittelbarer Nähe liegt das beliebte Naherholungsgebiet Wienerbergteich mit zahlreichen Freizeitmöglichkeiten. Sportbegeisterte profitieren von Golfplatz, Tennisanlagen, Fußballplätzen sowie der nahegelegenen Therme Wien.
Einkaufsmöglichkeiten finden sich direkt vor der Haustüre (Billa Plus, Lidl) sowie in der Passage beim Cineplexx Wienerberg mit Supermarkt, Apotheke, Cafés, Fitnessstudios und Kino.
Die Anbindung an den öffentlichen Verkehr ist ausgezeichnet: Buslinien (7A, 7B, 15A, 63A, 65A) befinden sich in unmittelbarer Nähe, ebenso die U6-Station Philadelphiabrücke. Eine neue U2-Station am Wienerberg ist derzeit im Bau.

Ansprechpartner
Herr Hubert Bodner || +43 699 17 55 66 82|| hb@jpi.at

Wir weisen darauf hin, dass wir mit dem Abgeber in ständiger Geschäftsbeziehung stehen und schon aus diesem Grund ein wirtschaftliches Naheverhältnis vorliegt.

Merkmale

  • Bezug: sofort
  • möbliert
  • 23. Geschoss
  • Personenaufzug
  • Keller
  • Bodenbelag: Kunststoff
  • 2 Stellplätze: 2 Garagen
  • TV-Anschluss

Grundrisse

Grundrisse
1 / 1

Realisiere Dein Projekt

Bausubstanz und Energie

Heizwärmebedarf (HWB)

B

Gesamtenergieeffizienz (fGEE)

C
  • Baujahr2002
  • Zustand der ImmobilieNeubau
  • HeizungsartZentralheizung
  • EnergieträgerFernwärme
MediumRectangleTop

Preisdetails

Kaufpreis
659000 €
6.929,55 €/m²
Provision für Käufer
3 %
Weitere Preisinformationen
2 Garagenstellplätze

Lage

address-icon
Carl-Appel-Strasse 9Wien (1100)

Weitere Informationen

Stichworte Anzahl der Badezimmer: 1, Anzahl der separaten WCs: 1, Wohnungsnr.: 2.23

Weitere Services

Lust auf eine Besichtigung?
Eine Frage zur Immobilie?
Nachricht hinzufügen
Mit der Nutzung der oben angegebenen Telefonnummer oder durch Klicken auf „Kontaktieren“ akzeptierst Du die Allgemeinen Nutzungsbedingungen, denen Du jederzeit widersprechen kannst. Weitere Informationen zum Datenschutz

Über den Anbieter

Lehargasse 7, 1060 WIEN
partner badge
Partnerschaft
Herr Hubert BodnerDein Kontakt
Online-ID: 261TEJCQTIMI
Referenznummer: 101/18683
J&P Immobilienmakler GmbH
J&P Immobilienmakler GmbH
Nachricht hinzufügen
Mit der Nutzung der oben angegebenen Telefonnummer oder durch Klicken auf „Kontaktieren“ akzeptierst Du die Allgemeinen Nutzungsbedingungen, denen Du jederzeit widersprechen kannst. Weitere Informationen zum Datenschutz
MediumRectangleTop
MediumRectangleBottom
MediumRectangleTop
Wie zufrieden bist du mit dieser Seite (nicht mit der Immobilie selbst)?