Version: 8.24.0Navigation ĂĽberspringen
249.000 €
4 Zimmer  â€˘  91 m²  â€˘  frei ab sofort
Immowelt logo

Studio zum Kauf
249000 €
2.736 €/m²
4 Zimmer  â€˘  91 m²  â€˘  frei ab sofort

Wohnung mit Südbalkon zum Verkauf | TI DA 1054

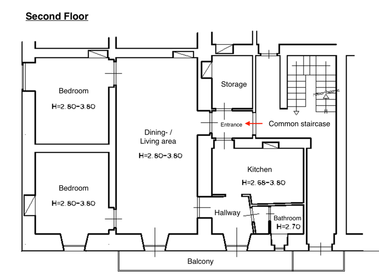
Diese einladende Wohnung befindet sich in der zweiten Etage eines historischen Mehrfamilienhauses aus dem Jahr 1853 und verbindet den authentischen Charakter eines Altbaus mit modernem Wohnkomfort. Auf ca. 91 m² Wohnfläche (123 m² Bruttogrundfläche) erwarten Sie großzügige, lichtdurchflutete Räume mit eindrucksvollen Gewölbedecken von bis zu 3,80 m Höhe.

Der weitläufige, helle Wohnraum mit offenem Kamin bildet das Herzstück der Wohnung und verleiht ihr eine warme und behagliche Atmosphäre. Sowohl vom Wohnzimmer als auch von der Küche besteht Zugang zum rund 8 m² großen, länglichen Südbalkon – ein idealer Ort für entspannte Stunden im Freien.

Die Wohnung verfügt über zwei ansprechende Schlafzimmer, eine separate Küche, ein Badezimmer sowie einen praktischen Abstellraum. Dank der Modernisierung befindet sich die Immobilie in einem sofort bezugsfertigen Zustand. Isolierverglaste Fenster und eine eigene Gaszentralheizung sorgen für zeitgemäßen Wohnkomfort.

Das Gebäude beeindruckt mit einem imposanten, gemeinschaftlich genutzten Treppenhaus, das den historischen Charme des Hauses eindrucksvoll hervorhebt. Die Lage am Rand des historischen Ortszentrums von Dolceacqua bietet eine angenehme Mischung aus Ruhe und guter Erreichbarkeit – die Wohnung ist direkt mit dem Auto anfahrbar, was in diesem malerischen ligurischen Ort eine seltene Besonderheit darstellt.

Dolceacqua zählt zu den schönsten und lebendigsten Dörfern im ligurischen Hinterland. Die mittelalterliche Atmosphäre, kombiniert mit einer ausgezeichneten Infrastruktur – Restaurants, kleine Geschäfte, Banken, eine Grund- und Mittelschule, Poststelle und medizinische Versorgung – macht den Ort ganzjährig äußerst attraktiv. Ein reiches Kulturangebot sowie die umliegenden Weinberge, Olivenhaine und Wanderwege bereichern das Leben vor Ort zusätzlich. Die Küste mit den Badeorten Bordighera und Ventimiglia ist in ca. 15 Autominuten erreichbar, ebenso die französische Grenze. Sanremo liegt etwa 35 Minuten, Monaco rund 45 Minuten entfernt. Der internationale Flughafen Nizza ist in ca. einer Stunde gut erreichbar – ideal für Pendler und internationale Besucher.

Ein attraktives Angebot für alle, die den Charme historischer Architektur und modernen Wohnkomfort schätzen.

Merkmale

  • EinbaukĂĽche
  • Bidet
  • Balkon
  • Bergblick
  • möbliert
  • Badezimmer: Bad mit Dusche, Bad mit Fenster
  • Bodenbelag: Fliesen
  • Fenster: Aluminium

Grundrisse

Grundrisse
1 / 1

Realisiere Dein Projekt

Bausubstanz und Energie

Der Anbieter hat keine Informationen zum Energieverbrauch bereit gestellt.
  • Baujahr1853
  • Zustand der ImmobilieGepflegt
  • HeizungsartZentralheizung
  • EnergieträgerGas
Immowelt logo

Preisdetails

Kaufpreis
249000 €
2.736,26 €/m²
Provision für Käufer
Die Provision, zahlbar vom Käufer, beträgt 3,66% des Kaufpreises inklusive MwSt.

Lage

address-icon
Via Roma 42, Dolceacqua (18035)

Weitere Informationen

Stichworte Versorgung: Städtische Wasserversorgung, Städtische Stromversorgung

Weitere Services

Lust auf eine Besichtigung?
Eine Frage zur Immobilie?
Nachricht hinzufĂĽgen
Mit der Nutzung der oben angegebenen Telefonnummer oder durch Klicken auf „Kontaktieren“ akzeptierst Du die Allgemeinen Nutzungsbedingungen, denen Du jederzeit widersprechen kannst. Weitere Informationen zum Datenschutz

Ăśber den Anbieter

Lindenallee 25, 20259 Hamburg
partner badge
Partnerschaft
Frau Peggy PetersDein Kontakt
Online-ID: 2ms535k
Referenznummer: TI DA 1054
Immobilienpartner TERRA ITALIA  UG (haftungsbeschränkt)
Immobilienpartner TERRA ITALIA UG (haftungsbeschränkt)
Bewertung: 5 von 5 Sternen
Nachricht hinzufĂĽgen
Mit der Nutzung der oben angegebenen Telefonnummer oder durch Klicken auf „Kontaktieren“ akzeptierst Du die Allgemeinen Nutzungsbedingungen, denen Du jederzeit widersprechen kannst. Weitere Informationen zum Datenschutz
Wie zufrieden bist du mit dieser Seite (nicht mit der Immobilie selbst)?