Version: 8.22.5Navigation überspringen
1.141 €
743,9 m² Lagerfläche
Immowelt logo

Halle/Industriefläche zum Kauf
1141,24 Euro pro Quadratmeter
743,9 m² Lagerfläche

Gewerbeobjekt in Schlöglmühl / Gloggnitz - ehemaliges Postverteilerzentrum

Sie suchen eine Gewerbehalle für Ihr Unternehmen? Oder gar einen Standort für Ihren Handels- oder Bürobetrieb? Dann sind Sie bei uns genau richtig. Zum Verkauf gelangt eine Halle in Schlöglmühl mit einer Grundstücksfläche von ca. 3.849,00 m²,  sowie einer Gesamtutzfläche von insgesamt 743,93 m².

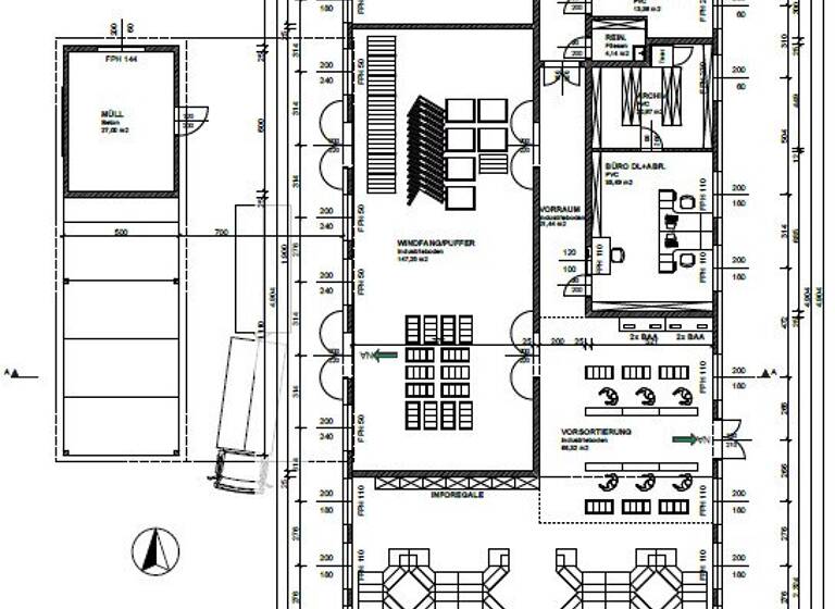
Die Gesamtnutzfläche verteilt sich auf das Hauptgebäude mit Hallenflächen im Ausmaß von ca. 451,42 m² (Zustellerbereich, Vorsortierung und Windfang), sowie dem Bürobereich, bestehend aus Büroräumlichkeiten, Sozialraum, Lagern, Technikraum, Garderoben, Vorraum und WC-Anlagen. Zudem besteht noch ein Nebengebäude, welches derzeit als Lagerraum genutzt wurde im Ausmaß von ca. 27 m². Das Nebengebäude ist mit dem Hauptgebäude über ein Flugdach verbunden. Die Grundstücksfläche liegt lt. Internetauskunft des GIS Niederösterreich im Kerngebiet, ein Teil des Grundstückes (Parkplätze) liegt in der gelben Zone. Die Zufahrt erfolgt über ein grundbücherlich gesichertes Servitut am Grundstück 373 der KG 23140 Schmidsdorf.

Das ehemalige Postverteilerzentrum wurde Ende 2012 fertiggstellt und wurde bis Ende Juni 2024 von der Österreichischen Post AG als Zustellbasis genutzt. Das Objekt wird mittels Gaszentralheizung beheizt. Parkplätze im Außenbereich sind ca. 72 Stk. verfügbar. 2023 wurde eine neue Photovoltaikanlage am Dach der Liegenschaft mit ca. 45 kWp errichtet. Die vorliegende EDV-Verkabelung wird über die Decke bzw. in Kabelkanälen geführt.

 

 

Flächen, Eckdaten und Ausstattungshighlights:

* Kaufpreis: 849.000 € zzgl. USt. (Überrechnung möglich)
* Massiver Gewerbebau (25er Ziegel + 10 cm VWS)
* 3,26 Meter Höhe innen
* Gaszentralheizung mit Fußbodenheizung
* 45 kWp Photovoltaikanlage (dzt. Volleinspeiser)
* elektrische Schiebetüren mit Torluftschleier
* Gesamtnutzfläche 743,93 m²
* 451,42 m² Hallenfläche und Windfang
* 27 m² Nebengebäude
* 72 Autoabstellplätze und gepflastere Außenanlagen
* Hallenflächen, Büros, Aufenthaltsraum, Garderoben, Herren- und Damen-WC, Abstellräume etc.
* Besichtigungen nach Vereinbarung jederzeit

_Sie wollten sich von der Liegenschaft selbst überzeugen? Dann zögern Sie nicht uns für einen unverbindlichen Besichtigungstermin zu kontaktieren! Es besteht auch die Möglichkeit die Liegenschaft um 5.500 EUR netto zzgl. Ust pro Monat zu mieten (inkl. Betriebskosten / Heizung und Strom separat)!_

Wir weisen darauf hin, dass zwischen dem Vermittler und dem zu vermittelnden Dritten ein familiäres oder wirtschaftliches Naheverhältnis besteht.

Der Vermittler ist als Doppelmakler tätig.

Infrastruktur / Entfernungen

Gesundheit
Arzt <2.275m
Apotheke <1.775m
Krankenhaus <9.525m

Kinder & Schulen
Schule <1.775m
Kindergarten <825m

Nahversorgung
Supermarkt <1.700m
Bäckerei <2.250m
Einkaufszentrum <2.250m

Sonstige
Bank <1.825m
Geldautomat <1.825m
Post <1.825m
Polizei <2.175m

Verkehr
Bus <50m
Bahnhof <125m
Autobahnanschluss <2.775m

Angaben Entfernung Luftlinie / Quelle: OpenStreetMap

Merkmale

  • Bezug: sofort
  • 3.879 m² Grundstück
  • Teeküche
  • 72 Stellplätze: 72 Außen-Stellplätze
  • Barrierefrei, Rollstuhlgerecht
  • Raumaufteilung flexibel
  • Bodenbelag: Fliesen, Kunststoff
  • voll erschlossen

Grundrisse

Grundrisse
1 / 6

Realisiere Dein Projekt

Bausubstanz und Energie

Heizwärmebedarf (HWB)

C

Gesamtenergieeffizienz (fGEE)

Der Anbieter hat keine Daten zum Energieausweis hinterlegt.
  • Baujahr2012
  • Zustand der ImmobilieNeubau, Gepflegt
  • HeizungsartZentralheizung: Fußbodenheizung
  • EnergieträgerGas
Immowelt logo

Preisdetails

Kaufpreis
849000 €
1.141,24 €/m²
Provision für Käufer
3% des Kaufpreises zzgl. 20% USt.
Weitere Preisinformationen

zzgl. 20% USt. (Überrechnung möglich), 72 Stellplätze

Lage

address-icon
Schlöglmühl 26Gloggnitz (2640)
Die Liegenschaft liegt in unmittelbarer Nähe zur Höllental Straße B27. Umliegend befinden sich einige Gewerbebetriebe, wie beispeislweise Transportunternehmen, die FCC Neunkirchen und das Wertstoffzentrum Schlöglmühl. Der Bahnhof Schlöglmühl ist nur ca. 200 Meter entfernt. Auf der Liegenschaft sind über 70 Autoabstellplätze verfügbar.

Weitere Informationen

Stichworte Stellplatz vorhanden, Nutzfläche: 743,93 m², Anzahl der separaten WCs: 2, Bundesland: Niederösterreich Sonstiges: EDV-Verkabelung, Kabelkanäle

Weitere Services

Lust auf eine Besichtigung?
Eine Frage zur Immobilie?
Nachricht hinzufügen
Mit der Nutzung der oben angegebenen Telefonnummer oder durch Klicken auf „Kontaktieren“ akzeptierst Du die Allgemeinen Nutzungsbedingungen, denen Du jederzeit widersprechen kannst. Weitere Informationen zum Datenschutz

Über den Anbieter

Schmittstr 17, 8720 Knittelfeld
partner badge
10 Jahre Partnerschaft
MilchbergerDein Kontakt
Online-ID: 2l8lg5e
Referenznummer: OBGC2024030712533459779890aba92
Böchzelt Immobilien Immobilienverwaltung Immobilienmakler GmbH
Böchzelt Immobilien Immobilienverwaltung Immobilienmakler GmbH
Nachricht hinzufügen
Mit der Nutzung der oben angegebenen Telefonnummer oder durch Klicken auf „Kontaktieren“ akzeptierst Du die Allgemeinen Nutzungsbedingungen, denen Du jederzeit widersprechen kannst. Weitere Informationen zum Datenschutz
Wie zufrieden bist du mit dieser Seite (nicht mit der Immobilie selbst)?