Version: 8.25.1Navigation überspringen
134.900 €
2 Zimmer  •  33,9 m²
Immowelt logo

Wohnung zum Kauf
134900 €
3.984 €/m²
2 Zimmer  •  33,9 m²

Freie Citywohnung in Rostocker KTV

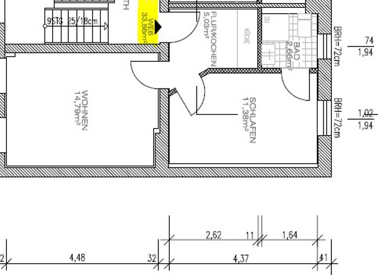
Diese clever geschnittene 2-Zimmer-Wohnung mit 33,86?m² beweist, dass sich auch auf kompakter Fläche eine hohe Wohnqualität erzielen lässt. Dank der durchdachten Raumaufteilung wirkt sie angenehm offen und bietet alles, was man für komfortables Wohnen benötigt.

Das Wohnzimmer bildet den zentralen Wohnbereich. Von hier aus lässt sich Wohnen und Arbeiten ideal kombinieren. Die Küche ist platzsparend in einer Nische im Flur integriert, wodurch der Wohnraum optimal genutzt wird. Das Schlafzimmer liegt ruhig zum Innenhof und bietet einen angenehmen Rückzugsort. Von hier aus blickt man in den gemeinschaftlich nutzbaren Garten, der den Bewohnern eine kleine grüne Auszeit mitten in der Stadt ermöglicht. Das Tageslicht-Bad verfügt über eine Dusche und zeitlose Fliesen.

Das Gebäude aus dem Jahr?1920 erhielt Mitte der 1990er-Jahre eine Strangsanierung. Zusätzlich sind zukunftsorientierte Maßnahmen geplant, darunter die Umstellung der Gasheizung auf Fernwärme sowie ein neuer Fassadenanstrich.

Die Wohnung befindet sich in der Kröpeliner-Tor-Vorstadt (KTV), einer der beliebtesten und lebendigsten Wohnlagen Rostocks. Cafés, Restaurants, Einkaufsmöglichkeiten und die Innenstadt sind bequem erreichbar.

Dank der attraktiven Lage und der kompakten Größe eignet sich die Wohnung ideal für Singles oder Studierende bzw. als Kapitalanlage mit stabiler Vermietbarkeit.

Merkmale

  • Bodenbelag: Fliesen
  • Garten
Dieses Angebot besticht durch folgende Merkmale:

. 33,86 m² Wohnfläche
. 2 separate Zimmer
. Ruhiges Schlafzimmer zum Innenhof
. Gemeinschaftsgarten im Hinterhof
. Kompakte Küchenlösung im Flurbereich
. Badezimmer mit Fenster und Dusche
. Design-PVC Belag in den Wohnräumen
. Fliesen in Bad und Küchenbereich mit Fliesenspiegel
. Baujahr 1920
. Strangsanierung Mitte der 1990er-Jahre
. Geplante Umstellung auf Fernwärme - derzeit im Umbau
. Fassaden- sowie Treppenhausanstrich geplant
. Denkmalschutzgebiet (u.a. Äußeres Erscheinungsbild) - siehe Infoblatt

Grundrisse

Grundrisse
1 / 1

Realisiere Dein Projekt

Bausubstanz und Energie

Energieausweis

E
  • Baujahr1920
  • Zustand der ImmobilieMassivhaus, Gepflegt
  • HeizungsartZentralheizung
  • EnergieträgerGas
Immowelt logo

Preisdetails

Kaufpreis
134900 €
3.984,05 €/m²
Provision für Käufer
2,38 % inkl. MwSt.
Geschätzte Gesamtkosten
148.904 €1
Kaufpreis
134.900 €
Notarkosten (1,5%)
2.024 €
Grunderwerbsteuer (6%)
8.094 €
Provision für Käufer (2,38%)
3.211 €
Grundbucheintrag (0,5%)
675 €
1Der angezeigte Wert ist eine automatisch berechnete Schätzung von immowelt.
2Bei den Angaben handelt es sich um ortsübliche Werte. Individuelle Kosten können abweichen.

Lage

address-icon
Budapester Straße 6Kröpeliner Tor-VorstadtRostock (18057)
Die Budapester?Straße?6 liegt in der Kröpeliner-Tor-Vorstadt und damit in einem der schönsten und lebendigsten Stadtteile Rostocks. Die KTV gilt als urbanes, weltoffenes und alternatives Viertel. Aufgrund des hohen Studentenanteils und der Nähe zur Universität hat sie sich zu einem beliebten Hotspot für eine junge, akademische Bewohnerschaft entwickelt. Die KTV ist geprägt von vielen Spätis, Cafés und verschiedenen Kulturen. Andere zentrale Plätze wie beispielsweise der Doberaner?Platz, die Innenstadt sowie der Stadthafen sind nur wenige Minuten zu Fuß entfernt. Neben dem kulturellen Austausch und der Weltoffenheit profitiert die KTV auch von einer guten Straßen- und Busanbindung. Durch die Nähe zur S-Bahn sind auch Warnemünde und der Hauptbahnhof gut erreichbar.

Weitere Informationen

Sonstiges Alle Angaben haben wir vom Auftraggeber erhalten. Für deren Richtigkeit können wir keine Gewähr übernehmen. Einen Zwischenverkauf behält sich der Auftraggeber/Verkäufer ausdrücklich vor.

Wir bitten um Verständnis, dass wir nur vollständige, schriftliche Anfragen (E-Mail, Fax, Brief) mit Namen, Anschrift und Telefonnummer (tagsüber) beantworten können. Gerne stehen wir Ihnen auch zu einer persönlichen Beratung zur Verfügung.

Unser gesamtes Immobilienangebot sowie Informationen zu unseren günstigen Finanzierungskonditionen finden Sie auf www.ospa.de/immo.

AKTUELLES ANGEBOT:

Bei Erwerb einer Immobilie über das OSPA ImmobilienZentrum sparen Sie bei einer Sparkassen Baufinanzierung die Schätzkosten. Stichworte Anzahl der Badezimmer: 1, Bundesland: Mecklenburg-Vorpommern

Weitere Services

Lust auf eine Besichtigung?
Eine Frage zur Immobilie?
Nachricht hinzufügen
Mit der Nutzung der oben angegebenen Telefonnummer oder durch Klicken auf „Kontaktieren“ akzeptierst Du die Allgemeinen Nutzungsbedingungen, denen Du jederzeit widersprechen kannst. Weitere Informationen zum Datenschutz

Über den Anbieter

Am Vögenteich 23, 18057 Rostock
partner badge
6 Jahre Partnerschaft
Frau Lina SachtlerDein Kontakt
Online-ID: 266PCIX8AUJR
Referenznummer: 260-322 WE 6
OstseeSparkasse Rostock
OstseeSparkasse Rostock
Bewertung: 4,1 von 5 Sternen
Nachricht hinzufügen
Mit der Nutzung der oben angegebenen Telefonnummer oder durch Klicken auf „Kontaktieren“ akzeptierst Du die Allgemeinen Nutzungsbedingungen, denen Du jederzeit widersprechen kannst. Weitere Informationen zum Datenschutz
Wie zufrieden bist du mit dieser Seite (nicht mit der Immobilie selbst)?