Version: 8.25.1Navigation überspringen
22,50 €
607 m² Bürofläche  •  teilbar ab 116 m²
Immowelt logo

Bürofläche zur Miete • provisionsfrei
22,50 €
/m²
607 m² Bürofläche  •  teilbar ab 116 m²

Der Fleethof in bester City-Lage

Das markante Büro- und Geschäftshaus von hoher Qualität und Funktionalität verbindet gehobenes Ambiente mit hanseatischer Architektur an einem hervorragenden Standort. Das fünfgeschossige Gebäude hat eine klar gegliederte Fassade mit lichtdurchfluteten Büroflächen.
Bedarfsgerechte Raumtiefen, Achsmaß und Aufteilungsmöglichkeiten (vom Einzel- bis zum Gruppenbüro) bieten eine effiziente Nutzung. Über zwei repräsentative Entrées gelangt man in ein glasüberdachtes Atrium.

Für drei Mietflächen werden Nachmieter gesucht. Im Erdgeschoss und im 1. Obergeschoss stehen ab ca. Mitte 2027 Flächen zwischen ca. 120 und 220 m² zur Verfügung und im 2. Obergeschoss eine Bürofläche mit rd. 280 m² zu November 2026.

Bei allen Flächen ist eine Änderung in der Raumaufteilung in Absprache mit dem Eigentümer möglich.

Merkmale

  • Bezug: siehe Mietflächenaufstellung
  • voll klimatisiert

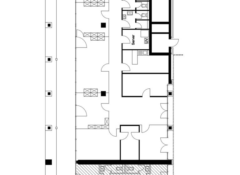
Grundrisse

Grundrisse
1 / 3

Realisiere Dein Projekt

Bausubstanz und Energie

Möchtest du Details zum Energieverbrauch?info_energy_calculation-icon
  • EnergieträgerFernwärme
Immowelt logo

Mietkosten

Monatliche Miete
22,50 €/m²
Provision für Mieter
provisionsfrei; * Die Courtagefreiheit dieser Vermietung setzt einen Mietvertragsabschluss mit einer Mindest-Vertragslaufzeit von 5 Jahren voraus. Weitere Informationen siehe Provisionshinweis.
Kaution
keine Angabe
Weitere Preisinformationen
Nebenkosten pro qm: 5,50 EUR

Lage

address-icon
NeustadtHamburg (20355)
Der Anbieter hat die genaue Adresse nicht freigegeben

Weitere Informationen

Provisionshinweis * Die Courtagefreiheit dieser Vermietung setzt einen Mietvertragsabschluss mit einer Mindest-Vertragslaufzeit von 5 Jahren voraus. Für den Fall der kurzfristigeren Vertragslaufzeit wird dem Mieter eine Courtage in Höhe von 3 Brutto-Monatsmieten zzgl. gesetzl. MwSt. berechnet. Sonstiges * Die Courtagefreiheit dieser Vermietung setzt einen Mietvertragsabschluss mit einer Mindest-Vertragslaufzeit von 5 Jahren voraus. Für den Fall der kurzfristigeren Vertragslaufzeit wird dem Mieter eine Courtage in Höhe von 3 Brutto-Monatsmieten zzgl. gesetzl. MwSt. berechnet. Stichworte Gesamtfläche: 607,00 m², Distanz zur nächsten Einkaufsmöglichkeit: 80.00, Distanz zu U-/S-Bahn: 50.00, Distanz zum Bus: 80.00 Sonstiges: EDV-Verkabelung

Weitere Services

Lust auf eine Besichtigung?
Eine Frage zur Immobilie?
Mit einer persönlichen Nachricht hast du bessere Chancen auf eine Antwort.
Mit der Nutzung der oben angegebenen Telefonnummer oder durch Klicken auf „Kontaktieren“ akzeptierst Du die Allgemeinen Nutzungsbedingungen, denen Du jederzeit widersprechen kannst. Weitere Informationen zum Datenschutz

Über den Anbieter

Bleichenbrücke 9, 20354 Hamburg
partner badge
Partnerschaft
Herr Jan Hansen
Herr Jan HansenDein Kontakt
Online-ID: 26UF71GHNCB2
Referenznummer: GPR 10560
Grossmann & Berger GmbH
title
Grossmann & Berger GmbH
Bewertung: 4,2 von 5 Sternen
Mit einer persönlichen Nachricht hast du bessere Chancen auf eine Antwort.
Mit der Nutzung der oben angegebenen Telefonnummer oder durch Klicken auf „Kontaktieren“ akzeptierst Du die Allgemeinen Nutzungsbedingungen, denen Du jederzeit widersprechen kannst. Weitere Informationen zum Datenschutz
Wie zufrieden bist du mit dieser Seite (nicht mit der Immobilie selbst)?