

Wohnung zum Kauf187426 €3.124 €/m²3 Zimmer • 60 m²
187426 €
3.124 €/m²
3 Zimmer • 60 m²
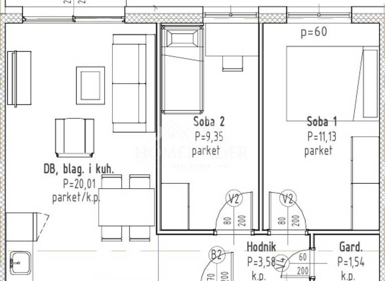
Wohnung 60m2 zum Kauf - Zagrebacka, Velika Gorica
Grundrisse
Grundrisse
1 / 1
Realisiere Dein Projekt
Bausubstanz und Energie
Möchtest du Details zum Energieverbrauch?

Preisdetails
Kaufpreis
187426 €
3.123,77 €/m²
Provision für Käufer
Bitte beachte, das Angebot kann bei Vertragsabschluss die Zahlung einer Provision beinhalten. Weitere Informationen erhältst Du vom Anbieter.
Lage

Gradici, Velika Gorica - Okolica, Velika Gorica
Weitere Informationen
Weitere Services
Lust auf eine Besichtigung?
Eine Frage zur Immobilie?
Über den Anbieter
Online-ID: 26XRCDU3EVAS
Referenznummer: 19558274_2

Crozilla.com
Wie zufrieden bist du mit dieser Seite (nicht mit der Immobilie selbst)?
