PROVISIONSFREI und sofort beziehbar! Helle 3-Zimmer-Wohnung im Zentrum inkl. TG-Stellplatz!
Mitten im Herzen von Müllheim (Werderstraße) erwartet Sie diese lichtdurchflutete Wohnung, die durch ihre Großzügigkeit und den unverbaubaren Weitblick besticht. Da die Wohnung von privat verkauft wird, sparen Sie direkt ca. 11.600 € Maklerprovision!
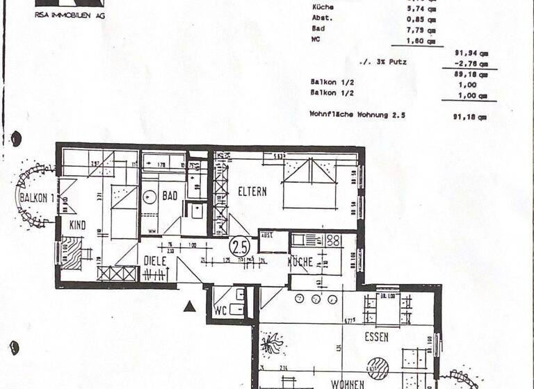
Das Herzstück: 35 m² Wohn-Ess-Erlebnis Schon beim Betreten fällt der Blick in den riesigen, über 35 m² großen Wohn- und Essbereich, der durch die offene Gestaltung und den Zugang zum Balkon eine beeindruckende Weite vermittelt. Die Einbauküche ist bereits im Preis enthalten und verfügt sogar über eine praktische, separate Abstellkammer.
Wohnkomfort auf ca. 92 m²:
- Viel Platz zum Schlafen & Arbeiten: Zwei große Schlafzimmer bieten ideale Stellmöglichkeiten für große Schränke und Betten.
-Zwei Sonnenbalkone: Genießen Sie die Sonne von morgens bis abends auf den beiden Balkonen (Ost- und Westausrichtung) mit direktem Blick auf den Hochblauen.
-Badezimmer-Duo: Ein Badezimmer mit Wanne UND Dusche sowie ein separates Gäste-WC sorgen für stressfreie Abläufe am Morgen.
- Sofort-Einzug: Gepflegte Fliesen- und moderne Laminatböden sowie neue Fenster machen die Wohnung sofort bezugsfertig.
- Ein fest zugeordneter Tiefgaragenstellplatz und ein eigenes Kellerabteil sind im Kaufpreis bereits enthalten. Ein besonderer Pluspunkt für dieses Objekt: Für Bewohner und deren Gäste stehen zudem weitere gemeinschaftliche Außenstellplätze sowie freie Flächen in der öffentlichen Tiefgarage zur Verfügung. So finden auch ein Zweitwagen oder Ihr Besuch jederzeit bequem einen Platz direkt am Haus.
1Der angezeigte Wert ist eine automatisch berechnete Schätzung von immowelt.
2Bei den Angaben handelt es sich um ortsübliche Werte. Individuelle Kosten können abweichen.
Lage
Müllheim (79379)
Der Anbieter hat die genaue Adresse nicht freigegeben
Die Wohnung liegt zentrumsnah und dennoch ruhig. Einkaufsmöglichkeiten, Ärzte, Restaurants, Schulen und der Bahnhof sind bequem zu Fuß erreichbar. Müllheim überzeugt durch seine Lage zwischen Freiburg und Basel sowie der Nähe zum Markgräflerland und Elsass. Infrastruktur (im Umkreis von 5 km): Apotheke, Lebensmittel-Discount, Allgemeinmediziner, Kindergarten, Grundschule, Hauptschule, Realschule, Gymnasium, Gesamtschule, Öffentliche Verkehrsmittel
Weitere Informationen
Sonstiges
Heizungsart: Zentralheizung Energieträger: Gas
ohne-makler (OM) ist weder Anbieter noch Vermittler der Immobilie. OM betreibt eine Plattform für Immobilieneigentümer, die unter anderem die gleichzeitige Veröffentlichung einzelner Inserate auf mehreren Immobilienportalen ermöglicht. Die Inhalte dieser Inserate werden ausschließlich von Dritten verantwortet. Für die Richtigkeit, Vollständigkeit oder Rechtmäßigkeit der Angaben übernimmt OM keine Haftung. Hinweise auf mögliche Rechtsverstöße können jederzeit gemeldet werden und werden nach Prüfung umgehend bearbeitet.
Stichworte
Anzahl der Schlafzimmer: 2, Anzahl der Badezimmer: 2, Anzahl der separaten WCs: 1, Anzahl Balkone: 1, Bundesland: Baden-Württemberg, 1 Etagen