Version: 8.24.0Navigation ĂĽberspringen
14,85 €
1 Zimmer  â€˘  600 m² BĂĽrofläche
Immowelt logo

Bürofläche zur Miete
14,85 €
/m²
1 Zimmer  â€˘  600 m² BĂĽrofläche

CASTELLUM | Großzügige Bürofläche ca. 600 m² im Neubau – Mainzer Straße Saarbrücken

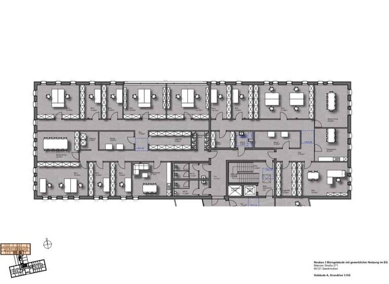
Im Neubauprojekt CASTELLUM in der Mainzer Straße 271 steht im 3. Obergeschoss von Gebäude A eine großzügige und flexibel nutzbare Bürofläche von 610 m² zur Anmietung zur Verfügung. Die Einheit eignet sich ideal für mittelständische Unternehmen, Projektteams oder größere Dienstleistungs- und Verwaltungsnutzungen, die eine moderne Arbeitsumgebung mit repräsentativem Charakter suchen. Dank der klaren und flexiblen Grundrissstruktur lassen sich sowohl Open-Space-Konzepte als auch Kombinationen aus Einzel-, Team- und Besprechungsräumen realisieren. Der Neubau ermöglicht eine individuelle Planung und Umsetzung des Innenausbaus nach Mieterwunsch. Die Fläche ist barrierefrei über Aufzug erreichbar und in das hochwertig gestaltete Gebäudeensemble eingebunden. Die Fertigstellung des Projekts ist für August 2027 vorgesehen.

Merkmale

  • frei ab 01.08.2027
  • 3. Geschoss
  • Personenaufzug
  • AuĂźen-Stellplatz
  • Barrierefrei, Rollstuhlgerecht
  • 120 Monate
  • Bodenbelag: Fliesen, Holzdielen, Parkett, Laminat, Linoleum, Teppich
  • Beleuchtung: Deckenbeleuchtung

Grundrisse

Grundrisse
1 / 1

Realisiere Dein Projekt

Bausubstanz und Energie

Der Anbieter hat keine Informationen zum Energieverbrauch bereit gestellt.
  • Baujahr2027
  • HaustypKfW 40
  • HeizungsartZentralheizung
  • EnergieträgerElektro, Luft-/Wasser-Wärmepumpe
Immowelt logo

Mietkosten

Nettomiete zzgl. Nebenkosten
14,85 €/m²
9.058 €
Provision fĂĽr Mieter
Bitte beachte, das Angebot kann bei Vertragsabschluss die Zahlung einer Provision beinhalten. Weitere Informationen erhältst Du vom Anbieter.
Kaution
3 Kaltmieten

Lage

address-icon
St Johann, Saarbrücken (66121)
Der Anbieter hat die genaue Adresse nicht freigegeben
Das Neubauprojekt CASTELLUM in der Mainzer Straße 271 befindet sich im Saarbrücker Stadtteil St. Johann, östlich der Innenstadt und in unmittelbarer Nähe zur Saar. Die Lage an der stark frequentierten Mainzer Straße bietet eine sehr gute Sichtbarkeit sowie eine hervorragende Verkehrsanbindung. Die Autobahn A620 (Ostspange) ist in wenigen Minuten erreichbar und ermöglicht eine schnelle Anbindung in alle Richtungen. Die Saarbahn-Haltestelle „Römerkastell“ sowie mehrere Bushaltestellen befinden sich in fußläufiger Entfernung. Der Hauptbahnhof Saarbrücken ist mit dem öffentlichen Nahverkehr in ca. 10 Minuten erreichbar. • Sichtlage direkt an der stark frequentierten Mainzer Straße (B40) • ÖPNV: Saarbahn- und Bushaltestellen fußläufig • Autobahn: Ostspange (A620 / A623) ca. 1 km • Bahnhof: Saarbrücken Hbf ca. 3,5 km

Weitere Informationen

Sonstiges • Mietpreis: auf Anfrage, abhängig vom Ausbaustandard • Mietbeginn: ab Juli 2027 • Langfristige Mietverhältnisse gewünscht • Vermietung provisionspflichtig • Alle Angaben basieren auf dem aktuellen Planungsstand und erfolgen ohne Gewähr Heizungsart: Wand-/Deckenheizung Energiequelle: Solarenergie

Weitere Services

Lust auf eine Besichtigung?
Eine Frage zur Immobilie?
Nachricht hinzufĂĽgen
Mit der Nutzung der oben angegebenen Telefonnummer oder durch Klicken auf „Kontaktieren“ akzeptierst Du die Allgemeinen Nutzungsbedingungen, denen Du jederzeit widersprechen kannst. Weitere Informationen zum Datenschutz

Ăśber den Anbieter

Bliesgaustrasse 40, 66440 Blieskastel
partner badge
10 Jahre Partnerschaft
Herr Finn SahnerDein Kontakt
Online-ID: 2neac5h
Referenznummer: 5_5
Schmeer Immobilienentwicklung und -vermarktung GmbH
Schmeer Immobilienentwicklung und -vermarktung GmbH
Bewertung: 4 von 5 Sternen
Nachricht hinzufĂĽgen
Mit der Nutzung der oben angegebenen Telefonnummer oder durch Klicken auf „Kontaktieren“ akzeptierst Du die Allgemeinen Nutzungsbedingungen, denen Du jederzeit widersprechen kannst. Weitere Informationen zum Datenschutz
Wie zufrieden bist du mit dieser Seite (nicht mit der Immobilie selbst)?