Version: 8.25.1Navigation überspringen
Mietkosten auf Anfrage
171,7 m² Bürofläche
Immowelt logo

Büro zur Miete
Mietkosten auf Anfrage
171,7 m² Bürofläche

Flexible Bürofläche mit kleinem Lager in KA-Nordost

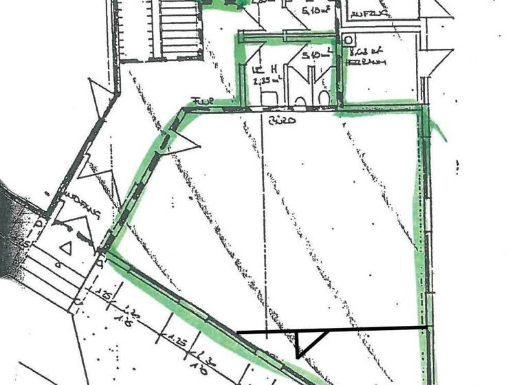
Die zur Anmietung stehende Fläche hat eine Gesamtgröße von ca. 172 m² und befindet sich im Erdgeschoss eines Bürohauses.

Die Gesamtfläche teilt sich sowohl in ca. 111 m² Bürofläche, als auch in ca. 61 m² separate Lagerfläche auf.

Das Lager ist über ein Falttor ebenerdig andien- und befahrbar.

Aktuell ist die Bürofläche mittels Trennwänden unterteilt.
Eine Raumaufteilung kann nach den Wünschen des künftigen Mieters flexibel erfolgen.

An allen Fenstern sind Außenjalousien angebracht.
Als Bodenbelag ist aktuell ein Teppichboden verlegt, welcher in Abstimmung mit dem künftigen Mieter ersetzt werden kann.

Sanitärflächen sind ebenfalls vorhanden.

PKW-Stellplätze stehen ausreichend auf dem Areal zur Anmietung zur Verfügung.

Merkmale

  • Bezug: sofort

Grundrisse

Grundrisse
1 / 1

Realisiere Dein Projekt

Bausubstanz und Energie

Möchtest du Details zum Energieverbrauch?info_energy_calculation-icon
  • HeizungsartZentralheizung
  • EnergieträgerGas
Immowelt logo

Mietkosten

Miete auf Anfrage
Provision für Mieter
3,57 Monatskaltmieten zzgl. gesetzl. MwSt.
Kaution
keine Angabe

Lage

address-icon
HagsfeldKarlsruhe (76139)
Der Anbieter hat die genaue Adresse nicht freigegeben
Das Gewerbeobjekt befindet sich im Industriegebiet Nordost, nahe der Bundesautobahn 5, bzw. der BAB-Anschlußstelle "KA-Nord". Im Umfeld sind internationale Unternehmen, Baumärkte und Handelsunternehmen angesiedelt.
Pkw-Stellplätze stehen im Hof zur Anmietung zur Verfügung. Öffentliche Stellplätze finden sich entlang der Printzstraße/Junkersstraße.
Bushaltestellen (Linie 32 und 31) sind nur wenige Meter entfernt.

Weitere Informationen

Sonstiges Ein Energieausweis befindet sich beim Eigentümer in Arbeit.

Alle Beträge sind Nettobeträge und verstehen sich zzgl. der gesetzl. MwSt. Energiepass Energieausweis wird bei Besichtigung vorgelegt. Stichworte Gesamtfläche: 171,73 m²

Weitere Services

Lust auf eine Besichtigung?
Eine Frage zur Immobilie?
Mit einer persönlichen Nachricht hast du bessere Chancen auf eine Antwort.
Mit der Nutzung der oben angegebenen Telefonnummer oder durch Klicken auf „Kontaktieren“ akzeptierst Du die Allgemeinen Nutzungsbedingungen, denen Du jederzeit widersprechen kannst. Weitere Informationen zum Datenschutz

Über den Anbieter

An der Tagweide 2, 76139 Karlsruhe
Herr Arno StreckerDein Kontakt
Online-ID: 25RC8BEAHYAK
Referenznummer: 2025156 - Kl. Büro + kl. Lager
STRECKER-OLENYI Industrie- & Gewerbeimmobilien
STRECKER-OLENYI Industrie- & Gewerbeimmobilien
Mit einer persönlichen Nachricht hast du bessere Chancen auf eine Antwort.
Mit der Nutzung der oben angegebenen Telefonnummer oder durch Klicken auf „Kontaktieren“ akzeptierst Du die Allgemeinen Nutzungsbedingungen, denen Du jederzeit widersprechen kannst. Weitere Informationen zum Datenschutz
Wie zufrieden bist du mit dieser Seite (nicht mit der Immobilie selbst)?