

Finest Properties Hamburg Alster GmbH
Herr Florian Grein
+49 ···
Nr. anzeigenPreise & Kosten
Provision für Käufer
3,57% inkl. MwSt.
Lage
Das Einfamilienhaus liegt in einer beliebten Wohnlage Hamburgs, die Urbanität und Familienfreundlichkeit auf ideale Weise verbindet. Die gewachsene Nachbarschaft ist geprägt von ansprechenden Einfamilienhäusern, gepflegten Gärten und einer entspannten Atmosphäre.
Dank der zentralen Lage erreichen Sie die Hamburger...
Das Haus
Kategorie
Einfamilienhaus
Baujahr
1934
Energie & Heizung
Warum sehe ich diese Anzeige? – Du siehst diese Anzeige basierend auf Ihrer Navigation auf unserer Website und den Suchkriterien, die du verwendet hast.
Energieausweistyp
Bedarfsausweis
Gebäudetyp
Wohngebäude
Wesentliche Energieträger
Gas
Gültigkeit
28.04.2025 bis 27.04.2035
Effizienzklasse
H
Endenergiebedarf
320,80 kWh/(m²·a)
Weitere Energiedaten
Energieträger
Gas
Heizungsart
Zentralheizung
Details
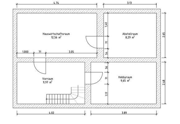
Objektbeschreibung
In familienfreundlicher Wohnlage in Hamburg-Langenhorn befindet sich dieses Einfamilienhaus aus dem Jahr 1934.
Auf einem großzügigen Grundstück von ca. 476?m² bietet die Immobilie eine Wohnfläche von ca. 100?m² und überzeugt durch eine gelungene Raumaufteilung, einen praktischen Wintergarten-Anbau sowie einen...
Ausstattung
Die Ausstattungsdetails der Immobilie auf einen Blick:
- Tageslichtbadezimmer
- separates Gäste-WC
- moderne Küche
- großzügiger Garten
- Garagenanbau
Das Einfamilienhaus bietet Ihnen neben der Möglichkeit der Eigennutzung ebenfalls das Potenzial die Immobilie neu zu entwickeln und / oder als...
Preisinformation
1 Garagenstellplatz
Weitere Informationen
Stichworte
Garage vorhanden, Anzahl der Schlafzimmer: 2, Anzahl der Badezimmer: 1, Anzahl Balkone: 1, Anzahl Terrassen: 1, Bundesland: Hamburg, 2 Etagen, Distanz zur Autobahn: 0.0
Anbieter der Immobilie
Finest Properties Hamburg Alster GmbH
Mittelweg 19, 20148 Hamburg

Online-ID: 2k3fn5e
Referenznummer: Kensington_KHHA_658
Finde Angebote wie dieses
Hier geht es zu unserem Impressum, den Allgemeinen Geschäftsbedingungen, den Hinweisen zum Datenschutz und nutzungsbasierter Online-Werbung.