Version: 8.25.1Navigation überspringen
Mietkosten auf Anfrage
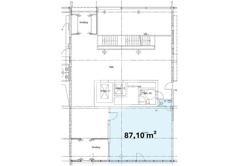
87,1 m² Verkaufsfläche
Immowelt logo

Ladenfläche zur Miete • provisionsfrei
Mietkosten auf Anfrage
87,1 m² Verkaufsfläche

Vakante Büro/ Praxisfläche im Haus der Gesundheit

Das Haus der Gesundheit in Stuttgart-Feuerbach bietet moderne Flächen für den Einzelhandel in einem ansprechenden, repräsentativen Gebäude. Die Räumlichkeiten überzeugen durch lichtdurchflutete, einladende Räume mit großen Fenstern und flexiblen Gestaltungsmöglichkeiten, ideal für verschiedene Handelskonzepte. Alle Flächen sind barrierefrei zugänglich und verfügen über eine hochwertige technische Ausstattung.

Merkmale

  • Bezug: Ab sofort
  • Erdgeschoss
  • Teeküche
  • Bad mit Dusche
  • Bodenbelag: Fliesen
  • Beleuchtung: Deckenbeleuchtung
  • voll klimatisiert
Standardausstattung, Bad mit Dusche, Grundriss flexibel, Fliesenboden, Deckenbeleuchtung, EDV-Verkabelung, Teeküche, Starkstrom, getr. Damen- u. Herren WCs, voll klimatisiert, Außenstellplätze, Nach Vereinbarung, Cat-7

Grundrisse

Grundrisse
1 / 1

Realisiere Dein Projekt

Bausubstanz und Energie

Möchtest du Details zum Energieverbrauch?info_energy_calculation-icon
  • Baujahr2003
  • Zustand der ImmobilieGepflegt
Immowelt logo

Mietkosten

Nettomiete zzgl. Nebenkosten
nicht angegeben
Nebenkosten
4 €
Zusätzliche Kosten
Heizkosten
Provision für Mieter
provisionsfrei
Kaution
3 Bruttowarmmieten

Lage

address-icon
FeuerbachStuttgart, Feuerbach (70469)
Der Anbieter hat die genaue Adresse nicht freigegeben
Die Stuttgarter Straße liegt im Stadtteil Feuerbach und ist somit nur wenige Kilometer vom Stadtzentrum entfernt. Sie bietet eine optimale Anbindung an die Bundesstraßen B10, B27 sowie die B295 und die Autobahn A81, die sich in unmittelbarer Nähe befinden. Dadurch ist Feuerbach hervorragend vernetzt. Zusätzlich sind der Flughafen und das Messegelände bequem erreichbar. Durch die zentrale Lage in Feuerbach profitieren Mieter von einer guten Anbindung an öffentliche Verkehrsmittel sowie Parkmöglichkeiten vor Ort, was den Standort sowohl für Mitarbeiter als auch für Patienten attraktiv macht..

Weitere Informationen

Sonstiges Noch nicht das Richtige? Wir führen weitere Objekte im Großraum Stuttgart. Sprechen Sie mit unseren Beratern. Gemeinsam finden wir Ihr Wunschobjekt! Wir freuen uns auf Ihre Kontaktaufnahme!

Am 01. Mai 2014 ist die EnEV 2014 in Kraft getreten. Nach den §§ 16, 16 a EnEV ist der Eigentümer, Verkäufer, Vermieter, Verpächter und Leasinggeber bei der Vermarktung von Immobilien verpflichtet, den Energieausweis der Immobilie gemäß der gesetzlichen Vorgabe bei Besichtigungen auszuhändigen bzw. auszuhängen und bestimmte energetische Kennwerte aus dem Energieausweis in die Immobilieninserate und Exposés aufzunehmen. Dieser Nachweis wurde von uns bereits bei den Eigentümern angefordert und kann von Ihnen beim Besichtigungstermin eingesehen werden. Stichworte Sonstiges: EDV-Verkabelung, Getrennte Damen- und Herren-WCs

Weitere Services

Lust auf eine Besichtigung?
Eine Frage zur Immobilie?
Mit einer persönlichen Nachricht hast du bessere Chancen auf eine Antwort.
Mit der Nutzung der oben angegebenen Telefonnummer oder durch Klicken auf „Kontaktieren“ akzeptierst Du die Allgemeinen Nutzungsbedingungen, denen Du jederzeit widersprechen kannst. Weitere Informationen zum Datenschutz

Über den Anbieter

Uhlandstraße 14, 70182 Stuttgart
Herr Theoharis TagalidisDein Kontakt
Online-ID: 24MSR81FPK6H
Referenznummer: IRx1551/G1/E1/Eh3
Immoraum GmbH
Mit einer persönlichen Nachricht hast du bessere Chancen auf eine Antwort.
Mit der Nutzung der oben angegebenen Telefonnummer oder durch Klicken auf „Kontaktieren“ akzeptierst Du die Allgemeinen Nutzungsbedingungen, denen Du jederzeit widersprechen kannst. Weitere Informationen zum Datenschutz
Wie zufrieden bist du mit dieser Seite (nicht mit der Immobilie selbst)?