Version: 8.22.5Navigation ĂĽberspringen
15,50 €
1.086,2 m² Bürofläche
Immowelt logo

Bürofläche zur Miete - Erstbezug
15,50 Euro pro Quadratmeter
1.086,2 m² Bürofläche

HAFENPORTAL - Erstbezug-BĂĽros in zukunftsweisender Projektentwicklung

Kurzbeschreibung Ihr neuer Business Standort im Linzer Hafenareal - an diesem zukunftsweisenden und nachhaltig geplanten Standort im Linzer Hafen finden diverse Unternehmen ihr High-Quality Büro- und Geschäftsobjekt. Objekt Ihr neuer Business Standort im Linzer Hafenareal - an diesem zukunftsweisenden und nachhaltig geplanten Standort im Linzer Hafen finden diverse Unternehmen ihr High-Quality Büro- und Geschäftsobjekt.

In den drei miteinander verbundenen Bauteilen stehen Flächen ab ca. 220 m² zur Anmietung zur Verfügung. Neben der hochwertigen Business-Ausstattung der Einheiten erwartet den zukünftigen Mieter öffentlicher Gastronomiebereich im Erdgeschoß. Der flexible Grundriss der Büroflächen ermöglicht die Ansiedlung jeder gewünschten Bürogröße - vom Großraumbüro bis zur kleinen Start-up Einheit.

Als zentrales Bindeglied zwischen Hafenturm und Speziallagerhalle bildet das Hafenportal ein Kernelement von "Projekt Neuland". Der öffentliche Verkehr ist direkt integriert in Form einer wettergeschützten Endhaltestelle.

Sichern Sie sich jetzt den zukĂĽnftigen Standort fĂĽr Ihr aufstrebendes Unternehmen!

HIGHLIGHTS:

- Mitsprache hinsichtlich Gestaltungsmöglichkeiten im Innenausbau
- moderne Architektur & Grundrisse
- niedrige Betriebskosten - umweltfreundlich
- Klimazertifizierung ÖGNI Gold, Klimaaktiv Silber, ESG- und EU-Taxonomie-Konformität
- direkte Anbindung an die Autobahn A1 und A7
- bereits fertiggestellt
- beste Nachbarschaft - ca. 2/3 an ein weltweit bekanntes Technologieunternehmen vermietet

VERFÜGBARE BÜROFLÄCHEN:
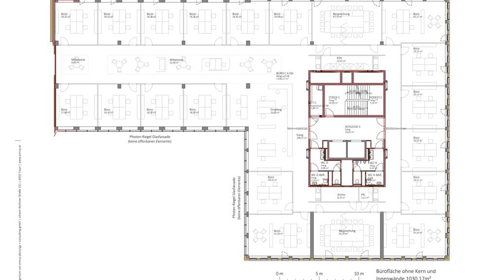
BAUTEIL C

4. OG gesamt ca. 1.085 m² (teilbar ab ca. 362 m²)
Nettomiete/m²/Monat: ab € 15,50

5. OG gesamt ca. 1.089 m² (teilbar ab ca. 363 m²)
Nettomiete/m²/Monat: ab € 16,50

6. OG gesamt ca. 1.089 m² (teilbar ab ca. 363 m²)
Nettomiete/m²/Monat: ab € 17,50


VERFÜGBARE GESCHÄFTSFLÄCHEN:

EG Shop B gesamt ca. 218 m²
Nettomiete/m²/Monat: € 20,00


TIEFGARAGENPLÄTZE:
- gesamt ca. 257 - verfĂĽgbar ca. 52
- pro 100 m² kann ein Tiefgaragenplatz angemietet werden
- €125,00 / Stellplatz netto/Monat + €25,00 BK netto/Monat

Merkmale

  • Bezug: nach Vereinbarung
  • 4. Geschoss
  • Personenaufzug
Klimaanlage und zentrales Heizsystem
Moderne Beleuchtungskonzepte
Hochwertiger Bodenbelag
GroĂźe Glasfronten fĂĽr natĂĽrliche Belichtung
Separat zugängliche WC-Einheiten

Realisiere Dein Projekt

Bausubstanz und Energie

Heizwärmebedarf (HWB)

B

Gesamtenergieeffizienz (fGEE)

A
  • Baujahr2023
  • Zustand der ImmobilieErstbezug
  • HeizungsartZentralheizung
  • EnergieträgerFernwärme
Immowelt logo

Mietkosten

Gesamtmiete
24.151,64 €
Nettokaltmiete
15,50 €/m²
16.835,33 €
Betriebskosten
2.487,28 €
Heizkosten
803,75 €
Umsatzsteuer
4.025,28 €
Provision fĂĽr Mieter
3 BMM zzgl. USt. inkl. MwSt.
Kaution
3 - 6 BMM zzgl. Ust.
Weitere Preisinformationen
Nettokaltmiete: 16.835,33 EUR

Lage

address-icon
Lustenau, Linz (4020)
Der Anbieter hat die genaue Adresse nicht freigegeben
Zentrale Lage im Neustadtviertel
Unmittelbare Nähe zum Hauptbahnhof Linz
Optimale Anbindung an öffentliche Verkehrsmittel
Schneller Zugang zu Autobahnen und HauptverkehrsstraĂźen

Weitere Informationen

Sonstiges Wir sind eine Tochtergesellschaft der ÖRAG-Österreichische Realitäten AG, Wien, genannt ÖRAG, und es besteht daher unter Umständen ein sonstiges wirtschaftliches Naheverhältnis im Sinne des Maklergesetzes zur ÖRAG und ihren anderen Tochtergesellschaften in Österreich. Das Naheverhältnis zur ÖRAG ergibt sich zB aus der Tatsache, dass die ÖRAG das Objekt für den Eigentümer verwaltet. Es kann aber auch ein wirtschaftliches Naheverhältnis im Sinne des Maklergesetzes zum Auftraggeber, also dem bzw. den Eigentümern bestehen, wenn wir laufend bzw. regelmäßig für diesen Auftraggeber als Makler tätig werden. Sollten Sie diesbezüglich Fragen haben oder eine weitere Aufklärung wünschen, wenden Sie sich bitte direkt an unseren Mitarbeiter.
Die ÖRAG Immobilien Vermittlung GmbH wird als Doppelmakler tätig.
Weitere Immobilien finden Sie auf unserer Website www.oerag.at. Stichworte Bundesland: Oberösterreich, Distanz zur Grundschule: 0.65, Distanz zur Realschule: 2.34, Distanz zum Gymnasium: 1.42, Distanz zur nächsten Gaststätte: 0.08, Distanz zur Hauptschule: 1.49

Weitere Services

Lust auf eine Besichtigung?
Eine Frage zur Immobilie?
Nachricht hinzufĂĽgen
Mit der Nutzung der oben angegebenen Telefonnummer oder durch Klicken auf „Kontaktieren“ akzeptierst Du die Allgemeinen Nutzungsbedingungen, denen Du jederzeit widersprechen kannst. Weitere Informationen zum Datenschutz

Ăśber den Anbieter

Franz-Josef-StraĂźe 15, 5020 SALZBURG
Herr Rainer KutscheraDein Kontakt
Online-ID: 2enhu5x
Referenznummer: 10900051
Ă–rag Immobilien West GmbH
Ă–rag Immobilien West GmbH
Bewertung: 5 von 5 Sternen
Nachricht hinzufĂĽgen
Mit der Nutzung der oben angegebenen Telefonnummer oder durch Klicken auf „Kontaktieren“ akzeptierst Du die Allgemeinen Nutzungsbedingungen, denen Du jederzeit widersprechen kannst. Weitere Informationen zum Datenschutz
Wie zufrieden bist du mit dieser Seite (nicht mit der Immobilie selbst)?