
EHL Immobilien GmbH
Frau Ingrid Neugebauer
+43 ···
Nr. anzeigenPreise & Kosten
Provision für Käufer
Provisionsfrei für den Käufer!
Lage
Das ist die Lebensqualität im Wilhelminen-Cottage! Mit der öffentlichen Anbindung 45A, 46B zur U3 ist die Innenstadt in 15 min. erreichbar. Eine perfekte Nahversorgung mit kurzen Verbindungswegen zur lokalen Einkaufsmöglichkeiten, vielfältiges Gastronomie-Angebot von Wiener Klassiker über die traditionellen Heurigen bis zu...
Die Wohnung
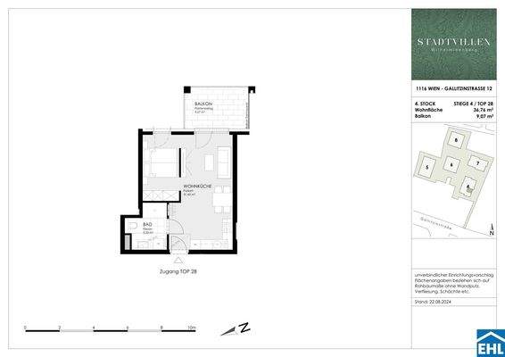
Wohnungslage
4. Geschoss
Bezug
Winter 2026
Wohnanlage
Energie & Heizung
Warum sehe ich diese Anzeige? – Du siehst diese Anzeige basierend auf Ihrer Navigation auf unserer Website und den Suchkriterien, die du verwendet hast.
Heizwärmebedarf (HWB)
19,70 kWh/(m²·a)
Gesamtenergieeffizienz (fGEE)
0,66
Weitere Energiedaten
Heizungsart
Luft-/Wasser-Wärmepumpe
Details
Objektbeschreibung
Stadtvillen im Wilhelminencottage!
Diese exklusiven Stadtvillen bieten Ihnen nicht nur stilvolle Wohnungen, sondern auch die seltene Gelegenheit, ein hochwertiges Zuhause in einer grünen, dennoch zentralen Lage zu finden. Am Fuße des begehrten Wilhelminenbergs gelegen, verbindet das Wilhelminen Cottage urbanen...
Weitere Informationen
Stichworte
Ost-Balkon/Terrasse, Fahrradraum, Anzahl der Badezimmer: 1, Anzahl der separaten WCs: 1, Anzahl Balkone: 1, Balkon-Terrassen-Fläche: 9,07 m², Bundesland: Wien, 6 Etagen, Wohnungsnr.: 28
Dokumente
Anbieter der Immobilie
EHL Immobilien GmbH
Prinz-Eugen-Straße 8-10, 1040 WIEN
Online-ID: 2leyy5f
Referenznummer: OBGC20240504213940825685e7fced2
Finde Angebote wie dieses
Günstige Immobilienfinanzierung einfach online berechnen
Persönliches Angebot berechnenWarum sehe ich diese Werbung? – Du siehst diese Werbung basierend auf Deiner Navigation auf unserer Website und der von Dir verwendeten Suchkriterien.
Diese Werbung wird bezahlt von durchblicker
Werbung melden
Hier geht es zu unserem Impressum, den Allgemeinen Geschäftsbedingungen, den Hinweisen zum Datenschutz und nutzungsbasierter Online-Werbung.