

Wohnung zur Miete - Erstbezug774.95 €Nettokaltmiete2 Zimmer • 42,2 m² • 1. Geschoss • frei ab 01.07.2026
774.95 €
Nettokaltmiete
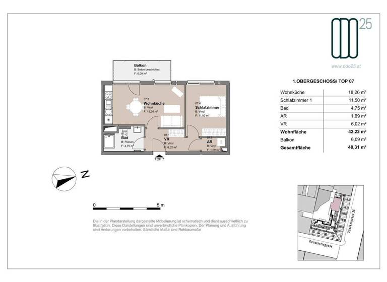
2 Zimmer • 42,2 m² • 1. Geschoss • frei ab 01.07.2026
ODO25 | 2 Zimmer | Balkon | praktische Raumaufteilung | Mietbeginn 01.07.2026
Merkmale
- frei ab 01.07.2026
- 1. Geschoss
- Einbauküche
- Personenaufzug
- 19 Stellplätze: 19 Tiefgaragenstellplätze
- Balkon
- Bad mit Dusche
- voll klimatisiert
Grundrisse
Grundrisse
1 / 1
Virtueller Rundgang
Realisiere Dein Projekt
Bausubstanz und Energie
Heizwärmebedarf (HWB)
B
Gesamtenergieeffizienz (fGEE)
A+
- Baujahr2026
- Zustand der ImmobilieErstbezug
- EnergieträgerErdwärme
Mietkosten
Gesamtmiete
949,98 €
Nettokaltmiete
20,19 €/m²
774,95 €
Betriebskosten
88,66 €
Umsatzsteuer
86,37 €
Nicht in Gesamtmiete enthalten
Miete pro Stellplatz
110 €
Kaution
2850 €
Weitere Preisinformationen
19 Tiefgaragenstellplätze, Miete je: 110,00 EUR
Nettokaltmiete: 774,95 EUR
Nettokaltmiete: 774,95 EUR
Lage

Odoakergasse 25, Wien (1160)
Weitere Informationen
Weitere Services
Lust auf eine Besichtigung?
Eine Frage zur Immobilie?
Über den Anbieter
OPTIN Immobilien GmbHMaklerbüro
Goldschmiedgasse 2, 1010 Wien
6 Jahre Partnerschaft
Herr David BreitwieserDein Kontakt
Online-ID: 2nvbp56
Referenznummer: 2025-25-7-1
OPTIN Immobilien GmbH
Bewertung: 3,8 von 5 Sternen
Wie zufrieden bist du mit dieser Seite (nicht mit der Immobilie selbst)?

