

Haus zum Kauf460000 €3.710 €/m²4 Zimmer • 124 m²
460000 €
3.710 €/m²
4 Zimmer • 124 m²
Reihenhäuser in der Nähe des Golfplatzes in Mijas Malaga
Merkmale
- Bezug: Spain Homes
- Waschraum
- voll klimatisiert
- Swimmingpool
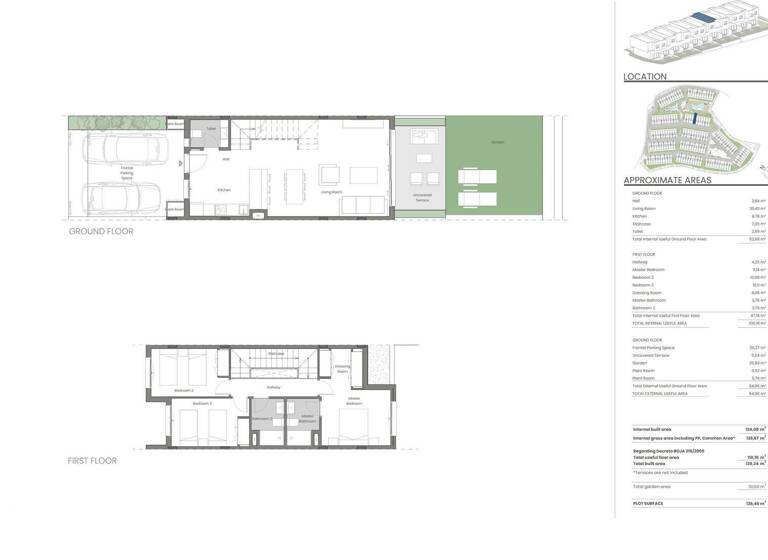
Grundrisse
Grundrisse
1 / 1
Realisiere Dein Projekt
Bausubstanz und Energie
Der Anbieter hat keine Informationen zum Energieverbrauch bereit gestellt.
- Baujahr2028
Preisdetails
Kaufpreis
460000 €
3.709,68 €/m²
Provision für Käufer
Bitte beachte, das Angebot kann bei Vertragsabschluss die Zahlung einer Provision beinhalten. Weitere Informationen erhältst Du vom Anbieter.
Lage

Málaga (29649)
Der Anbieter hat die genaue Adresse nicht freigegeben
Weitere Informationen
Weitere Services
Lust auf eine Besichtigung?
Eine Frage zur Immobilie?
Über den Anbieter
Spain HomesMaklerbüro
C/El Montículo 8, Benalmádena, 29631 MÁLAGA
Partnerschaft

Herr Santiago de Cordoba EstepaDein Kontakt
Online-ID: 2jqsw5m
Referenznummer: AGP-0936-3-Townhouse


Spain Homes
Wie zufrieden bist du mit dieser Seite (nicht mit der Immobilie selbst)?

