Version: 8.24.0Navigation ĂĽberspringen
8.000 €
7 Zimmer  â€˘  444 m²
Immowelt logo

Haus zur Miete
8.000 €
7 Zimmer  â€˘  444 m²

Haus 444m2 zur Miete - Gornji grad - Medvescak, Nova Ves - Gupceva zvijezda

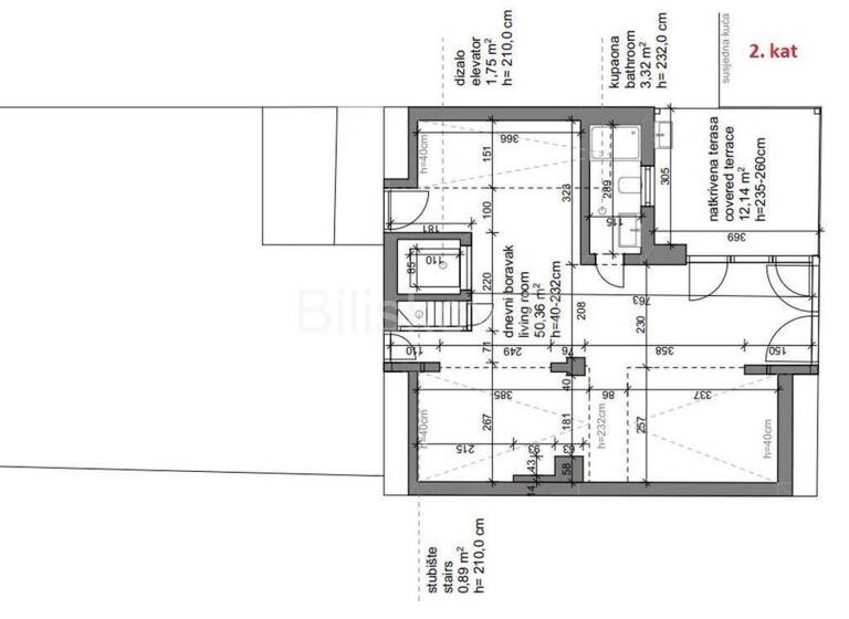
www.biliskov.com ID 14670Gornji Grad, JurjevskaKomplett renoviertes Familienhaus mit einer Fläche von 444 m auf einem Grundstück von 967 m. Das Haus befindet sich in einer sehr schönen Lage, in unmittelbarer Nähe des Stadtzentrums und dennoch von Grün umgeben.Das Haus hat zwei separate Eingänge und kann als zwei separate Einheiten funktionieren. Die erste Etage ist miteinander verbunden.Der erste Teil des Hauses umfasst ein Erdgeschoss und ein Obergeschoss, bestehend aus einem Eingangsflur, einem WC, einem Wohnzimmer mit Kamin, einer Küche und einem Arbeitszimmer; im Obergeschoss befinden sich drei Schlafzimmer, jedes mit eigenem Badezimmer.Der zweite Teil des Hauses besteht aus einem Untergeschoss mit einem Heizraum, einem Badezimmer, einem technischen Raum für Geräte und einem Aufzug, der alle vier Etagen des zweiten Hauses verbindet.Im Erdgeschoss gibt es ein Wohnzimmer, ein WC, einen Flur und eine überdachte Terrasse; im Obergeschoss befinden sich drei Schlafzimmer, zwei Badezimmer und Garderoben; im obersten Stockwerk gibt es ein großes Wohnzimmer, ein Badezimmer und eine überdachte Terrasse mit einem schönen Blick auf Tuskanac und Dubravkin put.Das Haus wurde 2012 komplett renoviert.Fenster: AluminiumHeizung: Etagenheizung GasPreis:8.000 Miete beinhaltet alle Kosten.Agenturgebühr: Eine monatliche Miete + MwSt

Grundrisse

Grundrisse
1 / 4

Realisiere Dein Projekt

Bausubstanz und Energie

Der Anbieter hat keine Informationen zum Energieverbrauch bereit gestellt.
  • Baujahr1975
Immowelt logo

Mietkosten

Kaltmiete
18,02 €/m²
8.000 €
Provision fĂĽr Mieter
Bitte beachte, das Angebot kann bei Vertragsabschluss die Zahlung einer Provision beinhalten. Weitere Informationen erhältst Du vom Anbieter.
Kaution
keine Angabe

Lage

address-icon
Nova Ves - Gupceva zvijezda
Der Anbieter hat die genaue Adresse nicht freigegeben

Weitere Informationen

Stichworte Anzahl der Badezimmer: 4, 1 Etagen

Weitere Services

Lust auf eine Besichtigung?
Eine Frage zur Immobilie?
Nachricht hinzufĂĽgen
Mit der Nutzung der oben angegebenen Telefonnummer oder durch Klicken auf „Kontaktieren“ akzeptierst Du die Allgemeinen Nutzungsbedingungen, denen Du jederzeit widersprechen kannst. Weitere Informationen zum Datenschutz

Ăśber den Anbieter

Crozilla.com
Crozilla.comMaklerbĂĽro
Nova cesta 60, 10000 ZAGREB
Biliskov real estateDein Kontakt
Online-ID: 2ne725m
Referenznummer: 18607115_2
Crozilla.com
Crozilla.com
Nachricht hinzufĂĽgen
Mit der Nutzung der oben angegebenen Telefonnummer oder durch Klicken auf „Kontaktieren“ akzeptierst Du die Allgemeinen Nutzungsbedingungen, denen Du jederzeit widersprechen kannst. Weitere Informationen zum Datenschutz
Wie zufrieden bist du mit dieser Seite (nicht mit der Immobilie selbst)?