Version: 8.25.1Navigation überspringen
Living Fertighaus GmbH Vertriebsbüro
458.574 €
4 Zimmer  •  110 m²  •  640 m² Grundstück

Haus zum Kauf • provisionsfrei
458574 €
4.169 €/m²
4 Zimmer  •  110 m²  •  640 m² Grundstück

Euer Wohnvergnügen auf einer Ebene

Du möchtest dein neues Zuhause grenzenlos genießen, ohne Schwellen und eben leben? Aber du willst dabei auf nichts verzichten? Das musst du auch nicht! Im SOLUTION 110 kannst du all deine Ideen und Vorstellungen ausleben. Große Gemeinschaftsbereiche, drei kuschelige Schlafräume und intelligente Stauflächen machen diesen Bungalow zum wahren Wohnparadies fu?r dich und deine Familie. Du brauchst noch mehr Platz? Dann erweitere die Wohnfläche einfach - durch Wohnflächenerweiterungen oder architektonische Gimmicks wie zum Beispiel einen Giebelerker, ein Querhaus oder einen lichtdurchfluteten Übereck-Panoramaerker. Das SOLUTION 110 setzt ein u?berzeugendes Statement fu?r den Bungalow: fu?r Individualisten wie Dich - Dein Zuhause eben erleben.

Merkmale

  • 640 m² Grundstück
  • Einbauküche
  • Badezimmer: Badewanne, Bad mit Dusche, Bad mit Fenster
  • Gäste-WC
  • Bodenbelag: Fliesen
  • Terrasse
  • Garten
  • voll klimatisiert
?? Living Haus - Mehr als ein Haus, dein Zuhause! ??

Bauen kann kompliziert sein - muss es aber nicht! Mit Living Haus bekommst du alles, was du brauchst, direkt mit dazu. Keine versteckten Kosten, kein Kleingedrucktes - einfach ein perfekt durchdachtes Zuhause. Von außen fix und fertig, von innen individuell - genau so, wie du es willst!

?? Was du alles bekommst? Mehr, als du denkst! ??
? Baugenehmigungsplanung - Bürokratie? Erledigt!
? Alle Bauversicherungen - Weil sicher einfach sicher ist.
? Fix & Fertig von außen - Inklusive hochwertiger Haustür (damit keiner durch die Wand kommt ??).
? Fenster mit 3-Scheiben-Isolierverglasung - Mehr Licht, weniger Heizkosten.
? Elektrische Rollläden & Smart-Home-System - Komfort auf Knopfdruck!
? Verzinkte Dachrinnen & Fallrohre - Rostfreie Regentropfen-Highways.
? Dach mit 30 Jahren Garantie - Weil Dächer nicht ausfallen sollten.
? Außenputz in vielen Farben - Kein langweiliges Grau in Grau!
? Wohlfühl-Klima-Heizung mit Kühlfunktion - Im Winter warm, im Sommer cool.
? Edle Vollholztreppe - Kein klappriges Billig-Zeug.
? Sanitär- & Elektroinstallation betriebsbereit - Licht an, Wasser marsch! ????
? Bodenplatte inkl. Baugrunduntersuchung - Damit du nicht auf Sand baust.
? Küche von Nolte - Kochen wie ein Profi, selbst wenn nur Pasta mit Pesto drin ist. ??

? Aber warte, da kommt noch mehr! ?
?? 3 Tage Profi-Ausbau-Coaching mit der DIY Academy - Damit dein Innenausbau nicht nach Kunstprojekt aussieht.
?? 24/7 Beratungs-Service - Weil Fragen nicht nur zwischen 9 und 17 Uhr auftauchen.
?? 18 Monate Festpreisgarantie - Kein Stress mit steigenden Kosten.
?? 100 % transparente Verträge & detaillierte Leistungsbeschreibung - Du weißt, was du bekommst!
?? Hausbau ""Made in Germany"" mit geschlossenen Wänden ab Werk - Qualität, auf die du bauen kannst.
?? 30 Jahre Gewährleistung auf die Grundkonstruktion - Da wackelt nix!
?? 5 Jahre Gewährleistung nach BGB auf alle weiteren Bauleistungen - Sicherheit für dich.
?? Nachhaltig mit Holz aus PEFC-zertifizierter Forstwirtschaft - Gut für dich, gut für die Umwelt. ??
?? Gold-Standard-Zertifizierung (DGNB) - Weil Zukunft zählt.
?? Markenprodukte in geprüfter Qualität - Kein Ramsch, nur Top-Qualität.

?? Fazit: Du bekommst nicht nur ein Haus - du bekommst dein Zuhause.

?? Jetzt Beratungstermin sichern! Gemeinsam gestalten wir dein Traumhaus.
?? Ruf an: 0178-8884022

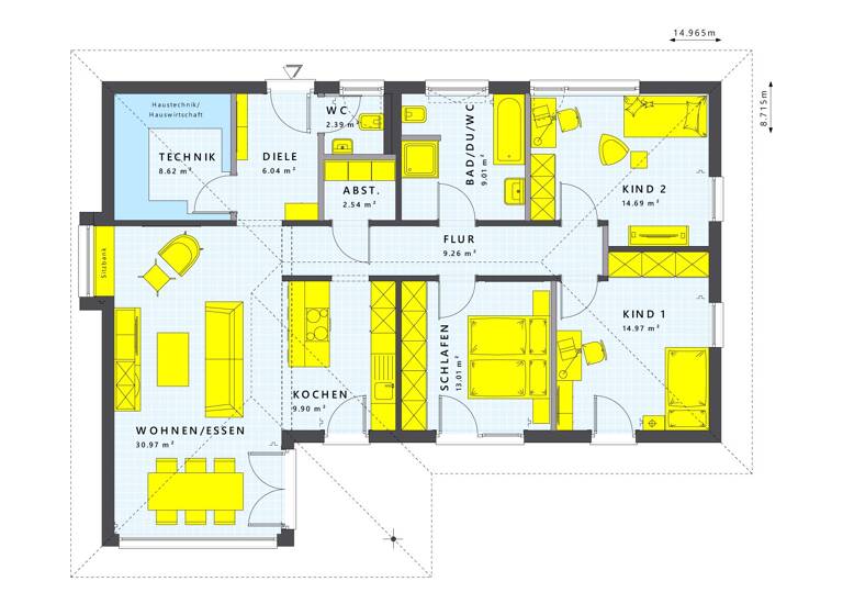
Grundrisse

Grundrisse
1 / 1

Realisiere Dein Projekt

Bausubstanz und Energie

Energieausweis

A+
  • Baujahr2026
  • Zustand der ImmobilieFertighaus, Projektiert
  • HaustypKfW 40
  • EnergieträgerLuft-/Wasser-Wärmepumpe

Preisdetails

Kaufpreis
458574 €
4.168,85 €/m²
Provision für Käufer
provisionsfrei
Geschätzte Gesamtkosten
492.968 €1
Kaufpreis
458.574 €
Notarkosten (1,5%)
6.879 €
Grunderwerbsteuer (5,5%)
25.222 €
Grundbucheintrag (0,5%)
2.293 €
1Der angezeigte Wert ist eine automatisch berechnete Schätzung von immowelt.
2Bei den Angaben handelt es sich um ortsübliche Werte. Individuelle Kosten können abweichen.

Lage

address-icon
LiptitzWermsdorf (04779)
Der Anbieter hat die genaue Adresse nicht freigegeben
Das Grundstück für dieses Hausprojekt befindet sich in Wermsdorf, angenehm und ruhig gelegen. Einkaufsmöglichkeiten, soziale Einrichtungen und öffentlicher Verkehr sind ortsüblich erreichbar.

Doch nicht ganz Eure Wunschlage? Das ist aber kein Problem. Wir sollten uns einfach über Eure Wünsche unterhalten. Zurzeit verfüge ich über zahlreiche weitere Grundstücke in der Region.

Ihr habt bereits ein eigenes Baugrundstück? Glückwunsch! Natürlich baue ich mit Euch auch auf Eurem eigenen Grundstück Euer Traumhaus.

Also, einfach anrufen unter 0178-8884022, es gibt für fast alles eine überzeugende Lösung.

Jedoch bitte ich Euch zu berücksichtigen:

Ich bin kein Makler und trete auch nicht als ein solcher auf, sondern baue mit sehr viel Herz und Kompetenz Häuser. Im Interesse der jeweiligen Grundstückseigentümer sowie meiner Bauherren werde ich also ohne ein persönliches Gespräch zum Thema Hausbau nie irgendwelche Grundstücksdaten weiterleiten. Keine Ausnahmen an dieser Stelle.

Meine Angebote erfolgen freibleibend und unverbindlich. Irrtum und Zwischenverkauf bleiben vorbehalten. Den auf die einzelnen Grundstücke bezogenen Angaben liegen die mir gegenüber erteilten Auskünften und Informationen zugrunde. Trotz sorgfältiger Prüfung kann ich daher eine Haftung für deren Richtigkeit und Vollständigkeit nicht übernehmen.

Und... natürlich ist es mir selbst mit bestem Willen nicht möglich, eine dauerhafte Verfügbarkeit der Grundstücke zu garantieren. Es gibt jedes Grundstück halt nur einmal. Leider. "

Weitere Informationen

Sonstiges "Das hier angebotene Grundstück ist im obigen Preis eingerechnet.
Zusätzliche Baunebenkosten inkl. Maklerprovision müssen noch hinzugerechnet werden, hierüber beraten wir gern.
Wir bieten auch interessante Finanzierungsmöglichkeiten inklusive Beantragung aller Fördermittel!

Die Hausabbildungen und die Bilder der Inneneinrichtung zeigen möglicherweise Extras, die nicht im angegebenen Kaufpreis inbegriffen sind.

Gute Beratung ist der Anfang von Allem. Deshalb analysieren wir gemeinsam mit euch eure Vorstellungen, Wünsche und Bedürfnisse und finden so das für Dich und Deine Familie passende Living Haus.

Interessiert? Kontaktiere mich und vereinbare noch heute einen kostenlosen und unverbindlichen Beratungstermin."

Livinghaus - https://www.livinghaus.de/ Stichworte Nutzfläche: 110,00 m², Anzahl der Schlafzimmer: 3, Anzahl der Badezimmer: 2, Anzahl Terrassen: 1, 1 Etagen Energiestandard: Niedrigenergie, KFW55 Sonstiges/Wohnen: Dachboden

Weitere Services

Lust auf eine Besichtigung?
Eine Frage zur Immobilie?
Nachricht hinzufügen
Mit der Nutzung der oben angegebenen Telefonnummer oder durch Klicken auf „Kontaktieren“ akzeptierst Du die Allgemeinen Nutzungsbedingungen, denen Du jederzeit widersprechen kannst. Weitere Informationen zum Datenschutz

Über den Anbieter

Chopinstrasse 25, 04103 Leipzig
Oliver Zschörnig
Oliver ZschörnigDein Kontakt
Online-ID: 25XUC2SCKITZ
Referenznummer: 30764-7154
Living Fertighaus GmbH Vertriebsbüro
title
Living Fertighaus GmbH Vertriebsbüro
Nachricht hinzufügen
Mit der Nutzung der oben angegebenen Telefonnummer oder durch Klicken auf „Kontaktieren“ akzeptierst Du die Allgemeinen Nutzungsbedingungen, denen Du jederzeit widersprechen kannst. Weitere Informationen zum Datenschutz
Wie zufrieden bist du mit dieser Seite (nicht mit der Immobilie selbst)?