Version: 8.25.1Navigation überspringen
2.500.000 €
1.245 m²
Immowelt logo

Gewerbeobjekt zum Kauf • als Kapitalanlage geeignet
2500000 €
2.008 €/m²
1.245 m²

antaris Immobilien GmbH ** Innenstadtjuwel - mit der Option zur Eigennutzung **

Zum Verkauf steht ein attraktives Immobilienensemble in bester Innenstadtlage von Erfurt, bestehend aus einem charmanten Altbau sowie einem modernen Neubau.

Der Altbau überzeugt durch seinen klassischen Charakter und eine gepflegte Erscheinung. Das Gebäude beherbergt insgesamt drei gut geschnittene Wohneinheiten sowie zwei Ladenlokale im Erdgeschoss, die von der frequentierten Innenstadtlage profitieren. Besonders hervorzuheben ist der einladende und repräsentative Eingangsbereich, der den historischen Charme des Hauses unterstreicht und einen positiven ersten Eindruck vermittelt.

Der Neubau ergänzt das Ensemble ideal und umfasst eine großzügige Gewerbeeinheit mit vielseitigen Nutzungsmöglichkeiten.

Die zentrale Lage in der Erfurter Innenstadt garantiert eine hervorragende Infrastruktur, kurze Wege sowie eine nachhaltige Vermietbarkeit sowohl im Wohn- als auch im Gewerbebereich.


GEWERBEFLÄCHEN:


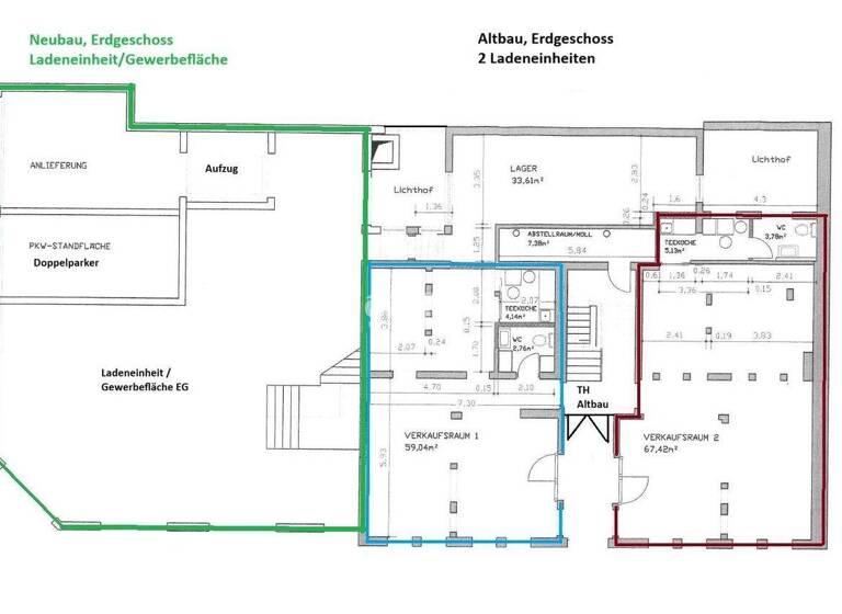
- Im Erdgeschoss des ALTBAUS befinden sich insgesamt 2 stabil vermietete Ladeneinheiten.


- Im NEUBAU mit attraktiver Ecklage existiert eine großzügige Gewerbefläche mit ca. 675 m², die sich über 3 Etagen erstreckt (mit offenem Treppenhaussystem). Diese ist aktuell frei gezogen und daher ideal zum Eigennutz geeignet als Laden-, Ausstellungs-, Büro- oder Beratungsfläche. Der zugehörige Keller, der Fahrstuhl und die Anlieferzone runden diese Einheit ab.

WOHNEINHEITEN:
- Hier ist hervorzuheben, dass die großzügige Wohnung im 1.OG eine außergewöhnlich große Terrasse besitzt und in 2025 aufwendig renoviert wurde.
- Zudem erhielt die Wohnung im 2.Obergeschoss Anfang 2026 eine umfangreiche Modernisierung.
- Die Dachgeschosswohnung mit dem imposanten Dachgarten ist solide vermietet.

Dieses Wohn- und Geschäftshaus vereint historische Bausubstanz mit modernem Nutzungskonzept und stellt eine seltene Gelegenheit dar, in einer der gefragtesten Lagen Erfurts. Ein wertbeständiges Renditeobjekt mit zusätzlichem Entwicklungspotenzial!

Merkmale

  • 2 Stellplätze: Außen-Stellplatz
** 3 Gewerbeeinheiten
** 3 Wohneinheiten
** unterkellert
** 2-3 Stellplätze (Doppelparker)
** Anlieferstation
** Fahrstuhl in der Gewerbefläche
** Wohnung 1.OG in 2025 aufwendig modernisiert
** Wohnung 2.OG in 2026 frisch renoviert
** Terrasse / Dachgarten
** innerstädtische Top-Lage mit hervorragender Perspektive auf Wertsteigerung
** bestehende Verträge bieten Raum für Anpassungen
** zusätzliche Erträge durch Neuvermietung der Terrassenwohnung im 1.OG + der Mietwohnung im 2.OG
** Eigennutz oder Neuvermietung der Eck-Gewerbeeinheit möglich

Grundrisse

Grundrisse
1 / 4

Realisiere Dein Projekt

Bausubstanz und Energie

Energieausweis

Endenergieverbrauch (Wärme)

  • Baujahr1900
Immowelt logo

Preisdetails

Kaufpreis
2500000 €
2.008,03 €/m²
Provision für Käufer
3,57 % der Kaufpreissumme inkl. MwSt. vom Käufer
Geschätzte Gesamtkosten
2.764.250 €1
Kaufpreis
2.500.000 €
Notarkosten (1,5%)
37.500 €
Grunderwerbsteuer (5%)
125.000 €
Provision für Käufer (3,57%)
89.250 €
Grundbucheintrag (0,5%)
12.500 €
1Der angezeigte Wert ist eine automatisch berechnete Schätzung von immowelt.
2Bei den Angaben handelt es sich um ortsübliche Werte. Individuelle Kosten können abweichen.

Lage

address-icon
AltstadtErfurt (99084)
Der Anbieter hat die genaue Adresse nicht freigegeben
Das Wohn- und Geschäftshaus besticht durch seine zentrale Mikrolage im Herzen Erfurts. Die Nähe zu Fußgängerzonen, Gastronomie, Banken, Apotheken und vielfältigen Einkaufsmöglichkeiten sorgt für einen stetigen Publikumsstrom und sichert den gewerblichen Mietern eine stabile Kundenbasis. Für die Wohnflächen entsteht durch die zentrale, zugleich ruhige Lage ein besonders attraktives Wohnumfeld mit anhaltend hoher Nachfrage. Öffentliche Verkehrsmittel und Parkmöglichkeiten sind in wenigen Gehminuten erreichbar.



Die innerstädtische Position in einer der gefragtesten Adressen, garantiert langfristige Stabilität und Potenzial zur Wertsteigerung.



Das Objekt bietet Eigennutzern die seltene Gelegenheit, ein wertstabiles Bestandsobjekt in gefragter Innenstadtlage zu erwerben - ein Investment mit soliden Erträgen und der Option zum Eigennutz einer attraktiven Gewerbefläche.

Weitere Informationen

Sonstiges Provision
Der Maklervertrag mit der antaris Immobilien GmbH kommt entweder durch eine schriftliche Vereinbarung oder durch die Inanspruchnahme unserer Maklertätigkeit auf Basis der Anforderung des Objekt-Exposés und der beinhalteten Bestimmungen zustande (siehe auch AGB). Für den Nachweis und/oder die Vermittlung des vorstehenden Objektes hat der Käufer an uns eine Maklerprovision in Höhe 3,57 % der Kaufpreissumme inkl. der gesetzlichen Mehrwertsteuer zu zahlen. Die Provision ist fällig und zahlbar am Tag der Vertragsunterzeichnung durch den Käufer.

Widerrufsrecht
Sie können Ihre Vertragserklärung innerhalb von 14 Tagen ohne Angaben von Gründen in Textform (z.B. Brief, E-Mail) widerrufen. Die Frist beginnt nach Erhalt dieser Belehrung in Textform, jedoch nicht vor Vertragsabschluss und auch nicht vor Erfüllung unserer Informationspflichten gem. Art. 246 § 2 i.V.m. § 1 Abs. 1 und 2 EGBGB. Zur Wahrung der Widerrufsfrist genügt die rechtzeitige Absendung des Widerrufs. Im Falle eines wirksamen Widerrufs sind die beiderseits empfangener Leistungen zurück zu gewähren und ggf. bezogene Nutzungen (z.B. Zinsen) herauszugeben. Können Sie uns die empfangenen Leistungen sowie Nutzungen (z.B. Gebrauchsvorteile) nicht oder teilweise nicht oder nur in verschlechtertem Zustand zurückgewähren bzw. herausgeben, müssen Sie uns insoweit Wertersatz leisten. Dies kann dazu führen, dass Sie die vertraglichen Zahlungsverpflichtungen für den Zeitraum bis zum Widerruf gleichwohl erfüllen müssen. Verpflichtungen zur Erstattung von Zahlungen müssen innerhalb von 30 Tagen erfüllt werden.
Die Frist beginnt für Sie mit der Absendung Ihrer Widerrufserklärung, für uns mit deren Empfang. Das Widerrufsrecht erlischt vorzeitig, wenn der Vertrag von beiden Seiten auf Ihren ausdrücklichen Wunsch vollständig erfüllt ist, bevor Sie Ihr Widerrufsrecht ausgeübt haben.

Weitere Angebote finden Sie unter www.antaris-immobilien.de!

Weitere Services

Lust auf eine Besichtigung?
Eine Frage zur Immobilie?
Nachricht hinzufügen
Mit der Nutzung der oben angegebenen Telefonnummer oder durch Klicken auf „Kontaktieren“ akzeptierst Du die Allgemeinen Nutzungsbedingungen, denen Du jederzeit widersprechen kannst. Weitere Informationen zum Datenschutz

Über den Anbieter

Juri-Gagarin-Ring 96-98, 99084 Erfurt
partner badge
6 Jahre Partnerschaft
Frau Jessica ThorwirthDein Kontakt
Online-ID: 26SFNA5MDEFX
Referenznummer: VK33/G3
Antaris Immobilien GmbH
Antaris Immobilien GmbH
Bewertung: 4,1 von 5 Sternen
Nachricht hinzufügen
Mit der Nutzung der oben angegebenen Telefonnummer oder durch Klicken auf „Kontaktieren“ akzeptierst Du die Allgemeinen Nutzungsbedingungen, denen Du jederzeit widersprechen kannst. Weitere Informationen zum Datenschutz
Wie zufrieden bist du mit dieser Seite (nicht mit der Immobilie selbst)?