

Einfamilienhaus zum Kauf329000 €1.935 €/m²8 Zimmer • 170 m² • 920 m² Grundstück
329000 €
1.935 €/m²
8 Zimmer • 170 m² • 920 m² Grundstück
Einzigartiger Rohdiamant mit tollem Garten und Werkstatt
Merkmale
- 920 m² Grundstück
- EinbaukĂĽche
- Keller
- Gäste-WC
- Garten
- offener Kamin
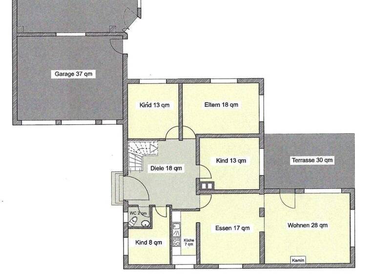
Grundrisse
Grundrisse
1 / 2
Realisiere Dein Projekt
Bausubstanz und Energie
Energieausweis
H
- Baujahr1971
Preisdetails
Kaufpreis
329000 €
1.935,29 €/m²
Provision für Käufer
3.57% inkl. 19.00% MwSt.
Geschätzte Gesamtkosten
358.840 €1
Kaufpreis
329.000 €
Kaufnebenkosten
29.840 €
2Notarkosten (1,5%)
4.935 €
Grunderwerbsteuer (3,5%)
11.515 €
Provision für Käufer (3,57%)
11.745 €
Grundbucheintrag (0,5%)
1.645 €
1Der angezeigte Wert ist eine automatisch berechnete Schätzung von immowelt.
2Bei den Angaben handelt es sich um ortsübliche Werte. Individuelle Kosten können abweichen.
Lage

Pörndorf, Aldersbach (94501)
Der Anbieter hat die genaue Adresse nicht freigegeben
Weitere Informationen
Weitere Services
Lust auf eine Besichtigung?
Eine Frage zur Immobilie?
Ăśber den Anbieter
Golden Home Real Ltd & Co KGMaklerbĂĽro
Unter den Linden 10, 10117 Berlin
3 Jahre Partnerschaft
Judith KienitzDein Kontakt
Online-ID: 2lygm5e
Referenznummer: 01J9RDKYSZ10Y25KNE1J2VHZSA

Golden Home Real Ltd & Co KG
Wie zufrieden bist du mit dieser Seite (nicht mit der Immobilie selbst)?

