Das angebotene Objekt ist ein OKAL-Fertighaus aus dem Baujahr 1979 auf einem 602 m² großen Grundstück. Das Kellergeschoss wurde in Massivbauweise errichtet, die darüberliegenden Geschosse in Fertighausbauweise. Eine Doppelgarage aus dem Baujahr 1985 ergänzt das Angebot.
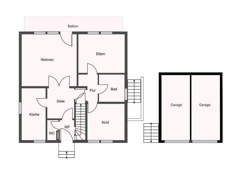
Die Hauptwohnung im Erdgeschoss verfügt über ca. 92 m² Wohnfläche, aufgeteilt in Wohnzimmer und zwei (Schlaf-)Räume, Küche, Bad sowie einen Balkon. Im Untergeschoss befindet sich eine Einliegerwohnung (mit separatem Eingang - ein Zugang durch das Wohnhaus besteht ebenfalls) mit ca. 55 m² Wohnfläche; zusätzlich stehen ca. 19 m² Nutzfläche (Kellerräume) zur Verfügung. Das Dachgeschoss ist derzeit nicht ausgebaut und wird als Abstellfläche genutzt; ein Ausbau erscheint flächenmäßig möglich, eine baurechtliche Prüfung wurde hierzu nicht vorgenommen.
Das Gebäude wird über eine Nachtspeicherheizung beheizt, die Fenster sind als Holzrahmenfenster mit Doppelverglasung ausgeführt. Als Bodenbeläge wurden Laminat, Fliesen und Teppichboden verwendet, die Wände sind überwiegend tapeziert bzw. gefliest.
Ein Glasfaseranschluss ist im Gebäude bereits vorhanden.
Die Immobilie wird im derzeitigen Zustand verkauft. Die Angaben zur Bauweise, zur Schadstoffmessung und zum Sanierungsbedarf dienen der transparenten Information und ersetzen keine eigene fachliche Prüfung durch den Käufer.
Merkmale
Bezug: nach Absprache
602 m² Grundstück
Kelleranteil
2 Stellplätze: 2 Außen-Stellplätze
Gäste-WC
Balkon
Garten
Terrasse
Grundrisse
Grundrisse
1 / 2
Realisiere Dein Projekt
Bausubstanz und Energie
Energieausweis
G
Baujahr1979
Zustand der Immobilierenovierungsbedürftig / sanierungsbedürftig
HeizungsartEtagenheizung
EnergieträgerElektro
Preisdetails
Kaufpreis
190000 €190.000 €
1.292,52 €/m²
Provision für Käufer
3,57 % (3 % zzgl. 19 % MwSt.) Nach Abschluss des notariellen Kaufvertrags ist eine Maklercourtage in Höhe von 3,57 % inkl. 19 % MwSt. an Martin-Perez Immobilien GmbH fällig.
Weitere Preisinformationen
2 Stellplätze
Geschätzte Gesamtkosten
211.850 €1
Kaufpreis
190.000 €
Kaufnebenkosten
21.850 €
2
Notarkosten (1,5%)
2.850 €
Grunderwerbsteuer (6,5%)
12.350 €
Provision für Käufer (3%)
5.700 €
Grundbucheintrag (0,5%)
950 €
1Der angezeigte Wert ist eine automatisch berechnete Schätzung von immowelt.
2Bei den Angaben handelt es sich um ortsübliche Werte. Individuelle Kosten können abweichen.
Lage
Rotthausen, Schalksmühle (58579)
Der Anbieter hat die genaue Adresse nicht freigegeben
Schalksmühle, eine kleine Stadt im Märkischen Kreis mit rd. 11.000 Einwohnern, bezeichnet sich selbst als "Berg- und Tal-Gemeinde". Das Gemeindegebiet weist teilweise Höhenunterschiede von bis zu 300 Metern auf.
Das Objekt befindet sich im Ortsteil Mathagen, westlich des Kernorts auf einer Hochfläche. Alle Einrichtungen des täglichen Bedarfs, zum Beispiel Ärzte, Apotheken, eine Sparkasse sowie kleinere und größere Einzelhandelsgeschäfte, Kindergärten, eine Grundschule und eine Primusschule (bis Sek. II) sind in Schalksmühle vorhanden. In unmittelbarer Nähe befinden sich eine Bushaltestelle sowie ein Kindergarten und die Primusschule.
Mit dem Auto oder per Bus/Bahn sind die Nachbarstädte Hagen, Lüdenscheid oder Breckerfeld schnell erreichbar, auch die großen Städte des Ruhrgebiets sind nicht weit entfernt.
Weitere Informationen
Sonstiges
Alle in dem Exposé genannten Angaben wurden vom Eigentümer gemacht. Diese wurden mit Sorgfalt übernommen. Eine Garantie, Haftung oder Gewährleistung kann durch die Maklerfirma nicht übernommen werden und ist damit ausgeschlossen. Ihre Daten werden nur zur Bearbeitung Ihrer Anfrage gespeichert und ohne Ihre Zustimmung nicht an Dritte weitergleitet. Sie haben das Recht zu jeder Zeit Auskunft über Ihre bei uns hinterlegten Daten zu erhalten oder die Löschung dieser Daten zu verlangen, sofern dies nicht gesetzlichen Vorgaben (z. B. ordnungsgemäße Buchführung) nach Abschluss eines Kaufvertrages widerspricht. Bitte haben Sie Verständnis, dass wir Ihnen das Exposé nur nach Angabe Ihres Namens, Ihrer Adresse und Telefonnummer zusenden.
Hinweis zur Maklercourtage: Die Gesamtcourtage beträgt 6 % zzgl. 19 % MwSt., diese wird hälftig zwischen Käufer und Verkäufer geteilt. Mit Beurkundung des notariellen Kaufvertrags ist eine Käuferprovision in Höhe von 3 % zzgl. 19 % MwSt. (insgesamt 3,57 %) fällig. Mit dem Verkäufer wurde ein provisionspflichtiger Maklervertrag in gleicher Höhe abgeschlossen.
Stichworte
Anzahl der Schlafzimmer: 3, Anzahl der Badezimmer: 2, Anzahl der separaten WCs: 1, Anzahl Balkone: 1, Anzahl Terrassen: 1, Balkon-Terrassen-Fläche: 18,00 m², 1 Etagen
Sonstiges/Wohnen: Einliegerwohnung