Version: 8.24.1Navigation ĂĽberspringen
25 €
224 m² Bürofläche
Immowelt logo

Bürofläche zur Miete
25 €
/m²
224 m² Bürofläche

Repräsentatives Innenstadtbüro

Dieses repräsentative Miet-Büro liegt mitten im Zentrum Wiens direkt am Lugeck zwischen Stephansplatz und Schwedenplatz und besticht durch seine absolut zentrale Innenstadtlage.

Das Büro im 1. OG bietet eine Flächen von ca. 170 m². Das Büro im 3. OG umfasst ca. 224 m², wird gerade generalsaniert und komplett erneuert.

Eine Anmietung ist ab sofort möglich.

- Alle Preise verstehen sich zzgl. 20% Ust. Die Flächenaufstellung beinhaltet die reine Bürofläche exkl. anteiliger Allgemeinfläche
- Kaution: 3 - 6 Bruttomonatsmiete

Merkmale

  • 3. Geschoss
  • Personenaufzug
  • Bodenbelag: Parkett
- Lift
- Parkettboden
- Heizung mit Radiatoren
- Neue TeekĂĽche
- Rasterdeckenleuchten
- getrennte Sanitäranlagen
- KĂĽhlung ĂĽber zentrale HauskĂĽhlanlage
- Jalousien mechanisch
- GekĂĽhlter Serverraum

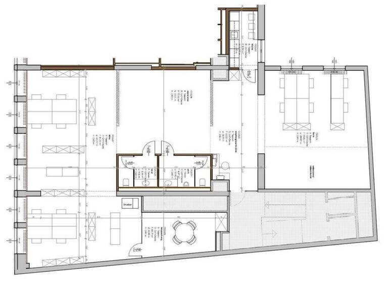
Grundrisse

Grundrisse
1 / 1

Realisiere Dein Projekt

Bausubstanz und Energie

Heizwärmebedarf (HWB)

B

Gesamtenergieeffizienz (fGEE)

C
  • Baujahr1960
  • Zustand der Immobilierenoviert / saniert
  • EnergieträgerFernwärme
Immowelt logo

Mietkosten

Monatliche Miete
25 €/m²
Provision fĂĽr Mieter
3 Bruttomonatsmieten
Kaution
keine Angabe

Lage

address-icon
Wien (1010)
Der Anbieter hat die genaue Adresse nicht freigegeben
Das Objekt bietet sämtliche Vorteile der Infrastruktur des 1. Bezirks mit einer Vielzahl an Restaurants, Geschäften und der Anbindung an die U-Bahn-Stationen am Stephansplatz sowie Schwedenplatz.

Ă–ffentliche Verkehrsanbindung
- U-Bahn: U1, U3, U4 - Station Stephansplatz
- Bus: 1A, 2A, 3A
- StraĂźenbahn: 1, 2, D

Weitere Informationen

Sonstiges Wir weisen darauf hin, dass zwischen dem Vermittler und dem Auftraggeber ein wirtschaftliches Naheverhältnis besteht. Der Vermittler ist als Doppelmakler tätig. Stichworte Nutzfläche: 224,00 m², Bundesland: Wien

Weitere Services

Lust auf eine Besichtigung?
Eine Frage zur Immobilie?
Nachricht hinzufĂĽgen
Mit der Nutzung der oben angegebenen Telefonnummer oder durch Klicken auf „Kontaktieren“ akzeptierst Du die Allgemeinen Nutzungsbedingungen, denen Du jederzeit widersprechen kannst. Weitere Informationen zum Datenschutz

Ăśber den Anbieter

Prinz-Eugen-Strasse 8-10, 1040 WIEN
partner badge
Partnerschaft
Herr Heinrich Resmann
Herr Heinrich ResmannDein Kontakt
Online-ID: 2n3cv5r
Referenznummer: 2200037_3
EHL Gewerbeimmobilien GmbH
title
EHL Gewerbeimmobilien GmbH
Nachricht hinzufĂĽgen
Mit der Nutzung der oben angegebenen Telefonnummer oder durch Klicken auf „Kontaktieren“ akzeptierst Du die Allgemeinen Nutzungsbedingungen, denen Du jederzeit widersprechen kannst. Weitere Informationen zum Datenschutz
Wie zufrieden bist du mit dieser Seite (nicht mit der Immobilie selbst)?