Version: 8.25.1Navigation überspringen
1.750.000 €
5 Zimmer  •  220 m²  •  142 m² Grundstück
Immowelt logo

Stadthaus zum Kauf - Erstbezug • provisionsfrei
1750000 €
7.955 €/m²
5 Zimmer  •  220 m²  •  142 m² Grundstück

New-build townhouse in Artà with elevator, patio and pool - modern living in the historic town center

In the historic center of Artà, an extraordinary new townhouse is being built that combines traditional architecture with modern clarity. Behind the classic façade, a well thought-out room concept unfolds, combining Mediterranean materials, contemporary design and a high level of living comfort.

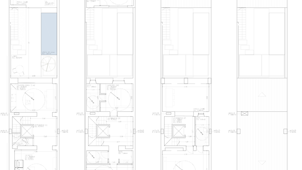
On a plot of approx. 142 m², a constructed area of around 229 m² is being created with around 220 m² of living space, spread over three levels and a roof terrace. The approved new-build project follows a clear architectural line: natural stone, wood and high-quality materials create warmth and structure, while modern building services such as a heat pump, central air conditioning and elevator offer contemporary comfort.

The first floor opens up into a light-flooded living and dining area with an open-plan kitchen. Large doors lead directly into the patio, where a pool with a water surface area of around 8 m² and a lounge area create a peaceful Mediterranean atmosphere. An external staircase leads to a separate guest room with its own bathroom - ideal as a studio, office or private retreat.

There are two bedrooms and a bathroom on the second floor. The second floor is reserved for the master suite - with en suite bathroom and access to the roof terrace. From here, there is a beautiful view of San Salvador and over the rooftops of Artà.

All permits have been obtained and construction is about to begin. This gives buyers the opportunity to customize materials and fittings.

Merkmale

  • 142 m² Grundstück
  • Personenaufzug
  • Einbauküche
  • Bad mit Dusche
  • Bodenbelag: Fliesen
  • Balkon
  • voll klimatisiert
  • Swimmingpool
Features & Highlights:
- Newly built townhouse in the historic center of Artà
- approx. 220 m² living space on three levels
- Roof terrace with views of the San Salvador mountain and the rooftops of Artà
- Patio with private pool (approx. 8 m² water surface) and lounge area
- Elevator to all floors
- Air heat pump for energy-efficient building services
- Central air conditioning (hot / cold)
- Underfloor heating possible
- High-quality natural stone and wood elements
- Large windows and doors for plenty of natural light
- Open designer kitchen (can be individually planned)
- Master suite with en suite bathroom and access to the roof terrace
- Two further bedrooms and additional bathroom
- Separate guest room with en suite bathroom and access via the patio
- High-quality floor coverings made of natural stone or microcement possible
- Built-in wardrobes made to measure
- Preparation for smart home systems possible
- Individual selection of materials and furnishing details during the construction phase

Grundrisse

Grundrisse
1 / 1

Realisiere Dein Projekt

Bausubstanz und Energie

Möchtest du Details zum Energieverbrauch?info_energy_calculation-icon
  • Baujahr2026
  • Zustand der ImmobilieErstbezug
  • HeizungsartFußbodenheizung
  • EnergieträgerLuft-/Wasser-Wärmepumpe
Immowelt logo

Preisdetails

Kaufpreis
1750000 €
7.954,55 €/m²
Provision für Käufer
provisionsfrei

Lage

address-icon
Artà (07570)
Der Anbieter hat die genaue Adresse nicht freigegeben
Artà is one of the most charming and authentic towns in the north-east of Mallorca. The historic town is nestled between rolling hills and expansive nature and has retained its original character to this day. Cobbled alleyways, traditional sandstone houses and small squares characterize the townscape and give Artà a special atmosphere.

The center is dominated by the imposing pilgrimage church of Sant Salvador, from which you can enjoy a sweeping view over the roofs of the town and the surrounding countryside. Numerous cafés, restaurants, small boutiques and galleries can be found around the lively pedestrian zone, giving the town a pleasant, Mediterranean vibrancy.

The traditional weekly market, which takes place every Tuesday and attracts visitors from all over the region, is particularly popular. This is where Mallorcan tradition meets international flair.

Despite the quiet and natural location, some of the most beautiful beaches on the island - including Cala Torta, Cala Mitjana and Canyamel - can be reached in just 10 to 15 minutes by car. Several renowned golf courses such as Capdepera Golf or Pula Golf are also located in the immediate vicinity.

Artà combines authentic island life with an excellent infrastructure and is therefore one of the most sought-after residential areas in the north-east of Mallorca. The charming town center, the proximity to nature and the easy accessibility of the coast make the town particularly attractive for people who want to combine the original Mallorca with a high quality of life.

Weitere Informationen

Stichworte Anzahl der Schlafzimmer: 4, Anzahl der Badezimmer: 3, Anzahl Balkone: 1, Bundesland: Mallorca

Weitere Services

Lust auf eine Besichtigung?
Eine Frage zur Immobilie?
Nachricht hinzufügen
Mit der Nutzung der oben angegebenen Telefonnummer oder durch Klicken auf „Kontaktieren“ akzeptierst Du die Allgemeinen Nutzungsbedingungen, denen Du jederzeit widersprechen kannst. Weitere Informationen zum Datenschutz

Über den Anbieter

Konstanzerstrasse 37, 8274 TÄGERWILEN
partner badge
3 Jahre Partnerschaft
KENSINGTON Finest Properties International Mallorca Nordosten - Martina AlbrechtDein Kontakt
Online-ID: 26UA78AJ964W
Referenznummer: KPNO1026
KENSINGTON Finest Properties International AG
KENSINGTON Finest Properties International AG
Bewertung: 4,8 von 5 Sternen
Nachricht hinzufügen
Mit der Nutzung der oben angegebenen Telefonnummer oder durch Klicken auf „Kontaktieren“ akzeptierst Du die Allgemeinen Nutzungsbedingungen, denen Du jederzeit widersprechen kannst. Weitere Informationen zum Datenschutz
Wie zufrieden bist du mit dieser Seite (nicht mit der Immobilie selbst)?