Version: 8.25.1Navigation überspringen
15 €
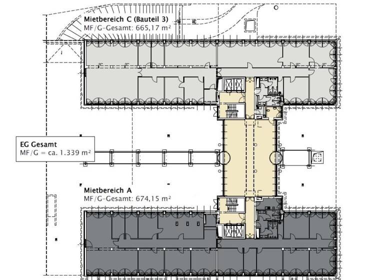
1.339 m² Bürofläche  •  teilbar ab 1.339 m²
Immowelt logo

Büro zur Miete • provisionsfrei
15 €
/m²
1.339 m² Bürofläche  •  teilbar ab 1.339 m²

Repräsentative Büroflächen im Südviertel!

Die repräsentative Immobilie in Rüttenscheid besticht durch eine hochwertige und zeitgemäße Ausstattung, die auch an die Bedürfnisse der zukünftigen Mieter angepasst werden kann. Die flexible Grundstruktur der Mietflächen bietet die Möglichkeit, verschiedene Raumprogramme wie Team- und Großraumbüros aber auch Einzel- und Doppelbüros umzusetzen.

Nachfolgende Büroflächen können momentan angeboten werden

Erdgeschoss: ca. 1.339 m²
1. Obergeschoss: ca. 1.414 m²
2. Obergeschoss: ca. 1.604 m²
3. Obergeschoss: ca. 1.604 m²

Summe: ca. 5.961 m²

Merkmale

  • Bezug: kurzfristig nach Vereinbarung
  • Personenaufzug
  • Teeküche
  • 120 Stellplätze: Tiefgarage
Bodenbelag: Teppichboden oder nach Mieterwunsch
Kühlung in Absprache mit dem Mieter
EDV-Verkabelung: CAT 6
Kabelführung: Bodentanks
Sonnenschutz: außen liegend (elektrisch)
Teeküche: in jeder Mieteinheit vorhanden
Beleuchtung: bildschirmarbeitsplatzgerechte Deckenleuchten
Aufzug: Personenaufzüge vorhanden
Heizung: Fernwärme
Barrierefrei: ebenerdiger Hauszugang
Tiefgarage / E-Parkplätze vorhanden
Sonstiges:
- Kantine im Nachbarobjekt
- Brandmeldezentrale

Grundrisse

Grundrisse
1 / 1

Realisiere Dein Projekt

Bausubstanz und Energie

Energieausweis

Endenergiebedarf (Wärme)

Endenergiebedarf (Strom)

  • Baujahr2000
Immowelt logo

Mietkosten

Monatliche Miete
15 €/m²
Nebenkosten
4,50 €
Zusätzliche Kosten
Heizkosten
Provision für Mieter
provisionsfrei
Kaution
keine Angabe

Lage

address-icon
SüdviertelEssen (45128)
Der Anbieter hat die genaue Adresse nicht freigegeben
Top Lage! In unmittelbarer Nähe zur Rüttenscheider Straße! Das gastronische Angebot aber auch die Anbindung an den ÖPNV und das Autobahnnetz sind exzellent.


Fahrtweg zu A40: ca. 3 Minuten
Fahrtweg zum Hbf Essen: ca. 3 Minuten
Fahrtweg zum Flughafen Düsseldorf: 20 Minuten
Gehweg zum ÖPNV: 3 Minute

Weitere Informationen

Sonstiges Dieses Angebot ist provisionsfrei für den Mieter!

Alle Informationen in diesem Exposé beruhen auf Angaben, die wir vom Vermieter erhalten haben. Für Richtigkeit und Vollständigkeit übernehmen wir keine Gewähr. Zwischenvermietung vorbehalten. Die Grundrisse müssen nicht mit der aktuellen Raumaufteilung übereinstimmen und sind unmaßstäblich. Für Flächenangaben übernehmen wir keine Gewähr. In Planunterlagen eventuell abgebildete Möblierungen sind nicht Inhalt des Mietgegenstands.

Es gelten ausschließlich unsere AGB (www.cubion.de/agb). Stichworte Sonstiges: EDV-Verkabelung

Weitere Services

Lust auf eine Besichtigung?
Eine Frage zur Immobilie?
Mit einer persönlichen Nachricht hast du bessere Chancen auf eine Antwort.
Mit der Nutzung der oben angegebenen Telefonnummer oder durch Klicken auf „Kontaktieren“ akzeptierst Du die Allgemeinen Nutzungsbedingungen, denen Du jederzeit widersprechen kannst. Weitere Informationen zum Datenschutz

Über den Anbieter

Akazienallee 65, 45478 Mülheim
partner badge
3 Jahre Partnerschaft
Herr Stewart Darman
Herr Stewart DarmanDein Kontakt
Online-ID: 24CAGYARP38W
Referenznummer: 2487/G1/E1
CUBION Immobilien AG
title
CUBION Immobilien AG
Mit einer persönlichen Nachricht hast du bessere Chancen auf eine Antwort.
Mit der Nutzung der oben angegebenen Telefonnummer oder durch Klicken auf „Kontaktieren“ akzeptierst Du die Allgemeinen Nutzungsbedingungen, denen Du jederzeit widersprechen kannst. Weitere Informationen zum Datenschutz
Wie zufrieden bist du mit dieser Seite (nicht mit der Immobilie selbst)?