

Wohnung zum Kauf550000 €4.400 €/m²4 Zimmer • 125 m² • 1. Geschoss
550000 €
4.400 €/m²
4 Zimmer • 125 m² • 1. Geschoss
Luxuswohnung mit Meerblick - Kozino, Zadar, zu verkaufen
Merkmale
- 1. Geschoss
- voll klimatisiert
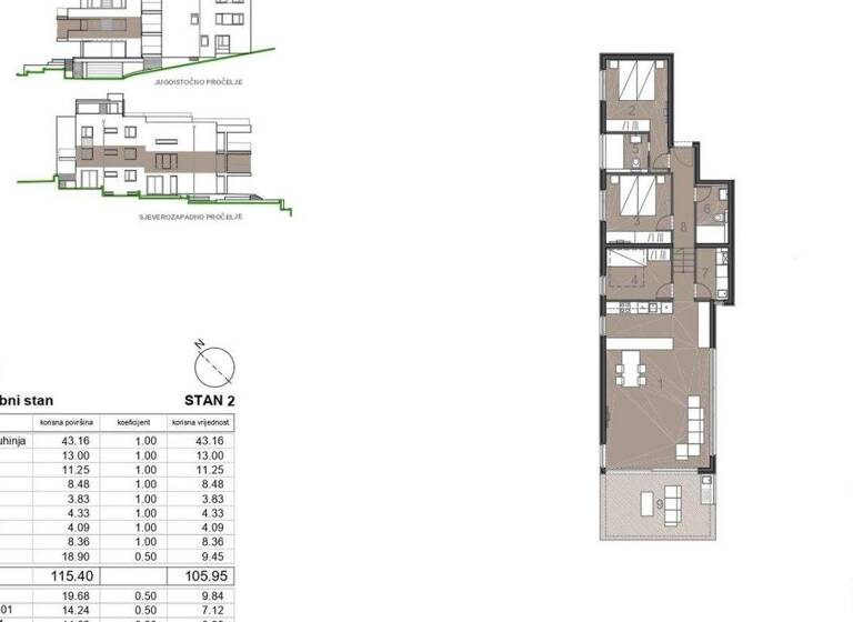
Grundrisse
Grundrisse
1 / 2
Realisiere Dein Projekt
Bausubstanz und Energie
Der Anbieter hat keine Informationen zum Energieverbrauch bereit gestellt.
- Baujahr0
Preisdetails
Kaufpreis
550000 €
4.400 €/m²
Provision für Käufer
Bitte beachte, das Angebot kann bei Vertragsabschluss die Zahlung einer Provision beinhalten. Weitere Informationen erhältst Du vom Anbieter.
Lage

Zadar (0)
Der Anbieter hat die genaue Adresse nicht freigegeben
Weitere Informationen
Weitere Services
Lust auf eine Besichtigung?
Eine Frage zur Immobilie?
Ăśber den Anbieter
K3 Immobilien Austria GmbHMaklerbĂĽro
Josef-Schwer-Gasse 9, 5020 Salzburg
Partnerschaft
Herr Anel MemicDein Kontakt
Online-ID: 2nchf56
Referenznummer: 15426

K3 Immobilien Austria GmbH
Wie zufrieden bist du mit dieser Seite (nicht mit der Immobilie selbst)?

