Version: 8.25.2Navigation überspringen
Nageler Immobilien GmbH
197.000 €
3 Zimmer  •  91 m²  •  EG

Wohnung zum Kauf
197000 €
2.165 €/m²
3 Zimmer  •  91 m²  •  EG

Gut geschnittene 3-Zimmer-Wohnung mit ca. 91 m²

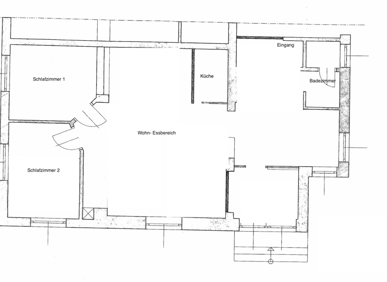
Diese gut geschnittene 3-Zimmer-Wohnung mit einer Wohnfläche von ca. 91 m² überzeugt durch ihre praktische Raumaufteilung und den großzügigen Grundriss.

Beim Betreten der Wohnung gelangt man in den großen Eingangsbereich, der ausreichend Platz für Garderobe und Stauraum bietet.

Der Wohn- und Essbereich bildet den zentralen Mittelpunkt der Wohnung und bietet genügend Platz für Wohnen und Essen. Die Küche ist durch eine Schiebetüre vom Wohnbereich getrennt, wodurch eine klare Raumtrennung gegeben ist.

Die Wohnung verfügt über zwei Schlafzimmer, die sich ideal als Schlaf-, Kinder- oder Arbeitszimmer eignen.

Das neu renovierte Badezimmer ist mit Dusche, WC und einem Fenster ausgestattet.

Durch die gute Raumaufteilung eignet sich diese Wohnung ideal für Paare, kleine Familien oder Personen mit Platzbedarf für ein Homeoffice.

Zusätzlich besteht auch die Möglichkeit, die Immobilie als Büro- oder Gewerbefläche zu nutzen.



(Die auf einigen Bildern dargestellten Möbel und Einrichtungsgegenstände sind virtuelle Einrichtungsvorschläge (Symbolbilder) und dienen ausschließlich der Veranschaulichung möglicher Raumgestaltung und Möblierung. Die Wohnung wird unmöbliert verkauft.)

Merkmale

  • Erdgeschoss
  • Einbauküche
  • Außen-Stellplatz
  • Badezimmer: Bad mit Dusche, Bad mit Fenster

Grundrisse

Grundrisse
1 / 1

Bausubstanz und Energie

Heizwärmebedarf (HWB)

D

Gesamtenergieeffizienz (fGEE)

Der Anbieter hat keine Daten zum Energieausweis hinterlegt.
  • EnergieträgerÖl
MediumRectangleTop

Preisdetails

Kaufpreis
197000 €
2.164,84 €/m²
Provision für Käufer
Bitte beachte, das Angebot beinhaltet bei Vertragsabschluss die Zahlung einer Provision. Weitere Informationen erhältst Du vom Anbieter.

Lage

address-icon
Seebach-WasenbodenVillach(Stadt) (9500)
Der Anbieter hat die genaue Adresse nicht freigegeben
Die Wohnung befindet sich in Villach in gut erreichbarer Lage mit praktischer Infrastruktur. Ein Lebensmittelgeschäft (Hofer) ist in etwa 15 Gehminuten erreichbar und bietet eine gute Versorgung für den täglichen Bedarf. Die Villacher Innenstadt ist in wenigen Autominuten erreichbar und bietet zahlreiche Einkaufsmöglichkeiten, Restaurants, Cafés sowie verschiedene Dienstleistungsangebote.

Ein Fitnessstudio befindet sich nur wenige Gehminuten entfernt und bietet gute Möglichkeiten für sportliche Aktivitäten. Zudem ist die Drau in kurzer Zeit erreichbar und lädt zu Spaziergängen, Joggingrunden oder zur Erholung im Freien ein.

Auch weitere Einkaufsmöglichkeiten, Schulen, Kindergärten sowie öffentliche Verkehrsmittel befinden sich in der näheren Umgebung und sind gut erreichbar. 


Weitere Services

Lust auf eine Besichtigung?
Eine Frage zur Immobilie?
Nachricht hinzufügen
Mit der Nutzung der oben angegebenen Telefonnummer oder durch Klicken auf „Kontaktieren“ akzeptierst Du die Allgemeinen Nutzungsbedingungen, denen Du jederzeit widersprechen kannst. Weitere Informationen zum Datenschutz

Über den Anbieter

Hausergasse 9, 9500 VILLACH
partner badge
Partnerschaft
Online-ID: 26FALY3EKJCX
MediumRectangleTop
Wie zufrieden bist du mit dieser Seite (nicht mit der Immobilie selbst)?