Version: 8.24.0Navigation ĂĽberspringen
105.000 €
3 Zimmer  â€˘  82,3 m²  â€˘  2. Geschoss
Immowelt logo

Wohnung zum Kauf
105000 €
1.276 €/m²
3 Zimmer  â€˘  82,3 m²  â€˘  2. Geschoss

+++ "Licht und Ruhe - Wohnen im Einklang mit der Umgebung"+++

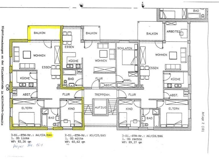
Diese charmante 3 Zimmerwohnung bietet Ihnen einen offenen und groĂźzĂĽgigen Grundriss, der ein angenehmes WohngefĂĽhl vermittelt.

Der südwestlich ausgerichtete Balkon lädt dazu ein, sonnige Stunden zu genießen und die Aussicht auf die ruhige Stadtrandlage zu schätzen.

Die Wohnräume sind mit modernem dunklem Laminat ausgestattet, das nicht nur stilvoll aussieht, sondern auch leicht zu pflegen ist. Das Badezimmer verfügt über eine Badewanne und Dusche, ist gefliest und profitiert von Tageslicht, was für eine angenehme Atmosphäre sorgt.

Zur Wohnung gehört ein Tiefgaragenstellplatz. Der Kaufpreis hierfür beträgt 10.000 € zuzüglich zum Kaufpreis der Wohnung.

Merkmale

  • vermietet
  • 2. Geschoss
  • Kelleranteil
  • Balkon
  • Badewanne
  • Waschraum
  • Bodenbelag: Fliesen, Laminat
- moderner, offen gestalteter Grundriss
- sĂĽdwestlich ausgerichteter Balkon
- modernes Laminat in den Wohnräumen
- Bad mit Wanne und Dusche
- TG-Stellplatz
- abschlieĂźbares Kellerabteil

Grundrisse

Grundrisse
1 / 1

Realisiere Dein Projekt

Bausubstanz und Energie

Energieausweis

D
  • Baujahr1995
  • Zustand der ImmobilieGepflegt
  • HeizungsartZentralheizung
  • EnergieträgerGas
Immowelt logo

Preisdetails

Kaufpreis
105000 €
1.276,44 €/m²
Provision für Käufer
3 % zzgl. MwSt.
Geschätzte Gesamtkosten
116.025 €1
Kaufpreis
105.000 €
Notarkosten (1,5%)
1.575 €
Grunderwerbsteuer (5,5%)
5.775 €
Provision für Käufer (3%)
3.150 €
Grundbucheintrag (0,5%)
525 €
1Der angezeigte Wert ist eine automatisch berechnete Schätzung von immowelt.
2Bei den Angaben handelt es sich um ortsübliche Werte. Individuelle Kosten können abweichen.

Lage

address-icon
Hofer Straße 101, Mittelbach, Chemnitz (09224)
Mittelbach ist eine äußerst beliebte Wohnlage in Chemnitz, die eine ruhige Umgebung mit einer optimalen Verkehrsanbindung kombiniert. Sie profitieren von der Nähe zum Stadtzentrum von Chemnitz sowie der perfekten Anbindung an das Autobahnkreuz Chemnitz-Süd, was Ihnen eine einfache und schnelle Erreichbarkeit aller wichtigen Ziele ermöglicht.

Diese Immobilie bietet Ihnen die ideale Balance zwischen urbanem Komfort und der Ruhe eines Vorortes. Zögern Sie nicht, diese großartige Gelegenheit zu nutzen und vereinbaren Sie noch heute einen Besichtigungstermin!

Weitere Informationen

Sonstiges Um eine schnelle und unkomplizierte Terminvereinbarung zu treffen, können Sie uns gern unter folgenden Rufnummern von 8:00 Uhr bis 18:00 erreichen.

Tel.: 0371 / 31 31 51
Funk: 0172 / 79 88 500

Sie können natürlich auch auf unserer Homepage sich über andere Angebote informieren.
www.immotreff-chemnitz.de

BITTE BEACHTEN SIE, DASS NUR ANFRAGEN UNTER ANGABE EINER TELEFONNUMMER BEARBEITET WERDEN KĂ–NNEN. Stichworte Tiefgarage vorhanden, Anzahl der Schlafzimmer: 1, Anzahl der Badezimmer: 1, Anzahl Balkone: 1, Wohnungsnr.: WE47, 2.OG, links

Weitere Services

Lust auf eine Besichtigung?
Eine Frage zur Immobilie?
Nachricht hinzufĂĽgen
Mit der Nutzung der oben angegebenen Telefonnummer oder durch Klicken auf „Kontaktieren“ akzeptierst Du die Allgemeinen Nutzungsbedingungen, denen Du jederzeit widersprechen kannst. Weitere Informationen zum Datenschutz

Ăśber den Anbieter

Immotreff
ImmotreffMaklerbĂĽro
Walter-Oertel-StraĂźe 24, 09112 Chemnitz
partner badge
Diamond Partner
Herr Karlheinz RadschinskyDein Kontakt

Weitere Unterlagen

Online-ID: 2nrmb5m
Referenznummer: IC148425
Immotreff
Immotreff
Nachricht hinzufĂĽgen
Mit der Nutzung der oben angegebenen Telefonnummer oder durch Klicken auf „Kontaktieren“ akzeptierst Du die Allgemeinen Nutzungsbedingungen, denen Du jederzeit widersprechen kannst. Weitere Informationen zum Datenschutz
Wie zufrieden bist du mit dieser Seite (nicht mit der Immobilie selbst)?